Appartement lumineux avec balcon + place de parking et cave

— Ris-Orangis 91130 —
175 000 €
58 m²
3 pièces
parkingbalcon/terrasse

À quelques pas du centre-ville de Ris-Orangis, dans un environnement dynamique et résidentiel, cet appartement en étage élevé avec balcon et vue dégagée bénéficie d'un emplacement attractif, combinant confort, modernité et proximité immédiate avec les commodités.

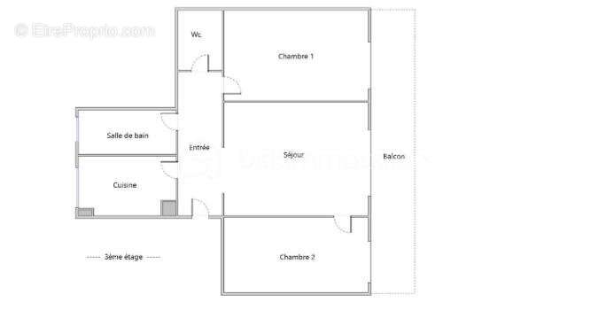
Situé au dernier étage d'une résidence entretenue et avec un agréable voisinage, ce bien de 58,65 m² Loi Carrez (58,95 m² au sol) séduit par son agencement parfaitement optimisé, sans aucune perte d'espace.

Dès l'entrée, on découvre une circulation fluide et confortable, pensée pour le quotidien.

Le séjour, orienté Sud Ouest, profite d'une luminosité généreuse et s'ouvre sur un balcon agréable, offrant une vue dégagée et un cadre sans vis-à-vis.

La cuisine, indépendante et fonctionnelle, peut être ouverte sur le séjour pour créer un espace plus contemporain et convivial.
Pas de murs porteurs, l'agencement est totalement modulable.

L'espace nuit comprend deux chambres équilibrées, une salle de bain avec fenêtre double vitrage, et des toilettes séparées.

L'appartement présente de belles prestations et des équipements modernes. Les menuiseries PVC double vitrage garantissent une isolation phonique et thermique performante, complétées par un volet roulant Somfy motorisé, offrant confort et praticité au quotidien.
Une cave et une place de parking complète ce bien.

Le chauffage collectif au gaz, à régulation centrale, assure une chaleur homogène, tandis que l'eau chaude est produite par un ballon électrique récent (installé en 2022).
L'installation électrique est conforme, et le ravalement de façade récent confère à la résidence une allure soignée et durable.

Les charges mensuelles s'élèvent en moyenne à 230€, incluant le chauffage collectif, l'eau froide et l'entretien des parties communes.

La consommation électrique annuelle est estimée à 740 €, et la taxe foncière à 1 047 €.

L'adresse bénéficie d'une localisation privilégiée :

Toutes les commodités se trouvent à moins de 200 mètres : boulangerie, commerces, pharmacie, écoles et services essentiels.
Le marché de Ris-Orangis, à environ 300 mètres, anime le quartier deux fois par semaine.

Les espaces verts — Square Saint-Just, Square George-Sand et Parc de la Theuillerie — sont accessibles à pied, tandis que la Base de Loisirs du Port aux Cerises se rejoint facilement en voiture.

La gare RER D se situe à cinq minutes à pied, reliant Paris Gare de Lyon en trente-cinq minutes.

Les accès à la N7, à l'A6 et à la Francilienne (N104) sont rapides et fluides, tandis que l'aéroport d'Orly se trouve à quinze minutes en voiture.

Cet appartement en étage élevé, doté d'un balcon orienté Sud-Ouest, d'une vue dégagée et de prestations modernes, offre un cadre de vie harmonieux, dynamique et confortable.

Un bien complet, prêt à vivre, idéal pour un premier achat ou un investissement patrimonial de qualité.

.

Cette annonce référence 308366 vous est présentée par votre agent commercial BSK Immobilier BEYANE ASSI (EI) immatriculé au RSAC de CRETEIL (94000) sous le numéro 82466752100028.

Prix du bien : 175 000,00 €
Les honoraires d'agence sont à la charge du vendeur.

A propos de la copropriété :
Pas de procédure en cours.
Nombre de lots : 3
Charges prévisionnelles annuelles : 2 800,00 €

A propos des performances énergétiques :
Date de réalisation du diagnostic énergétique : 22/10/2025
Score DPE : 242 kWhEP/m²/an
Score GES : 39 kgepCO2/m²/an
Montant estimé des dépenses annuelles d'énergie pour un usage standard : entre 1220.00 € et 1770.00 € par an. Prix moyens des énergies indexés sur l'année 2022 (abonnements compris).

Les informations sur les risques auxquels ce bien est exposé sont disponibles sur le site Géorisques : www.georisques.gouv.fr
Voir plus

Référence: 308366
Bien en copropriété. Nombre de lots : 3. Charges de copropriété : 233 €.
Honoraires à la charge du vendeur.
DPE
A
B
C
D
E
F
G
GES
A
B
C
D
E
F
G

Prêt immobilier

Vous souhaitez connaître votre capacité d’emprunt et trouver le meilleur crédit immobilier ?
Réaliser une simulation gratuite

Appartement à RIS-ORANGIS
Appartement à RIS-ORANGIS
Appartement à RIS-ORANGIS
Appartement à RIS-ORANGIS
Appartement à RIS-ORANGIS
Appartement à RIS-ORANGIS
Appartement à RIS-ORANGIS
Appartement à RIS-ORANGIS
Appartement à RIS-ORANGIS
Appartement à RIS-ORANGIS
Appartement à RIS-ORANGIS
Appartement à RIS-ORANGIS
Appartement à RIS-ORANGIS
Appartement à RIS-ORANGIS
Ce site est protégé par reCAPTCHA la Politique de confidentialité et les Conditions d’utilisation de Google s’appliquent.
Obtenir un prêt immobilier au meilleur taux ?

En poursuivant votre navigation sans modifier vos paramètres, vous acceptez l'utilisation de cookies susceptibles de réaliser des statistiques de visite. Cliquez ici pour plus d'informations