Maison t4 à rénover – 136 m² habitables – terrain 1 350 m² – bordères-sur-l’échez (proche tarbes)

— Borderes-Sur-L'echez 65320 —
130 000 €
136 m² / 1 345 m²
5 pièces
parkingjardin

Aux portes de Tarbes, direction Bordères-sur-l'Échez, découvrez cette charmante maison T4 de 1919 à rénover, offrant 136 m² habitables sur un beau terrain plat et clos de 1 350 m², au calme et sans vis-à-vis.

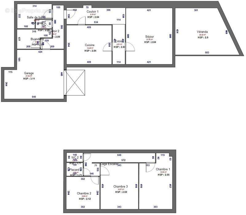
Au rez-de-chaussée, un vaste hall d'entrée avec son bel escalier d'époque dessert une grande cuisine de 20 m² et un séjour lumineux.
Les cloisons légères permettent facilement de créer une pièce de vie ouverte d'environ 45 m².
Vous trouverez également à ce niveau :

une véranda attenante au salon,

un WC séparé,

une grande salle de bains (baignoire, douche, WC et vasque),

une buanderie,

ainsi qu'un garage de 22 m².

À l'étage, un escalier en Y mène à :

une grande chambre de 14 m² avec sa salle d'eau privative,

un WC séparé,

un dressing confortable,

une chambre de 10 m²,

et une troisième chambre d'environ 15 m².

Toutes les chambres, ainsi que la cuisine, le salon et la véranda, sont orientées plein sud, offrant une belle luminosité toute la journée.

À l'extérieur, vous profiterez d'un agréable jardin arboré d'environ 1 000 m², planté de nombreux fruitiers (cerisiers, pommiers, figuiers, pruniers, noyers...) et de deux dépendances en dur de 15 et 25 m².

La toiture et la charpente sont en bon état.
Des travaux de rénovation sont à prévoir : raccordement à l'assainissement collectif, création d'une cuisine et rafraîchissement général.

Cette maison au cachet authentique offre un énorme potentiel pour un projet familial ou un investissement. Avec les aides de l'État à la rénovation, elle peut rapidement devenir un lieu de vie agréable et fonctionnel.

Une visite s'impose pour apprécier tout le charme de cette maison pleine de promesses ! Les honoraires sont à la charge du vendeur.
Logement à consommation énergétique excessive : classe G
Les informations sur les risques auxquels ce bien est exposé sont disponibles sur le site Géorisques : www. georisques. gouv. fr.

Réseau Immobilier CAPIFRANCE - Votre agent commercial (RSAC N°503 643 413 - Greffe de TARBES) Laurent DURROUX Entrepreneur Individuel [Coordonnées masquées] - Réf.927744
Voir plus

Référence: 340930398870
Honoraires à la charge du vendeur.
DPE
A
B
C
D
E
F
G
GES
A
B
C
D
E
F
G

Prêt immobilier

Vous souhaitez connaître votre capacité d’emprunt et trouver le meilleur crédit immobilier ?
Réaliser une simulation gratuite

Maison à BORDERES-SUR-L'ECHEZ
Maison à BORDERES-SUR-L'ECHEZ
Maison à BORDERES-SUR-L'ECHEZ
Maison à BORDERES-SUR-L'ECHEZ
Maison à BORDERES-SUR-L'ECHEZ
Maison à BORDERES-SUR-L'ECHEZ
Maison à BORDERES-SUR-L'ECHEZ
Maison à BORDERES-SUR-L'ECHEZ
Maison à BORDERES-SUR-L'ECHEZ
Maison à BORDERES-SUR-L'ECHEZ
Maison à BORDERES-SUR-L'ECHEZ
Maison à BORDERES-SUR-L'ECHEZ
Maison à BORDERES-SUR-L'ECHEZ
Maison à BORDERES-SUR-L'ECHEZ
Maison à BORDERES-SUR-L'ECHEZ
Maison à BORDERES-SUR-L'ECHEZ
Maison à BORDERES-SUR-L'ECHEZ
Maison à BORDERES-SUR-L'ECHEZ
Maison à BORDERES-SUR-L'ECHEZ
Maison à BORDERES-SUR-L'ECHEZ
Maison à BORDERES-SUR-L'ECHEZ
Maison à BORDERES-SUR-L'ECHEZ
Maison à BORDERES-SUR-L'ECHEZ
Maison à BORDERES-SUR-L'ECHEZ
Maison à BORDERES-SUR-L'ECHEZ
Maison à BORDERES-SUR-L'ECHEZ
Maison à BORDERES-SUR-L'ECHEZ
Ce site est protégé par reCAPTCHA la Politique de confidentialité et les Conditions d’utilisation de Google s’appliquent.
Obtenir un prêt immobilier au meilleur taux ?

En poursuivant votre navigation sans modifier vos paramètres, vous acceptez l'utilisation de cookies susceptibles de réaliser des statistiques de visite. Cliquez ici pour plus d'informations