Bénéficiez des services de nos partenaires locaux soigneusement sélectionnés
pour vous accompagner dans votre parcours d'achat immobilier

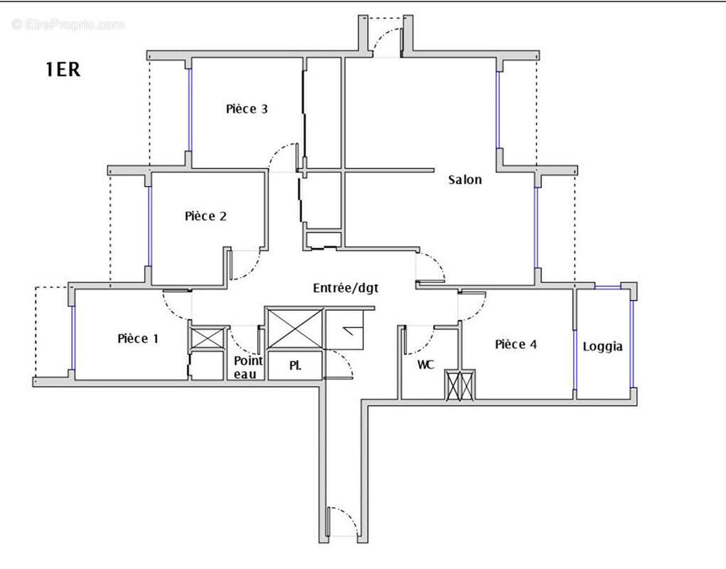
Appartement t5 à usage de bureaux, balcons, parking

— Saint-Brieuc 22000 —
117 150 €
92 m²
6 pièces
parkingbalcon/terrasseascenseur

Nos partenaires locaux
EXCLUSIVITÉ SBI, A VENDRE, SAINT-BRIEUC, quartier Ste Thérèse, 600m du centre, un appartement T5 de 92m2, au 1er étage avec ascenseur d'une résidence des années 70, actuellement à usage de bureaux, comprenant : hall d'entrée, salon/séjour ouvrant sur balcons expo S/O, dégagement avec placards, 4 bureaux (3 ouvrant sur balcons et 1 sur loggia fermée), coin kitchenette, wc avec lave-mains, chauffage collectif avec comptage individuel, cave et emplacement de parking privatif en s/sol, MODERNISATION A PRÉVOIR, TRANSFORMATION POSSIBLE EN APPARTEMENT D'HABITATION. (6.50 % honoraires TTC à la charge de l'acquéreur.) Copropriété de 227 lots - dont 81 lots habitation. Charges annuelles : 2314 euros.
Voir plus

Référence: 6214
Bien en copropriété. Nombre de lots : 227. Charges de copropriété : 2314 €. Procédure en cours : Procédure en cours.
Honoraires d'agence de 6.5% à la charge de l'acquéreur
Barème des honoraires
DPE
A
B
C
D
E
F
G
GES
A
B
C
D
E
F
G

Prêt immobilier

Vous souhaitez connaître votre capacité d’emprunt et trouver le meilleur crédit immobilier ?
Réaliser une simulation gratuite

Appartement à SAINT-BRIEUC
Appartement à SAINT-BRIEUC
Appartement à SAINT-BRIEUC
Appartement à SAINT-BRIEUC
Appartement à SAINT-BRIEUC
Appartement à SAINT-BRIEUC
Appartement à SAINT-BRIEUC
Appartement à SAINT-BRIEUC
Appartement à SAINT-BRIEUC
Appartement à SAINT-BRIEUC
Appartement à SAINT-BRIEUC
Appartement à SAINT-BRIEUC
Appartement à SAINT-BRIEUC
Appartement à SAINT-BRIEUC
Appartement à SAINT-BRIEUC
Appartement à SAINT-BRIEUC
Appartement à SAINT-BRIEUC
Appartement à SAINT-BRIEUC
Ce site est protégé par reCAPTCHA la Politique de confidentialité et les Conditions d’utilisation de Google s’appliquent.
Obtenir un prêt immobilier au meilleur taux ?

En poursuivant votre navigation sans modifier vos paramètres, vous acceptez l'utilisation de cookies susceptibles de réaliser des statistiques de visite. Cliquez ici pour plus d'informations