Bénéficiez des services de nos partenaires locaux soigneusement sélectionnés
pour vous accompagner dans votre parcours d'achat immobilier

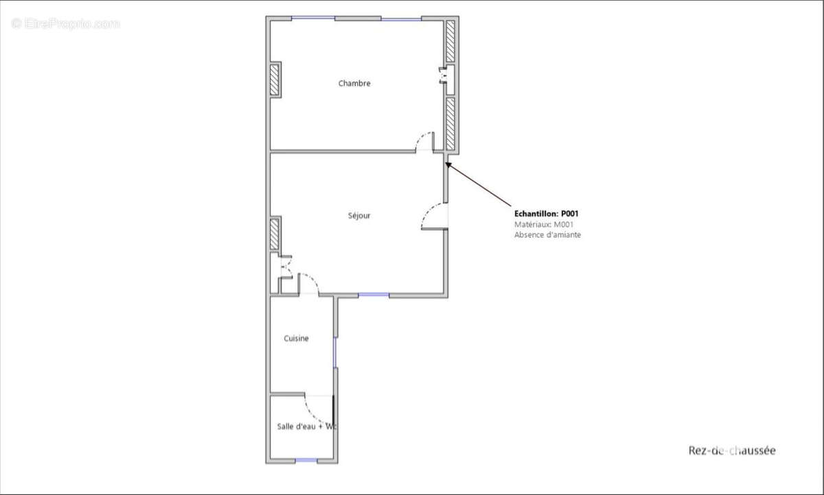
Appartement 50m² à paris-9e

— Paris-9e 75009 —
415 000 €
50 m²
2 pièces

Nos partenaires locaux
Iad France - Julien Cogitore vous propose : * RARE - T2 50 m² RUE D'ATHÈNES - À RÉNOVER *

Appartement de 50 m², en rez-de-chaussée d'un très bel immeuble parisien, offrant une très belle pièce à vivre au calme d'une cour intérieure, une grande chambre avec moulure et trumeau à l'ancienne, cuisine et salle de bains.

L'ensemble nécessite une rénovation complète et offre un énorme potentiel avec le cachet de l'ancien, une hauteur sous plafond de 3,3 m, la possibilité d'y installer une mezzanine, créer une cuisine ouverte. De multiples possibilités pour en faire votre nid douillet ou un projet d'investissement rentable au coeur du 9 ème arrondissement.

Idéalement situé à 2 minutes à pieds du métro Liège et à 3 minutes à pieds de Saint-Lazare, au coeur des commerces et monuments du 9 ème arrondissement, vous bénéficierez d'un cadre de vie idéal dans un des quartiers les plus recherchés de Paris.

Contactez-nous pour obtenir plus d'informations et planifier une visite.

La presente annonce immobiliere vise 1 lot situé dans une copropriété de 27 lots au total et ne faisant l'objet d'aucune procédure en cours citée à l'article L. 721-1 du code de la construction et de l'habitation. Montant moyen mensuel de charges déclaré par le vendeur : 126.62¤ par mois (soit 1519.44 ¤ annuel). Honoraires d'agence à la charge du vendeur.
Information d'affichage énergétique sur ce bien : classe ENERGIE G indice 637 et classe CLIMAT C indice 21. Les informations sur les risques auxquels ce bien est exposé, y compris l'obligation légale de débroussaillement, sont disponibles sur le site Géorisques : http://www.georisques.gouv.fr.
La présente annonce immobilière a été rédigée sous la responsabilité éditoriale de M Julien Cogitore mandataire indépendant en immobilier (sans détention de fonds), agent commercial de la SAS I@D France immatriculé au RSAC de PONTOISE sous le numéro 793773409, titulaire de la carte de démarchage immobilier pour le compte de la société I@D France SAS.
Informations LOI ALUR :
Soumis au régime de copropriété.
Nombre de lots : 27.
Quote part annuelle(moyenne) : 1519.44 euros.
Honoraires charge vendeur. (gedeon_6727_32073832)
Voir plus

Référence: 1866905
Bien en copropriété. Nombre de lots : 27. Charges de copropriété : 1519 €.
Honoraires à la charge du vendeur.
DPE
A
B
C
D
E
F
G
GES
A
B
C
D
E
F
G

Prêt immobilier

Vous souhaitez connaître votre capacité d’emprunt et trouver le meilleur crédit immobilier ?
Réaliser une simulation gratuite

Photo 1 - Appartement à PARIS-9E
Photo 1
Photo 2 - Appartement à PARIS-9E
Photo 2
Photo 3 - Appartement à PARIS-9E
Photo 3
Photo 4 - Appartement à PARIS-9E
Photo 4
Photo 5 - Appartement à PARIS-9E
Photo 5
Photo 6 - Appartement à PARIS-9E
Photo 6
Ce site est protégé par reCAPTCHA la Politique de confidentialité et les Conditions d’utilisation de Google s’appliquent.
Obtenir un prêt immobilier au meilleur taux ?

En poursuivant votre navigation sans modifier vos paramètres, vous acceptez l'utilisation de cookies susceptibles de réaliser des statistiques de visite. Cliquez ici pour plus d'informations