Bénéficiez des services de nos partenaires locaux soigneusement sélectionnés
pour vous accompagner dans votre parcours d'achat immobilier

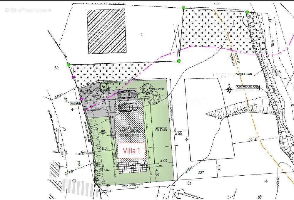
A vendre terrain libre constructeur de 411m² au coeur de aix-les-bains

— Aix-Les-Bains 73100 —
170 000 €
411 m²

Nos partenaires locaux
À vendre – Terrain à bâtir de 411 m² en plein cœur d'Aix-les-Bains

J'ai le plaisir de vous proposer, sur la commune d'Aix-les-Bains, une belle parcelle libre de constructeur de 411 m², offrant une vue agréable sur les montagnes.

Caractéristiques du terrain :
- Terrain avec une pente inférieure à 5 %
- Viabilité en bordure de route
- Zonage PLUi : UD
- Surface constructible : 112,5 m² (14,34 m x 7,84 m)
- Coefficient d'emprise au sol (CES) maximal : 86,31 m²
- Parcelle issue d'une division parcellaire

Situation idéale :
- À seulement 1,8 km du centre-ville d'Aix-les-Bains
- 5 minutes de l'autoroute et de la gare
- Commerces et commodités à proximité
- École à 200 m et transports en commun à quelques pas

Possibilité de construction :
Une villa peut y être édifiée (voir plan proposé dans les photos).

Ne manquez pas cette occasion rare d'acquérir un terrain d'exception dans un quartier prisé d'Aix-les-Bains.

Pour plus d'informations ou organiser une visite, contactez-moi dès aujourd'hui.

Cette annonce vous est présentée votre agent commercial BSK Immobilier LEGRAND FREDERIC (EI) immatriculé au RSAC de CHAMBERY (73000) sous le numéro 929 623 544.

Les honoraires d'agence sont à la charge du vendeur.

Les informations sur les risques auxquels ce bien est exposé sont disponibles sur le site Géorisques : www.georisques.gouv.fr

Cette annonce référence 308572 vous est présentée par votre agent commercial BSK Immobilier FRÉDÉRIC LEGRAND (EI) immatriculé au RSAC de CHAMBERY (73000) sous le numéro 92962354400012.

Prix du bien : 170 000,00 €
Les honoraires d'agence sont à la charge du vendeur.

Les informations sur les risques auxquels ce bien est exposé sont disponibles sur le site Géorisques : www.georisques.gouv.fr
Voir plus

Référence: 308572
Honoraires à la charge du vendeur.

Prêt immobilier

Vous souhaitez connaître votre capacité d’emprunt et trouver le meilleur crédit immobilier ?
Réaliser une simulation gratuite

Terrain à AIX-LES-BAINS
Terrain à AIX-LES-BAINS
Terrain à AIX-LES-BAINS
Terrain à AIX-LES-BAINS
Ce site est protégé par reCAPTCHA la Politique de confidentialité et les Conditions d’utilisation de Google s’appliquent.
Obtenir un prêt immobilier au meilleur taux ?

En poursuivant votre navigation sans modifier vos paramètres, vous acceptez l'utilisation de cookies susceptibles de réaliser des statistiques de visite. Cliquez ici pour plus d'informations