Jonzieux 42660 maison plain-pied exposée sud édifiée sur vide sanitaire 82m² habitables 2 chambres sur 1295m² de terrain

— Jonzieux 42660 —
198 000 €
82 m² / 1 295 m²
3 pièces

JONZIEUX 42660 Maison plain-pied exposée Sud édifiée sur vide sanitaire 82m² habitables 2 chambres sur 1295m² de terrain prix de vente 198 000 euros présentée EN EXCLUSIVITE par Nicolas FOURNEL (o6782o7136)
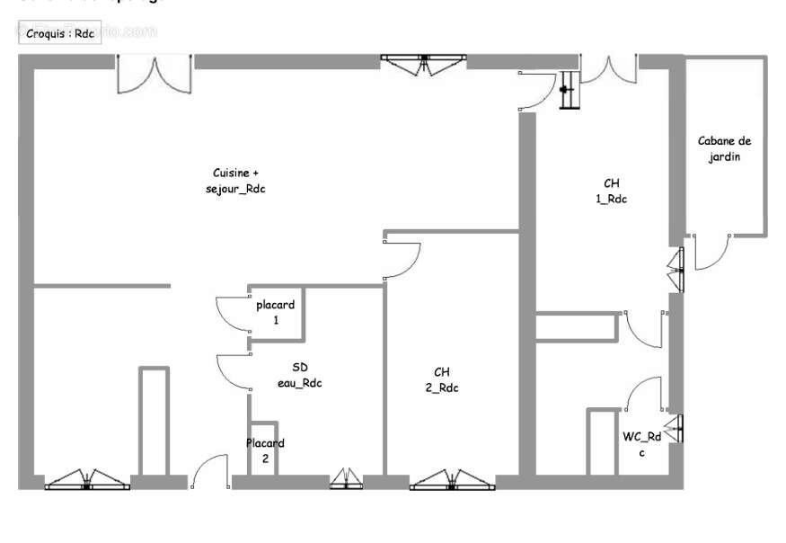
La bâtisse proche du centre du village comprend un hall d'entrée avec vestiaire, cuisine ouverte sur salon-salle-à-manger donnant accès direct à l'extérieur par une porte-fenêtre, deux chambres dont une chambre avec dressing et WC. Une salle d'eau et un WC séparé complètent le bien.
Les combles sont en partie aménageables
Pas de garage.
Chauffage poêle à bois dans la pièce de vie et convecteurs dans chaque pièce
Raccordée au réseau de tout-à-l'égout
Ses atouts : située dans un secteur paisible tout en étant proche des commodités. Agréable terrain plat bien exposé offrant une belle vue dégagée.
DPE : 428 kMh/m2/an : F GES : 13 : C
Montant estimé des dépenses annuelles d'énergie établi à partir des prix de l'énergie au 1er janvier 2021 : entre 2060 et 2840 euros/an
Veuillez noter que toutes les mesures sont approximatives, les informations sont fournies à titre indicatif seulement.
Veuillez noter que toutes les mesures sont approximatives, les informations sont fournies à titre indicatif seulement.
Pour visiter et vous accompagner dans votre projet contactez Nicolas FOURNEL [Coordonnées masquées] ou par courriel à [Coordonnées masquées] agissant sous le statut de d'agent commercial indépendant inscrit au RSAC 878 773 209 Mandat 3727FOI Le professionnel garantit et sécurise votre projet immobilier.
SAS Agence immobilière de Saint Genest Malifaux (O4 77 51 7O 6O) concession PROPRIETES PRIVEES 4 rue du Velay 42660 St Genest Malifaux Carte professionnelle CPI 42[Coordonnées masquées]10 412 CCI Lyon Métropole St Etienne Roanne RCS 450 309 422

Nicolas FOURNEL (EI) Agent Commercial - Numéro RSAC : 878773309 - .
Les informations sur les risques auxquels ce bien est exposé sont disponibles sur le site Géorisques : www. georisques. gouv. fr
Voir plus

Référence: 3727FOI
Honoraires à la charge du vendeur.
DPE
A
B
C
D
E
F
G
GES
A
B
C
D
E
F
G

Prêt immobilier

Vous souhaitez connaître votre capacité d’emprunt et trouver le meilleur crédit immobilier ?
Réaliser une simulation gratuite

Maison à JONZIEUX
Maison à JONZIEUX
Maison à JONZIEUX
Maison à JONZIEUX
Maison à JONZIEUX
Maison à JONZIEUX
Maison à JONZIEUX
Maison à JONZIEUX
Maison à JONZIEUX
Ce site est protégé par reCAPTCHA la Politique de confidentialité et les Conditions d’utilisation de Google s’appliquent.
Obtenir un prêt immobilier au meilleur taux ?

En poursuivant votre navigation sans modifier vos paramètres, vous acceptez l'utilisation de cookies susceptibles de réaliser des statistiques de visite. Cliquez ici pour plus d'informations