Bénéficiez des services de nos partenaires locaux soigneusement sélectionnés
pour vous accompagner dans votre parcours d'achat immobilier

Appartement 5 pièces paris 8ème parc monceau

— Paris-8e 75008 —
2 547 885 €
175 m²
5 pièces
balcon/terrasse

Nos partenaires locaux
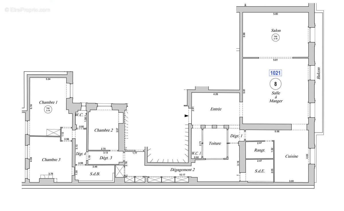
Au sein d’un immeuble haussmannien situé à proximité immédiate du Parc Monceau, cet appartement de 174,8 m2 se trouve au deuxième étage d’une résidence de standing avec ascenseur. Il bénéficie d’un agencement fonctionnel et de volumes équilibrés.
L’entrée principale dessert une salle à manger de 33,9 m2 attenante à un salon de 23,2 m2 ouvrant sur un balcon de 7,3 m2. La cuisine, indépendante, propose une surface de 16,5 m2. L’espace nuit comprend trois chambres de 17,1 m2, 10,0 m2 et 14,5 m2, ainsi qu’un dressing et de nombreux rangements. L’appartement dispose également d’une salle de bain, d’une salle d’eau et de deux toilettes séparées. Plusieurs dégagements assurent une circulation fluide entre les pièces.
Le bien profite d’une hauteur sous plafond d’environ 3,20 mètres, typique de l’architecture haussmannienne.
La copropriété comprend un bâtiment de sept étages soigneusement entretenu, accessible par digicode et interphone. Les parties communes ont conservé le charme d’origine, avec des matériaux nobles et des finitions soignées. Un local à vélos est disponible en rez-de-chaussée.
Situé dans un environnement recherché du 8e arrondissement, entre le Parc Monceau et le quartier Saint-Augustin, le bien bénéficie d’un cadre privilégié à proximité des commerces, des écoles réputées et des transports (métro Monceau, ligne 2, à 6 minutes à pied).
Contactez-nous pour plus d'informations ! Images d'illustration, non contractuelles
Voir plus

Bien en copropriété. Nombre de lots : 23.
Barème des honoraires

Prêt immobilier

Vous souhaitez connaître votre capacité d’emprunt et trouver le meilleur crédit immobilier ?
Réaliser une simulation gratuite

Appartement à PARIS-8E
Appartement à PARIS-8E
Appartement à PARIS-8E
Appartement à PARIS-8E
Ce site est protégé par reCAPTCHA la Politique de confidentialité et les Conditions d’utilisation de Google s’appliquent.
Obtenir un prêt immobilier au meilleur taux ?

En poursuivant votre navigation sans modifier vos paramètres, vous acceptez l'utilisation de cookies susceptibles de réaliser des statistiques de visite. Cliquez ici pour plus d'informations