Bénéficiez des services de nos partenaires locaux soigneusement sélectionnés
pour vous accompagner dans votre parcours d'achat immobilier

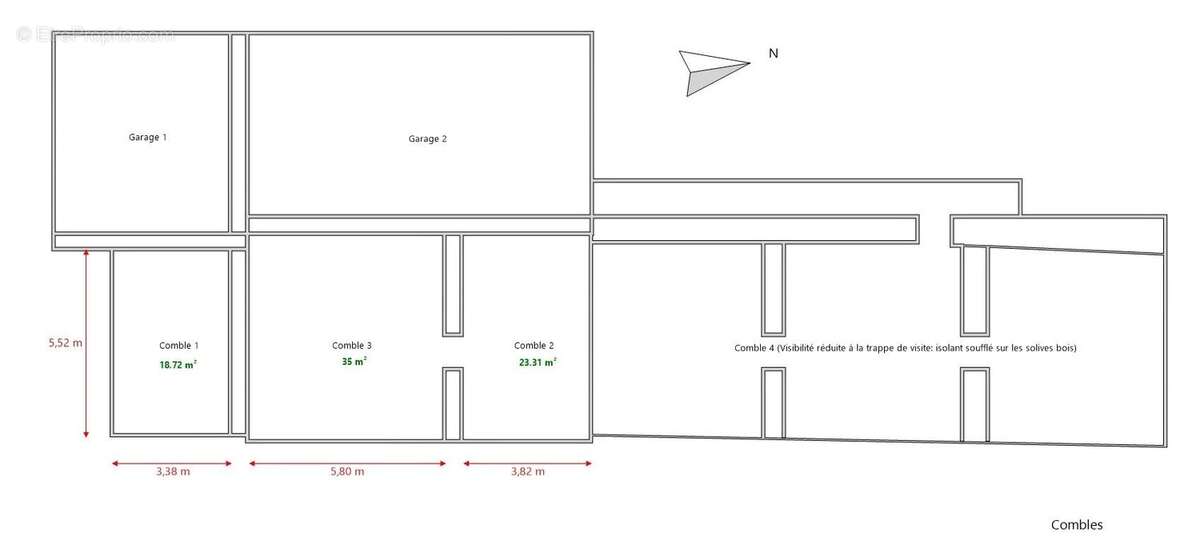
Saugon maison 230 m2 terrain 3 300 m2

— Saugon 33920 —
145 000 €
230 m² / 3 300 m²
5 pièces
jardin

Nos partenaires locaux
EXCLUSIVITE LE TUC IMMO
Contacter Mr Sébastien GOYARD au O6.82.12.70.58 (RCS 822 958 005)
Une maison d'habitation de type longére d'environ 230 m2 en RDC et comprenant deux logements. Premier logement : un T3 d'une superficie d'environ 100 m2, composé d'une entrée donnant sur une cuisine/salle à manger, un salon/séjour avec cheminée, une salle de bains, un wc, un cellier, un dégagement desservant deux chambres avec placards. Seconde partie attenante, à restaurer, comprenant trois pièces principales en enfilades un chai à l'arrière avec un wc, un atelier et un grand chai avec réserve de bois. Un abri côté Ouest. Le tout sur un terrain d'environ 3 300 m2, situé en zone U (constructible). Assainissement fonctionnel mais non conforme, chaque logement est relié aux réseaux existants indépendamment (2 compteurs d'eau et EDF)
Voir plus

Référence: 2896SG
DPE
A
B
C
D
E
F
G
GES
A
B
C
D
E
F
G

Prêt immobilier

Vous souhaitez connaître votre capacité d’emprunt et trouver le meilleur crédit immobilier ?
Réaliser une simulation gratuite

Maison à SAUGON
Maison à SAUGON
Maison à SAUGON
Maison à SAUGON
Maison à SAUGON
Maison à SAUGON
Maison à SAUGON
Maison à SAUGON
Maison à SAUGON
Maison à SAUGON
Maison à SAUGON
Maison à SAUGON
Maison à SAUGON
Maison à SAUGON
Maison à SAUGON
Maison à SAUGON
Maison à SAUGON
Maison à SAUGON
Maison à SAUGON
Maison à SAUGON
Maison à SAUGON
Maison à SAUGON
Ce site est protégé par reCAPTCHA la Politique de confidentialité et les Conditions d’utilisation de Google s’appliquent.
Obtenir un prêt immobilier au meilleur taux ?

En poursuivant votre navigation sans modifier vos paramètres, vous acceptez l'utilisation de cookies susceptibles de réaliser des statistiques de visite. Cliquez ici pour plus d'informations