Bénéficiez des services de nos partenaires locaux soigneusement sélectionnés
pour vous accompagner dans votre parcours d'achat immobilier

Appartement 70m² à luce

— Luce 28110 —
116 500 €
70 m²
4 pièces
parkingbalcon/terrasse

Nos partenaires locaux
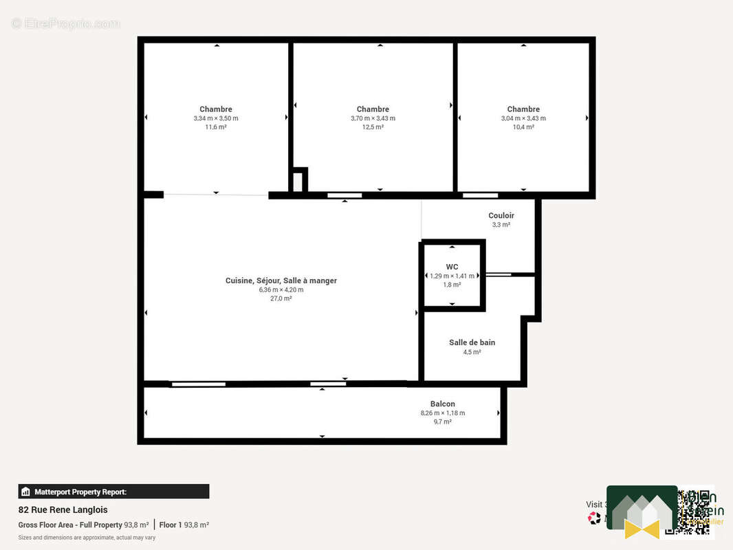
T3/4 INTEGRALEMENT RENOVE DE 70m² - BALCON - CAVE et PARKING - LUCE

Bienvenue dans votre futur chez vous ! À 2km de la place des épars, nous avons le plaisir de vous présenter un appartement entièrement rafraichit avec un blacon, vue cathédrale, cave et stationnement privatif.

Situé au 3ème et dernier étage, cet appartement est disposé comme suit :
- Entrée
- Séjour, salon, cuisine
- 2 Chambres (3ème possible)
- Salle d'eau
- WC indépendant

Côté confort
- Balcon vue cathédrale,
- Place de parking privative,
- Cave privative,
- Aucun travaux à prévoir, rénovation totale en 2025,

À propos de la copropriété (8 lots d'habitation)
Les charges mensuelles de 49€ intègrent l'entretien des communs et à l'avantage d'avoir toutes les consommations en privées.

L'emplacement :
Vous pourrez bénéficier de tout les commerces et loisirs de la ville ainsi que le réseau filibus au pied de l'appartement. La place des épars sera à 2km (10 minutes en voiture ou à velo).

N'hésitez pas à contacter votre agent au Noeud Pap' pour obtenir plus d'informations et visiter cet appartement ! ?

Honoraires à la charge du vendeur. Dans une copropriété de 16 lots. Quote-part moyenne du budget prévisionnel 588 €/an. Aucune procédure n'est en cours. Classe énergie D, Classe climat B Montant estimé des dépenses annuelles d'énergie pour un usage standard : entre 1155.00 € et 1563.00 € sur les années 2021, 2022 et 2023 (abonnements compris). Les informations sur les risques auxquels ce bien est exposé sont disponibles sur le site Géorisques : georisques.gouv.fr.

Votre conseiller Bien Serein immobilier : Charly CHESNEAU
Agent commercial (Entreprise individuelle)
RSAC 990 102 493
Voir plus

Référence: 747-BIENSEREIN28
Bien en copropriété. Nombre de lots : 16. Charges de copropriété : 588 €.
Honoraires à la charge du vendeur.
Barème des honoraires
DPE
A
B
C
D
E
F
G
GES
A
B
C
D
E
F
G

Prêt immobilier

Vous souhaitez connaître votre capacité d’emprunt et trouver le meilleur crédit immobilier ?
Réaliser une simulation gratuite

Appartement à LUCE
Appartement à LUCE
Appartement à LUCE
Appartement à LUCE
Appartement à LUCE
Appartement à LUCE
Appartement à LUCE
Appartement à LUCE
Appartement à LUCE
Ce site est protégé par reCAPTCHA la Politique de confidentialité et les Conditions d’utilisation de Google s’appliquent.
Obtenir un prêt immobilier au meilleur taux ?

En poursuivant votre navigation sans modifier vos paramètres, vous acceptez l'utilisation de cookies susceptibles de réaliser des statistiques de visite. Cliquez ici pour plus d'informations