Maison neuve à nefiach avec 2 chambres et jardin

— Nefiach 66170 —
169 000 €
59 m² / 77 m²
4 pièces
jardin

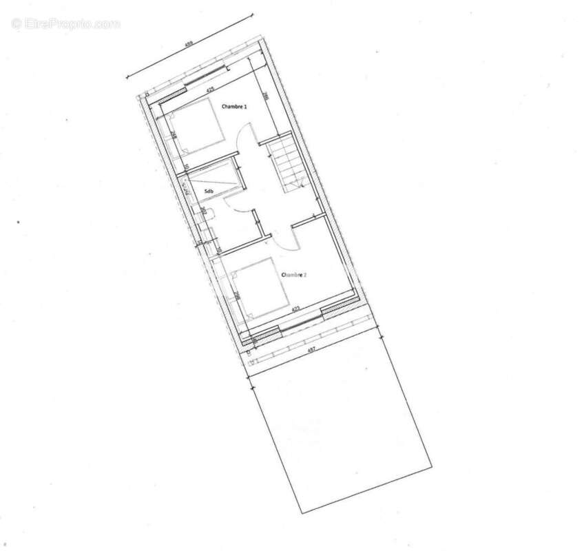
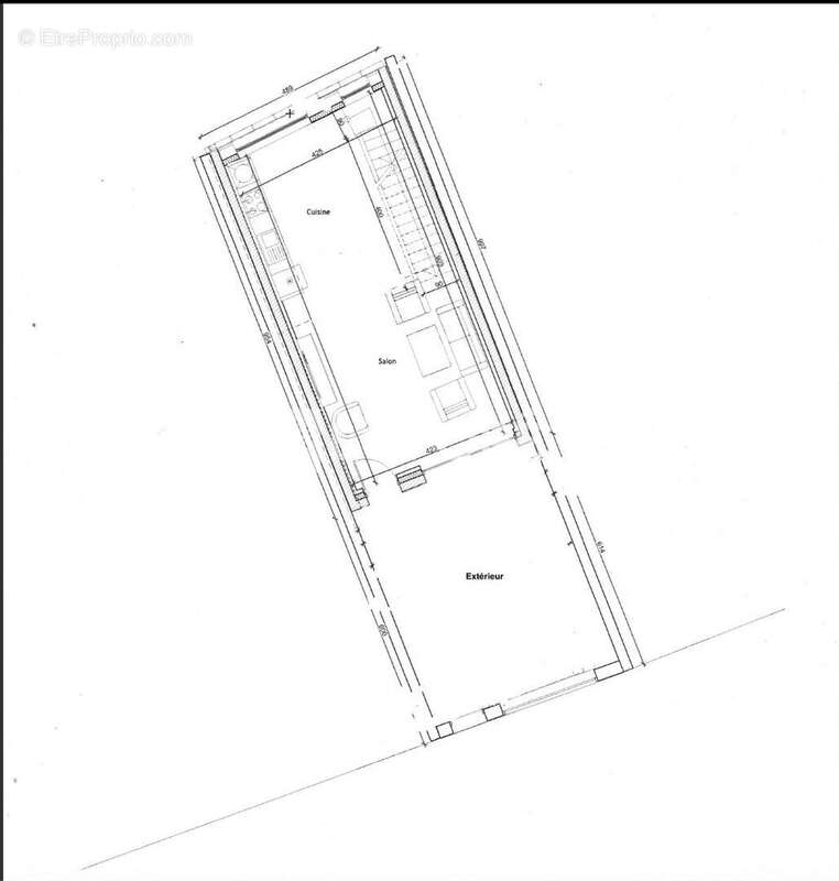
Découvrez cette maison neuve avec extérieur, 2 chambres, climatisation et menuiseries PVC double vitrage pour un confort idéal. Livraison 1er trimestre 2026. Située proche commodités, cette maison neuve actuellement en construction offre des prestations modernes et un agencement fonctionnel. Au rez-de-chaussée, vous profiterez d'un séjour / salon / cuisine de 35 m², lumineux et convivial, idéal pour partager vos moments du quotidien. A l'étage, l'espace nuit propose 2 chambres ainsi qu'une salle d'eau avec WC. A l'extérieur, un espace de 35 m² vous permettra de créer un coin repas, détente ou jardin selon vos envies. Frais de notaire réduits ! Une opportunité rare à ne pas manquer ! Certaines photos générées par intelligence artificielle. Contactez nous
Voir plus

Référence: 5016
Honoraires à la charge du vendeur.
Barème des honoraires

Prêt immobilier

Vous souhaitez connaître votre capacité d’emprunt et trouver le meilleur crédit immobilier ?
Réaliser une simulation gratuite

Maison à NEFIACH
Maison à NEFIACH
Maison à NEFIACH
Maison à NEFIACH
Maison à NEFIACH
Maison à NEFIACH
Maison à NEFIACH
Ce site est protégé par reCAPTCHA la Politique de confidentialité et les Conditions d’utilisation de Google s’appliquent.
Obtenir un prêt immobilier au meilleur taux ?

En poursuivant votre navigation sans modifier vos paramètres, vous acceptez l'utilisation de cookies susceptibles de réaliser des statistiques de visite. Cliquez ici pour plus d'informations