Bénéficiez des services de nos partenaires locaux soigneusement sélectionnés
pour vous accompagner dans votre parcours d'achat immobilier

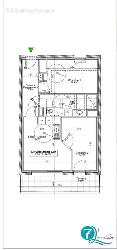
Appartement 72m² à vernierfontaine

— Vernierfontaine 25580 —
259 000 €
72 m²
4 pièces
parkingbalcon/terrasse

Nos partenaires locaux
VERNIERFONTAINE Village dynamique avec écoles - micro crèche et cantine - Kiné .... 2mns de la RN 57 et à 25mns de Besançon - Pontarlier - Ornans - Morteau. 5mns Valdahon

Dans une petite rue paisible, copropriété de 10 logements scindée en 2 petits bâtiments de RDC + 1 ainsi qu' un jardin à l'arrière de la copro

'Bâtiment A' de 6 Logements ou 'Bâtiment B' de 4 logements : du T2 au T4
Tous les appartements sont traversants
- T3 entre 53 et 74 m² constitués : Entrée et dégagement - lumineuse pièce de vie - 2 chambres - wc - une salle de bains - Cellier sur certains lots
En sous sol pour chaque appartement une place de parking privative

Possibilité :
- Plain pied ou 1er étage
- Balcon entre 8 et 12.9m² ou Terrasse entre 9.6 et 11.3m²

Les points forts :

- Energie renouvelable grâce à la Géothermie pour le chauffage au sol et l'eau chaude, une garantie d'économie pour la consommation d'énergie
- Brise soleil orientable pour la baie vitrée et volets électrique
- Isolation acoustique entre chaque appartement et également pour la séparation nuit/jour
- Fourniture et pose de carrelage 45/45 dans les pièces sèches et humides ainsi que la faïence
- Fourniture et pose d'un parquet stratifié dans les chambres
Carrelage - parquet et faïence à choisir parmi plusieurs modèles chez 'CLIMENT carrelage et bains à Saône
- Terrasse avec sol dalles 50/50
- RJ45 pour séjour et chambres
- RE 2020 Gage d'une économie d'énergie
- Possibilité de garage fermé en sous-sol
- Garantie dommage ouvrage et garantie financière d'achèvement de travaux
- Faibles charges

Prix entre 223 000€ et 272 000€ selon l'appartement choisi

Appartement livrable 2ème semestre 2027 , vente en VEFA ( Frais de notaire réduits 2,5%) .

Bâtiment réalisé avec l'intermédiaire d' un Maître d'oeuvre fort de 26 ans d'expérience dans la région

Pour tous renseignements , merci d'appeler Isabelle Amiotte-Suchet au [Coordonnées masquées] -Agent immobilier titulaire de la carte professionnelle N° CP125[Coordonnées masquées]00005

Honoraires à la charge du vendeur. Dans une copropriété de 30 lots. Aucune procédure n'est en cours. DPE en cours. Les informations sur les risques auxquels ce bien est exposé sont disponibles sur le site Géorisques : georisques.gouv.fr.
Voir plus

Référence: VA1947-LIMMOBILIER7
Bien en copropriété. Nombre de lots : 30.
Honoraires à la charge du vendeur.
Barème des honoraires

Prêt immobilier

Vous souhaitez connaître votre capacité d’emprunt et trouver le meilleur crédit immobilier ?
Réaliser une simulation gratuite

Appartement à VERNIERFONTAINE
Appartement à VERNIERFONTAINE
Appartement à VERNIERFONTAINE
Appartement à VERNIERFONTAINE
Appartement à VERNIERFONTAINE
Ce site est protégé par reCAPTCHA la Politique de confidentialité et les Conditions d’utilisation de Google s’appliquent.
Obtenir un prêt immobilier au meilleur taux ?

En poursuivant votre navigation sans modifier vos paramètres, vous acceptez l'utilisation de cookies susceptibles de réaliser des statistiques de visite. Cliquez ici pour plus d'informations