Bénéficiez des services de nos partenaires locaux soigneusement sélectionnés
pour vous accompagner dans votre parcours d'achat immobilier

Asnieres mairie / vuitton - 2 pieces - 239 000 fai

— Asnieres-Sur-Seine 92600 —
239 000 €
33 m²
2 pièces

Nos partenaires locaux
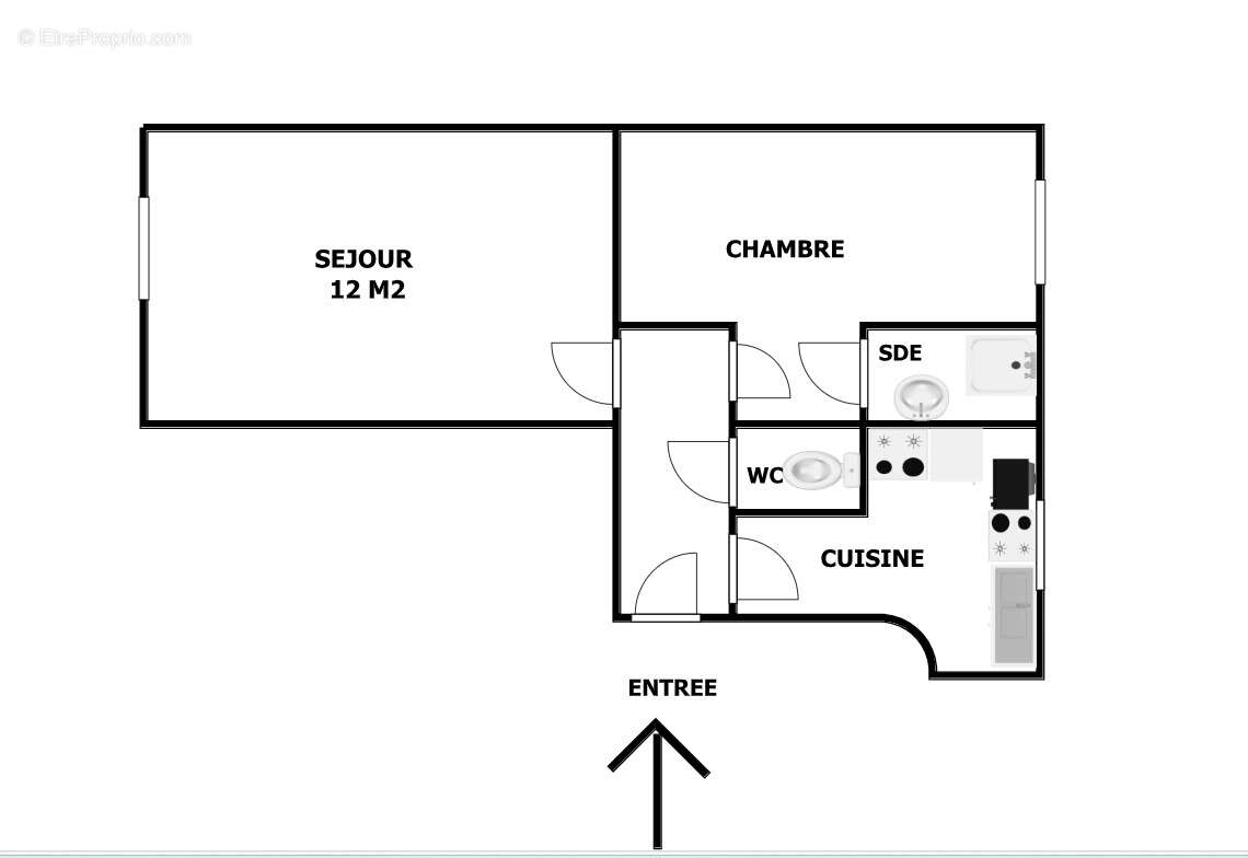
A proximité de la mairie d'Asnières et des ateliers Louis Vuitton, découvrez ce charmant 2 pièces de 33 m² traversant situé au 2ème étage d'un bel immeuble ancien. Quelques travaux de rafraîchissement et d'isolation sont à prévoir. Il se compose d'une entrée, d'un séjour lumineux exposé plein sud, d'une cuisine aménagée, d'une chambre avec salle d'eau, ainsi que de toilettes séparées. Une cave en sous-sol complète ce bien. Calme, lumineux et idéalement situé, cet appartement classé F (DPE) constitue une opportunité rare sur le secteur ! (3.91 % honoraires TTC à la charge de l'acquéreur.) Copropriété de 11 lots (Pas de procédure en cours). Charges annuelles : 1776 euros.
Voir plus

Bien en copropriété. Nombre de lots : 11. Charges de copropriété : 1776 €.
Honoraires d'agence de 3.91% à la charge de l'acquéreur
Barème des honoraires
DPE
A
B
C
D
E
F
G
GES
A
B
C
D
E
F
G

Prêt immobilier

Vous souhaitez connaître votre capacité d’emprunt et trouver le meilleur crédit immobilier ?
Réaliser une simulation gratuite

Appartement à ASNIERES-SUR-SEINE
Appartement à ASNIERES-SUR-SEINE
Appartement à ASNIERES-SUR-SEINE
Appartement à ASNIERES-SUR-SEINE
Ce site est protégé par reCAPTCHA la Politique de confidentialité et les Conditions d’utilisation de Google s’appliquent.
Obtenir un prêt immobilier au meilleur taux ?

En poursuivant votre navigation sans modifier vos paramètres, vous acceptez l'utilisation de cookies susceptibles de réaliser des statistiques de visite. Cliquez ici pour plus d'informations