Bénéficiez des services de nos partenaires locaux soigneusement sélectionnés
pour vous accompagner dans votre parcours d'achat immobilier

Maison 110m² à montendre

— Montendre 17130 —
230 000 €
110 m² / 316 m²
6 pièces
jardin

Nos partenaires locaux
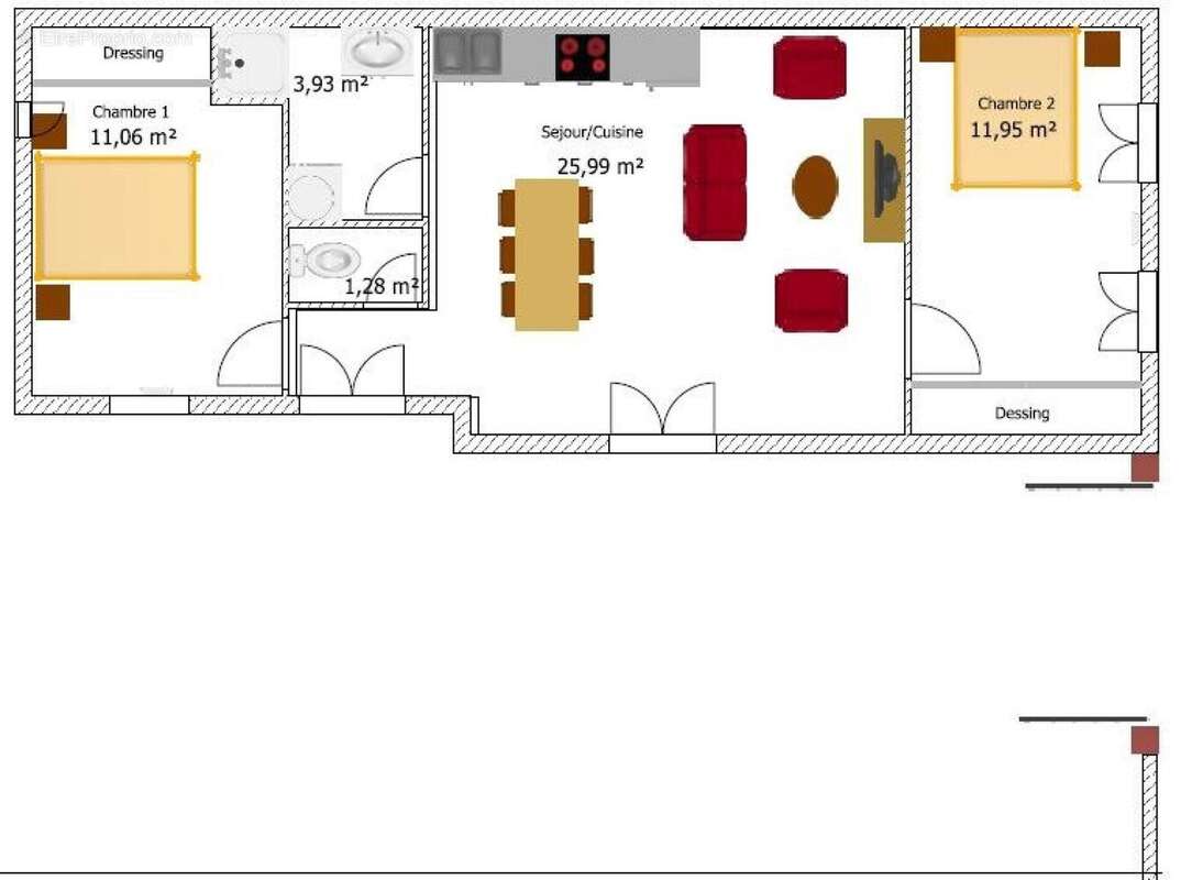
Karine Rigal Safti vous propose dans la charmante ville de Montendre (17130), cette ensemble immobilier idéal investisseur. Les habitants bénéficient d'une proximité appréciable avec les commerces locaux, les écoles et les commodités essentielles, permettant une vie quotidienne agréable et pratique à pied.

Il se compose de deux maisons offrant une surface habitable totale de 55 m² chacune, sur un terrain de 316 m² au total (135 m² et 181 m²). chaque maison comprend un salon / séjour, une chambre, une cuisine simple, un cellier, une salle d'eau et un WC. L'une est vide et l'autre l'autre louée 663.5¤ jusqu'à 2027. Un vrai atout pour un montage financier.

Les informations sur les risques auxquels ce bien est exposé sont disponibles sur le site Géorisques : www.georisques.gouv.fr
Prix de vente : 230 000 ¤
Honoraires charge vendeur

Contactez votre conseiller SAFTI : Karine RIGAL, Tél. : [Coordonnées masquées], E-mail : [Coordonnées masquées] - EI - Agent commercial immatriculé au RSAC de Libourne sous le numéro 901 986 141.
Informations LOI ALUR :
Honoraires charge vendeur. (gedeon_26118_32073642)
Voir plus

Référence: 1549926
Honoraires à la charge du vendeur.
Barème des honoraires
DPE
A
B
C
D
E
F
G
GES
A
B
C
D
E
F
G

Prêt immobilier

Vous souhaitez connaître votre capacité d’emprunt et trouver le meilleur crédit immobilier ?
Réaliser une simulation gratuite

Photo 1 - Maison à MONTENDRE
Photo 1
Photo 2 - Maison à MONTENDRE
Photo 2
Photo 3 - Maison à MONTENDRE
Photo 3
Photo 4 - Maison à MONTENDRE
Photo 4
Photo 5 - Maison à MONTENDRE
Photo 5
Photo 6 - Maison à MONTENDRE
Photo 6
Photo 7 - Maison à MONTENDRE
Photo 7
Photo 8 - Maison à MONTENDRE
Photo 8
Photo 9 - Maison à MONTENDRE
Photo 9
Ce site est protégé par reCAPTCHA la Politique de confidentialité et les Conditions d’utilisation de Google s’appliquent.
Obtenir un prêt immobilier au meilleur taux ?

En poursuivant votre navigation sans modifier vos paramètres, vous acceptez l'utilisation de cookies susceptibles de réaliser des statistiques de visite. Cliquez ici pour plus d'informations