Bénéficiez des services de nos partenaires locaux soigneusement sélectionnés
pour vous accompagner dans votre parcours d'achat immobilier

Appartement 32m² à saintes-maries-de-la-mer

— Saintes-Maries-De-La-Mer 13460 —
127 000 €
32 m²
1 pièce

Nos partenaires locaux
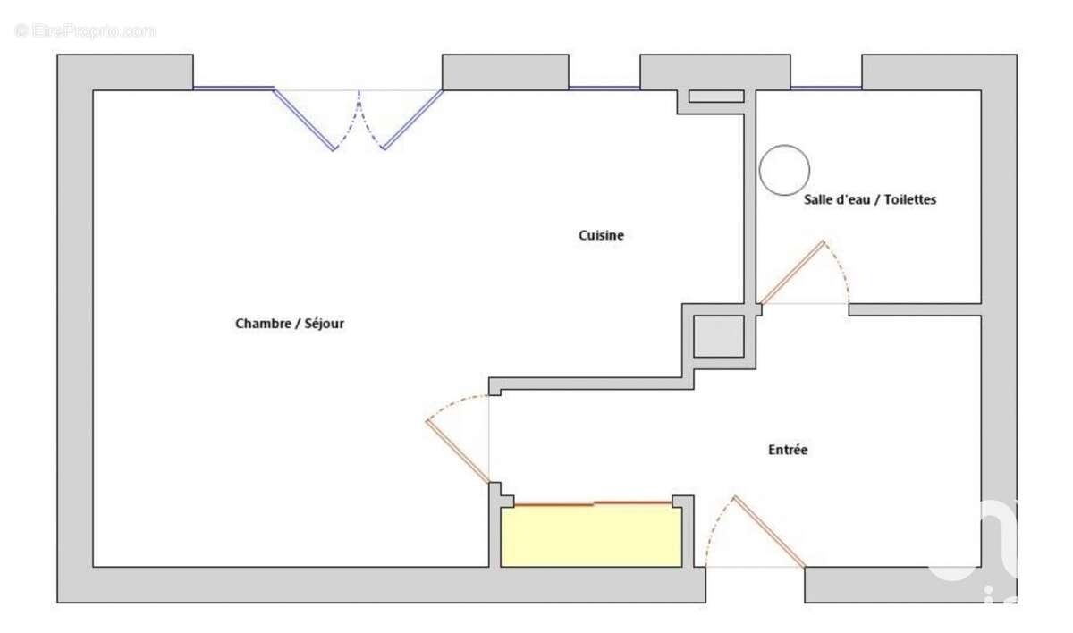
Iad France - Méline Vincent vous propose : Charmant studio au premier étage d'un petit immeuble situé dans un environnement calme. D'une surface de 31,9 m², il offre une pièce de vie lumineuse avec cuisine ouverte, une salle d'eau avec toilettes, ainsi qu'un espace dressing.

Son emplacement est un véritable atout : à seulement 10 à 15 minutes à pied des plages, en empruntant un agréable chemin bordé par l'étang des Launes. Un cadre naturel exceptionnel, typique de la Camargue.

Tous les commerces essentiels se trouvent à proximité immédiate : supérette, boulangerie, restaurants, marché local. L'environnement est à la fois vivant et paisible, idéal pour profiter du village toute l'année.

Ce bien est parfait pour un premier achat, un investissement locatif ou une résidence secondaire en bord de mer.

Possibilité de stationnement à proximité immédiate, sur une zone utilisée de manière habituelle par les riverains.

Copropriété en cours de création.

Un bien rare dans ce secteur recherché, offrant un vrai goût de vacances au quotidien. Contactez-moi rapidement pour une visite.

La presente annonce immobiliere vise 1 lot situé dans une copropriété de 9 lots au total et ne faisant l'objet d'aucune procédure en cours citée à l'article L. 721-1 du code de la construction et de l'habitation. Montant moyen mensuel de charges déclaré par le vendeur : 0¤ par mois (soit 0 ¤ annuel). Honoraires d'agence à la charge du vendeur.
Information d'affichage énergétique sur ce bien : classe ENERGIE C indice 166 et classe CLIMAT A indice 5. Les informations sur les risques auxquels ce bien est exposé, y compris l'obligation légale de débroussaillement, sont disponibles sur le site Géorisques : http://www.georisques.gouv.fr.
La présente annonce immobilière a été rédigée sous la responsabilité éditoriale de Mme Méline Vincent mandataire indépendant en immobilier (sans détention de fonds), agent commercial de la SAS I@D France immatriculé au RSAC de Tarascon sous le numéro 897747481, titulaire de la carte de démarchage immobilier pour le compte de la société I@D France SAS.
Informations LOI ALUR :
Soumis au régime de copropriété.
Nombre de lots : 9.
Honoraires charge vendeur. (gedeon_6727_32079228)
Voir plus

Référence: 1820844
Bien en copropriété. Nombre de lots : 9.
Honoraires à la charge du vendeur.
DPE
A
B
C
D
E
F
G
GES
A
B
C
D
E
F
G

Prêt immobilier

Vous souhaitez connaître votre capacité d’emprunt et trouver le meilleur crédit immobilier ?
Réaliser une simulation gratuite

Photo 1 - Appartement à SAINTES-MARIES-DE-LA-MER
Photo 1
Photo 2 - Appartement à SAINTES-MARIES-DE-LA-MER
Photo 2
Photo 3 - Appartement à SAINTES-MARIES-DE-LA-MER
Photo 3
Photo 4 - Appartement à SAINTES-MARIES-DE-LA-MER
Photo 4
Photo 5 - Appartement à SAINTES-MARIES-DE-LA-MER
Photo 5
Photo 6 - Appartement à SAINTES-MARIES-DE-LA-MER
Photo 6
Photo 7 - Appartement à SAINTES-MARIES-DE-LA-MER
Photo 7
Ce site est protégé par reCAPTCHA la Politique de confidentialité et les Conditions d’utilisation de Google s’appliquent.
Obtenir un prêt immobilier au meilleur taux ?

En poursuivant votre navigation sans modifier vos paramètres, vous acceptez l'utilisation de cookies susceptibles de réaliser des statistiques de visite. Cliquez ici pour plus d'informations