Bénéficiez des services de nos partenaires locaux soigneusement sélectionnés
pour vous accompagner dans votre parcours d'achat immobilier

Magnifique t2 traversant dernier étage avec terrasse proche port

— La Grande-Motte 34280 —
237 000 €
45 m²
2 pièces
balcon/terrasse

Nos partenaires locaux
EXCLUSIVITÉ – COUP DE CŒUR ASSURÉ

Mise à jour : un avant-contrat a été signé. N'hésitez pas à me communiquer vos critères de recherche afin que je puisse vous proposer d'autres biens similaires à celui-ci.

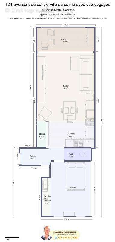
Idéalement situé en plein centre, à seulement 2 pas du port et des commerces et à 4 minutes des plages, découvrez ce magnifique appartement T2 traversant de 45 m² entièrement rénové, prolongé par une agréable loggia-terrasse de 8 m² au calme absolu.

Situé au 3ᵉ et dernier étage, il offre des prestations modernes et raffinées :
• Climatisation réversible gainable
• Carrelage effet marbre
• Cuisine ouverte sur un séjour lumineux avec vue dégagée sur la verdure
• Chambre de 13 m² avec salle d'eau privative et rangements
• WC séparés et nombreux placards intégrés
• PARKING privé en option
• LOCAL A VÉLOS, terrain de pétanque à deux pas

Il n'y a pas à ce jour d'ascenseur mais une étude de faisabilité pourra être demandée en assemblée générale (en remplacement de l'ancien vide-ordures qui n'est plus utilisé : il y a déjà un ascenseur dans d'autres bâtiments de la résidence).

Le ravalement de façade sera prochainement réalisé.

Un bien rare par son emplacement et sa rénovation soignée – idéal en résidence principale, secondaire ou investissement locatif.

Visite virtuelle disponible dans l'annonce et vidéo disponible sur demande.

Cette annonce référence 308639 vous est présentée par votre agent commercial BSK Immobilier DAMIEN GREMBER (EI) immatriculé au RSAC de MONTPELLIER (34000) sous le numéro 83981871300019.

Prix du bien : 237 000,00 €
Les honoraires d'agence sont à la charge du vendeur.

A propos de la copropriété :
Pas de procédure en cours.
Nombre de lots : 286
Charges prévisionnelles annuelles : 959,00 €

A propos des performances énergétiques :
Date de réalisation du diagnostic énergétique : 28/06/2024
Score DPE : 132 kWhEP/m²/an
Score GES : 4 kgepCO2/m²/an
Montant estimé des dépenses annuelles d'énergie pour un usage standard : entre 550.00 € et 790.00 € par an. Prix moyens des énergies indexés sur l'année 2023 (abonnements compris).

Les informations sur les risques auxquels ce bien est exposé sont disponibles sur le site Géorisques : www.georisques.gouv.fr
Voir plus

Référence: 308639
Bien en copropriété. Nombre de lots : 286. Charges de copropriété : 79 €.
Honoraires à la charge du vendeur.
DPE
A
B
C
D
E
F
G
GES
A
B
C
D
E
F
G

Prêt immobilier

Vous souhaitez connaître votre capacité d’emprunt et trouver le meilleur crédit immobilier ?
Réaliser une simulation gratuite

Appartement à LA GRANDE-MOTTE
Appartement à LA GRANDE-MOTTE
Appartement à LA GRANDE-MOTTE
Appartement à LA GRANDE-MOTTE
Appartement à LA GRANDE-MOTTE
Appartement à LA GRANDE-MOTTE
Appartement à LA GRANDE-MOTTE
Appartement à LA GRANDE-MOTTE
Appartement à LA GRANDE-MOTTE
Ce site est protégé par reCAPTCHA la Politique de confidentialité et les Conditions d’utilisation de Google s’appliquent.
Obtenir un prêt immobilier au meilleur taux ?

En poursuivant votre navigation sans modifier vos paramètres, vous acceptez l'utilisation de cookies susceptibles de réaliser des statistiques de visite. Cliquez ici pour plus d'informations