Bénéficiez des services de nos partenaires locaux soigneusement sélectionnés
pour vous accompagner dans votre parcours d'achat immobilier

Investissement locatif sous bail commercial

— Villarembert 73300 —
60 230 €
28 m²
2 pièces

Nos partenaires locaux
Investissement locatif sous bail commercial résidence de tourisme gérée
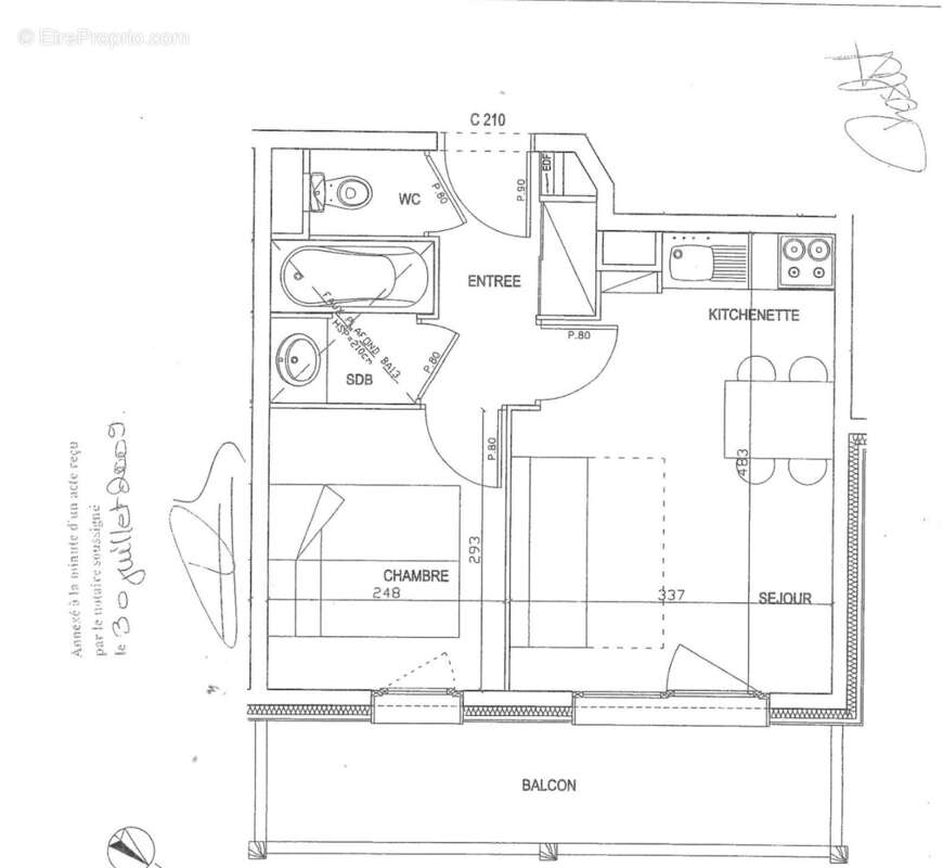
Un appartement de type T2, au 6è étage portant le numéro 608, d'une surface de 28.39 m2, comprenant une entrée-dégagement, un séjour-kitchenette, une chambre, une salle de bains, wc, placards.
Bail commercial du 1er octobre 2021 pour une durée de 9 ans, soit jusqu'au 30 septembre 2030.
Un bail commercial récent, avec loyer purgé de toute baisse
- Jusqu'à 5 semaines d'occupation en mai, juin, septembre et octobre
Un balcon de 3.9 m2
Loyer perçu propriétaire annuel HT : 3175,00 €
Charges générales de copropriété / an : 510,00 €
Taxe foncière : 558,00 €
Pour plus d'informations contactez Patrim Riviera tel [Coordonnées masquées]

Bénéficiez de notre pôle dédié à l'achat : service courtage en financement , gestion locative, accompagnement juridique et fiscal.
Voir plus

Bien en copropriété.
Barème des honoraires
DPE
A
B
C
D
E
F
G
GES
A
B
C
D
E
F
G

Prêt immobilier

Vous souhaitez connaître votre capacité d’emprunt et trouver le meilleur crédit immobilier ?
Réaliser une simulation gratuite

Appartement à VILLAREMBERT
Appartement à VILLAREMBERT
Appartement à VILLAREMBERT
Appartement à VILLAREMBERT
Appartement à VILLAREMBERT
Appartement à VILLAREMBERT
Appartement à VILLAREMBERT
Appartement à VILLAREMBERT
Appartement à VILLAREMBERT
Appartement à VILLAREMBERT
Appartement à VILLAREMBERT
Appartement à VILLAREMBERT
Appartement à VILLAREMBERT
Appartement à VILLAREMBERT
Ce site est protégé par reCAPTCHA la Politique de confidentialité et les Conditions d’utilisation de Google s’appliquent.
Obtenir un prêt immobilier au meilleur taux ?

En poursuivant votre navigation sans modifier vos paramètres, vous acceptez l'utilisation de cookies susceptibles de réaliser des statistiques de visite. Cliquez ici pour plus d'informations