Bénéficiez des services de nos partenaires locaux soigneusement sélectionnés
pour vous accompagner dans votre parcours d'achat immobilier

146m² à marseille-10e

— Marseille-10e 13010 —
100 000 €
146 m²

Nos partenaires locaux
' Le Pain d'Antan'

10ÈME ARD - La Capelette


Vente fonds de commerce boulangerie - pâtisserie, et restauration rapide.
Aucune déspécialisation possible
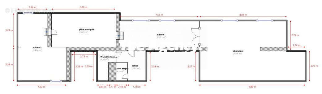
Local commercial de 146m² - Rénovations à prévoir


THE AGENCY vous propose en EXCLUSIVITÉ ce fonds de commerce de boulangerie - pâtisserie de 146,13m² Loi Carrez.


Le local est composé de la manière suivante :

un espace commercial, une cuisine et un laboratoire en enfilade, un cellier / espace de stockage, un dégagement,
une salle de repos et une salle d'eau avec WC.
Possibilité de créer un espace de restauration d'une vingtaine de places assises.


Le local équipé d'une extraction conforme.


Loyer : 630.00€ /mois HT CC
Pas de taxe foncière

'The Agency la révolution immobilière …'




Votre conseiller The Agency : Jean Bastien COSSU
Agent commercial (Entreprise individuelle)
Voir plus

Référence: VF102-THEAGENCY
Honoraires d'agence de 11.11% à la charge de l'acquéreur
Barème des honoraires

Prêt immobilier

Vous souhaitez connaître votre capacité d’emprunt et trouver le meilleur crédit immobilier ?
Réaliser une simulation gratuite

Autre à MARSEILLE-10E
Autre à MARSEILLE-10E
Autre à MARSEILLE-10E
Autre à MARSEILLE-10E
Autre à MARSEILLE-10E
Autre à MARSEILLE-10E
Autre à MARSEILLE-10E
Autre à MARSEILLE-10E
Autre à MARSEILLE-10E
Ce site est protégé par reCAPTCHA la Politique de confidentialité et les Conditions d’utilisation de Google s’appliquent.
Obtenir un prêt immobilier au meilleur taux ?

En poursuivant votre navigation sans modifier vos paramètres, vous acceptez l'utilisation de cookies susceptibles de réaliser des statistiques de visite. Cliquez ici pour plus d'informations