Bénéficiez des services de nos partenaires locaux soigneusement sélectionnés
pour vous accompagner dans votre parcours d'achat immobilier

Paris 18 - rue duhesme

— Paris-18e 75018 —
400 000 €
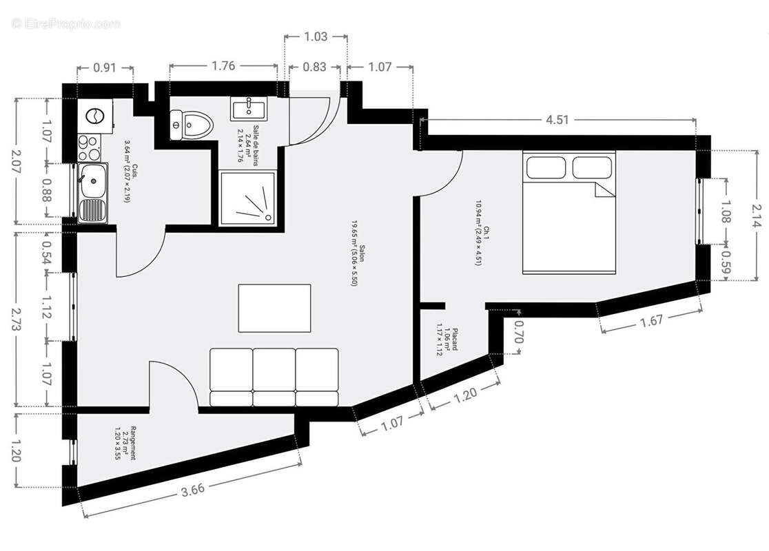
41 m²
2 pièces

Nos partenaires locaux
CARRE VERSIGNY - RUE DUHESME Au deuxième étage sans ascenseur d'un immeuble fin XIXème dans une copropriété bien entretenue nous vous invitons un découvrir ce charmant deux pièces qui se compose comme suit: une entrée, une pièce à vivre avec une cuisine indépendante attenante, une chambre spacieuse, une salle de douches avec toilettes et un dressing. Traversant Est/Ouest, ensoleillé à souhait, proche transports et des commerces de ce tout nouveau quartier très vivant le CARRE VERSIGNY. Tolérance vélos dans la cour et une cave en sous-sol sont les plus. (4.71 % honoraires TTC à la charge de l'acquéreur.) Copropriété de 18 lots (Pas de procédure en cours). Charges annuelles : 1368 euros.
Voir plus

Référence: 1573
Bien en copropriété. Nombre de lots : 18. Charges de copropriété : 1368 €.
Honoraires d'agence de 4.71% à la charge de l'acquéreur
DPE
A
B
C
D
E
F
G
GES
A
B
C
D
E
F
G

Prêt immobilier

Vous souhaitez connaître votre capacité d’emprunt et trouver le meilleur crédit immobilier ?
Réaliser une simulation gratuite

Appartement à PARIS-18E
Appartement à PARIS-18E
Appartement à PARIS-18E
Appartement à PARIS-18E
Appartement à PARIS-18E
Appartement à PARIS-18E
Appartement à PARIS-18E
Appartement à PARIS-18E
Appartement à PARIS-18E
Appartement à PARIS-18E
Appartement à PARIS-18E
Ce site est protégé par reCAPTCHA la Politique de confidentialité et les Conditions d’utilisation de Google s’appliquent.
Obtenir un prêt immobilier au meilleur taux ?

En poursuivant votre navigation sans modifier vos paramètres, vous acceptez l'utilisation de cookies susceptibles de réaliser des statistiques de visite. Cliquez ici pour plus d'informations