Bénéficiez des services de nos partenaires locaux soigneusement sélectionnés
pour vous accompagner dans votre parcours d'achat immobilier

Appartement 3 pièce(s) 59,92 m² i allée de la musique isaint gratien (95210)

— Saint-Gratien 95210 —
278 250 €
65 m²
3 pièces
parking

Nos partenaires locaux
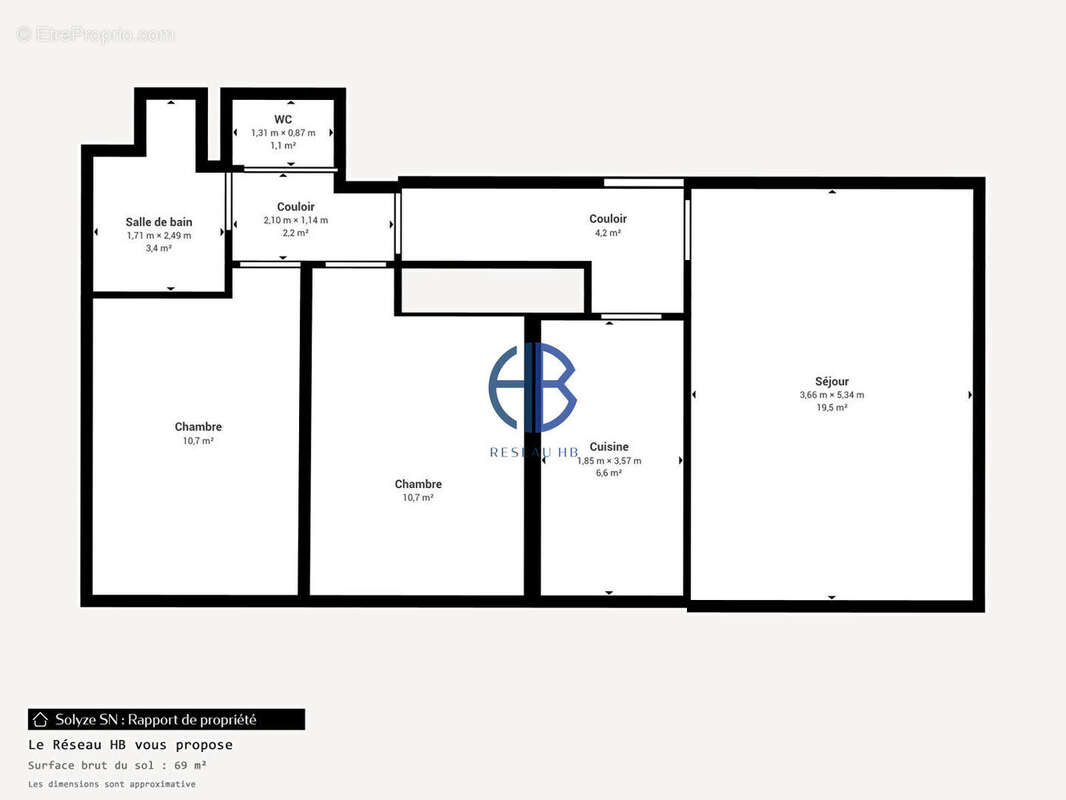
APPARTEMENT 3 PIÈCES 59,92 m² - LUMINEUX - CALME - BALCON -BOX - RÉSIDENCE SÉCURISÉE Le Réseau HB vous propose en exclusivité cet agréable appartement 3 pièces offrant une surface habitable de 59,92 m², situé au 2ème étage sur 3 d'une résidence récente (2005), calme et parfaitement entretenue, dans un secteur recherché de Saint-Gratien. Surface au sol totale : 62,62 m² Lumineux, bien distribué et bénéficiant d'un environnement verdoyant, ce bien offre un cadre de vie harmonieux et fonctionnel, à proximité immédiate de toutes les commodités. Dès les premiers pas, la sensation d'espace et de clarté se fait immédiatement ressentir. Un vaste hall équipé de rangements intégrés accueille les visiteurs et offre une organisation fluide et agréable du logement, alliant clarté, confort et équilibre. Le séjour ( 19,23 m²) , spacieux et baigné de lumière, s'ouvre sur un balcon ( 2,70 m²) intimiste offrant une vue dégagée sur la verdure environnante. Véritable coeur de l'appartement, cet espace de vie permet d'accueillir aisément un coin repas et un espace salon, propices à la convivialité et au confort au quotidien. La cuisine indépendante, attenante au séjour, offre une belle surface confortable et la possibilité d'un aménagement personnalisé, alliant praticité, convivialité et adaptation à votre mode de vie. La visite se poursuit vers l'espace nuit, à l'écart du séjour, où règnent calme et intimité. Il se compose de deux chambres ( 10,77 m² et 11,12 m²) bien proportionnées, aux volumes équilibrés et à la luminosité naturelle agréable, pouvant aisément accueillir rangements ou espace bureau. La salle d'eau se distingue par sa douche à l'italienne et ses lignes contemporaines, pensées pour le confort et la facilité d'entretien. Les toilettes séparées apportent une touche de praticité et de confort au quotidien, contribuant à un agencement moderne, fonctionnel et bien pensé. Un box fermé privatif en sous-sol complète enfin ce bien. CONFORT ET PRESTATIONS Menuiseries PVC double vitrage Chauffage collectif au gaz Box fermé privatif Charges de copropriété maîtrisées : 92 euros/mois Taxe foncière : 1 900 euros Parties communes en excellent état Résidence sans ascenseur (3 étages) DPE réalisé en 2023 : Classe D (222,75) / GES C (11) COPROPRIÉTÉ L'ensemble prend place dans une résidence récente, reconnue pour sa qualité d'entretien et son cadre paisible. Construite en 2005, la résidence se distingue par son entretien rigoureux, sa gestion saine et son ambiance paisible. A taille humaine, elle garantit un cadre de vie serein et convivial, apprécié pour sa tranquillité et sa proximité avec le centre-ville. Aucune procédure en cours, gestion maîtrisée et charges stables. Informations copropriété : Nombre total de lots : 351 Lots à usage d'habitation : 164 Lots de stationnement : 174 LOCALISATION Enfin, la localisation vient parfaire l'ensemble, offrant un équilibre rare entre sérénité et accessibilité. Située dans le quartier résidentiel de l'Allée de la Musique, la résidence bénéficie d'un environnement verdoyant et paisible, apprécié pour son calme et sa proximité des transports, des écoles et des commerces. Transports Gare RER C Saint-Gratien à environ 10 minutes à pied Gare Enghien-les-Bains (ligne H) à 5 minutes en voiture Accès rapide à l'autoroute A15 et aux lignes de bus locales Commodités Supermarchés, boulangeries, pharmacie, restaurants et services à proximité immédiate Marché couvert et centre-ville accessibles à pied Écoles Écoles maternelles et primaires à 3 minutes à pied Collège et lycée Camille Saint-Saëns à moins de 10 minutes Le quartier de l'Allée de la Musique s'inscrit dans un environnement paisible, conjuguant nature et accessibilité. Entre calme, verdure et proximité des services, Saint-Gratien offre un cadre de vie privilégié aux portes de Paris. A quelques pas du lac d'Enghien et de ses espaces de loisirs, le secteur séduit par son équilibre entre sérénité et dynamisme urbain, idéal pour profiter d'un quotidien à la fois pratique et apaisant. L'ensemble dégage une agréable sensation d'harmonie et de confort. Cet appartement lumineux, bien agencé et idéalement situé, dispose d'un balcon et d'un box privatif, au sein d'une résidence récente nichée dans un environnement calme et recherché de Saint-Gratien. Un bien complet et équilibré, alliant fonctionnalité, sérénité et qualité de vie. Ce bien vous intéresse ? Contactez-nous dès aujourd'hui pour en savoir plus, échanger sur votre projet et organiser une visite afin de découvrir tout le potentiel de cet appartement. Honoraires à la charge du vendeur. Informations sur les risques disponibles sur : www.georisques.gouv.fr. Copropriété de 97 lots - dont 45 lots habitation.(Pas de procédure en cours). Vincent CAMILLERI (EI) Agent Commercial - Numéro RSAC : 910 332 899 - PARIS.
Voir plus

Référence: 3031
Bien en copropriété. Nombre de lots : 97.
Honoraires à la charge du vendeur.
Barème des honoraires
DPE
A
B
C
D
E
F
G
GES
A
B
C
D
E
F
G

Prêt immobilier

Vous souhaitez connaître votre capacité d’emprunt et trouver le meilleur crédit immobilier ?
Réaliser une simulation gratuite

Appartement à SAINT-GRATIEN
Appartement à SAINT-GRATIEN
Appartement à SAINT-GRATIEN
Appartement à SAINT-GRATIEN
Appartement à SAINT-GRATIEN
Appartement à SAINT-GRATIEN
Appartement à SAINT-GRATIEN
Appartement à SAINT-GRATIEN
Appartement à SAINT-GRATIEN
Appartement à SAINT-GRATIEN
Appartement à SAINT-GRATIEN
Appartement à SAINT-GRATIEN
Appartement à SAINT-GRATIEN
Appartement à SAINT-GRATIEN
Appartement à SAINT-GRATIEN
Appartement à SAINT-GRATIEN
Ce site est protégé par reCAPTCHA la Politique de confidentialité et les Conditions d’utilisation de Google s’appliquent.
Obtenir un prêt immobilier au meilleur taux ?

En poursuivant votre navigation sans modifier vos paramètres, vous acceptez l'utilisation de cookies susceptibles de réaliser des statistiques de visite. Cliquez ici pour plus d'informations