Bénéficiez des services de nos partenaires locaux soigneusement sélectionnés
pour vous accompagner dans votre parcours d'achat immobilier

Exclusivite maison aix les bains 7 pièce(s) 162 m2

— Aix-Les-Bains 73100 —
520 000 €
163 m² / 695 m²
7 pièces
balcon/terrassejardin

Nos partenaires locaux
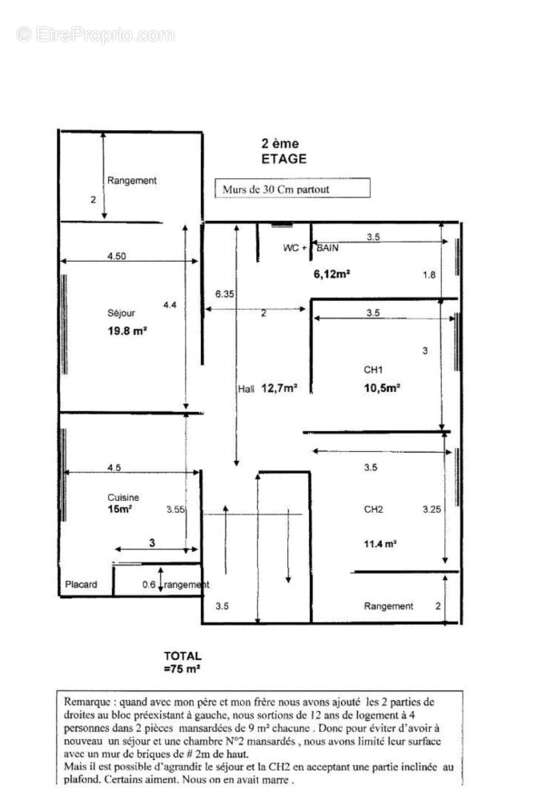
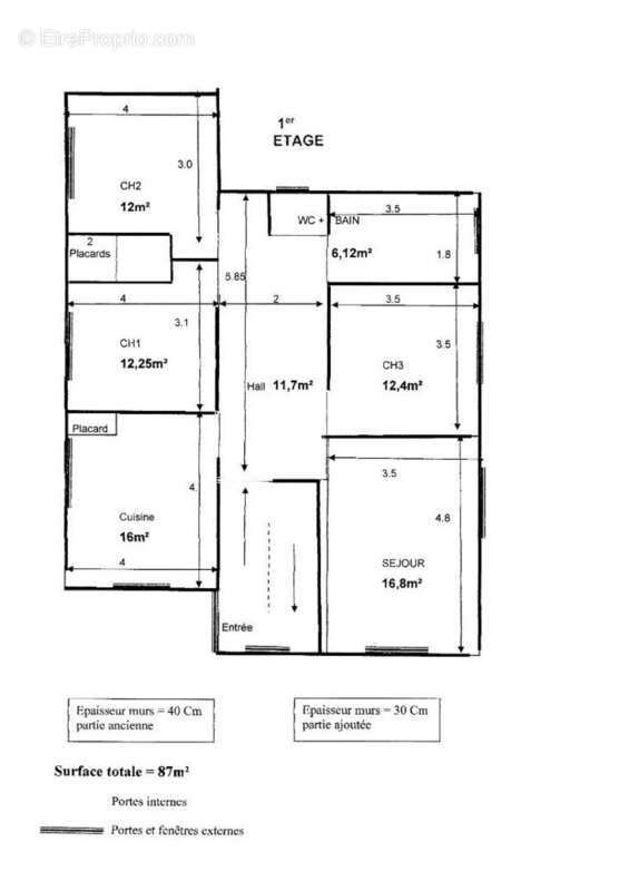
A Vendre EN EXCLUSIVITE: Spacieuse Maison de 2 Appartements à Aix-les-Bains - Quartier Prisé du 148 AVENUE DU Grand Port 73100 AIX LES BAINS Prix : 520 000 euros Opportunité rare sur le secteur très recherché du Grand Port à Aix-les-Bains ! Venez découvrir cette maison de caractère de 1970, d'une surface totale de 162 m², plus sous sol érigée sur un terrain clos et arboré de 695 m². Idéalement située à quelques pas du lac du Bourget, cette propriété offre un cadre de vie entre ville et nature. Un bien, de multiples possibilités : Cette maison se compose de deux appartements distincts, offrant une flexibilité rare : Idéal pour un projet bi-familial : Chaque famille dispose de son espace de vie indépendant tout en partageant le plaisir d'un grand jardin. Excellent investissement locatif : La forte demande dans ce quartier touristique vous assure un rendement locatif attractif. Vous pouvez habiter un des appartements et louer le second, ou louer les deux unités. Grande maison familiale : Les deux appartements peuvent être réunis pour créer une vaste résidence principale, spacieuse et fonctionnelle. DESCRIPTION DU BIEN : Surface habitable totale : 162 m² Terrain : 695 m² clos, paysager et sans vis-à-vis, un véritable havre de paix. Année de construction : 1970 Statut : Vente en pleine propriété (pas de copropriété à créer, ni de charges de copropriété à prévoir). Les atouts qui font la différence : EMPLACEMENT : Située sur l'Avenue du Grand Port, vous bénéficiez d'un accès immédiat aux plages, au port, aux restaurants et à toutes les activités nautiques. Le centre-ville d'Aix-les-Bains, ses commerces et ses thermes sont accessibles en quelques minutes. Potentiel d'aménagement : Des travaux de rafraîchissement sont à prévoir, vous offrant ainsi l'opportunité de réaménager et de décorer les espaces à votre goût pour créer la maison de vos rêves. Luminosité : Profitez d'un environnement paisible et d'une belle luminosité tout au long de la journée. Cette maison représente une opportunité unique d'acquérir un bien avec un fort potentiel dans l'un des quartiers les plus convoités d'Aix-les-Bains. Ne laissez pas passer cette chance ! Contactez-nous dès aujourd'hui pour organiser une visite.
Voir plus

Référence: 73285
Honoraires à la charge du vendeur.
Barème des honoraires
DPE
A
B
C
D
E
F
G
GES
A
B
C
D
E
F
G

Prêt immobilier

Vous souhaitez connaître votre capacité d’emprunt et trouver le meilleur crédit immobilier ?
Réaliser une simulation gratuite

Maison à AIX-LES-BAINS
Maison à AIX-LES-BAINS
Maison à AIX-LES-BAINS
Maison à AIX-LES-BAINS
Maison à AIX-LES-BAINS
Maison à AIX-LES-BAINS
Ce site est protégé par reCAPTCHA la Politique de confidentialité et les Conditions d’utilisation de Google s’appliquent.
Obtenir un prêt immobilier au meilleur taux ?

En poursuivant votre navigation sans modifier vos paramètres, vous acceptez l'utilisation de cookies susceptibles de réaliser des statistiques de visite. Cliquez ici pour plus d'informations