Maison 119m² à langon

— Langon 35660 —
286 000 €
119 m² / 2 560 m²
5 pièces
parkingjardin

Rare à la vente - Très belle opportunité sur LANGON (35) : Maison neuve de 2024 - RE2020 - avec un DPE en classe A, de plein pied de 119 m² en hameau très calme à 900 m de la gare SNCF et à 1500 m du centre bourg.
LANGON (35) est une commune labelisée « Communes du Patrimoine Rural de Bretagne » disposant d'une gare SNCF, avec accès rapide à la 2x2 voies Rennes / Redon
Je vous propose cette très belle maison de 119 m² orientée plein sud, sur un terrain de 2560 m² sans vis-à-vis et clôturée sur 3 côtés.
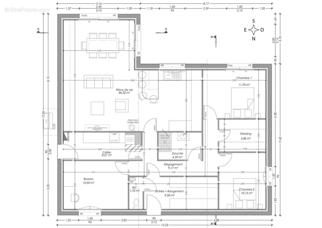
Elle dispose d'une grande entrée de 9 m² aménageable, et d'un WC avec arrivée d'eau et évacuation EU pour un lave-main.
La grande pièce de vie de 46 m² avec sa cuisine Ixina est, du fait de sa double orientation - sud et ouest - très claire. La cuisine équipée est pourvue de nombreux rangements, d'un lave-vaisselle 8 couverts, d'une plaque à induction, et d'un coin repas. Côté salon un emplacement pour un éventuel poêle est prévu, et une terrasse est possible en façade sud (prévue dans le permis de construire).
En plus des trois chambres respectivement de 12 m², 11,5 m² et 10 m², vous disposerez d'une salle de douche de 4.5 m² et d'un dressing de 5,80 m².
Le cellier de 8 m² avec accès direct via l'extérieur, où se trouve le Ballon TD un emplacement pour lave-linge, peut être aménagé pour des rangements.
Elle dispose d'une PAC, d'un assainissement autonome à filtre compact et d'une cuve enterrée de récupération des eaux de pluie de 8600 litres.
Une étude de sol a été réalisée en amont de la construction – Maison MTB.
Ne passer pas à côté, coup de coeur assuré.

Les informations sur les risques auxquels ce bien est exposé sont disponibles sur le site Géorisques : www.georisques.gouv.fr
Prix de vente : 286 000 ¤
Honoraires charge vendeur

Contactez votre conseiller SAFTI : Myriam MIS, Tél. : [Coordonnées masquées], E-mail : [Coordonnées masquées] - EI - Agent commercial immatriculé au RSAC de RENNES sous le numéro 818 894 743.
Informations LOI ALUR :
Honoraires charge vendeur. (gedeon_26118_31146788)
Voir plus

Référence: 1461503
Honoraires à la charge du vendeur.
Barème des honoraires
DPE
A
B
C
D
E
F
G
GES
A
B
C
D
E
F
G

Prêt immobilier

Vous souhaitez connaître votre capacité d’emprunt et trouver le meilleur crédit immobilier ?
Réaliser une simulation gratuite

Photo 1 - Maison à LANGON
Photo 1
Photo 2 - Maison à LANGON
Photo 2
Photo 3 - Maison à LANGON
Photo 3
Photo 4 - Maison à LANGON
Photo 4
Photo 5 - Maison à LANGON
Photo 5
Photo 6 - Maison à LANGON
Photo 6
Photo 7 - Maison à LANGON
Photo 7
Photo 8 - Maison à LANGON
Photo 8
Photo 9 - Maison à LANGON
Photo 9
Ce site est protégé par reCAPTCHA la Politique de confidentialité et les Conditions d’utilisation de Google s’appliquent.
Obtenir un prêt immobilier au meilleur taux ?

En poursuivant votre navigation sans modifier vos paramètres, vous acceptez l'utilisation de cookies susceptibles de réaliser des statistiques de visite. Cliquez ici pour plus d'informations