Maison spacieuse au cœur de la ville du teil

— Le Teil 07400 —
216 000 €
127 m²
6 pièces
balcon/terrasse

À vendre au Teil, maison familiale d'environ 127 m² sur un terrain de 410 m², située dans un quartier résidentiel calme et proche des commerces.

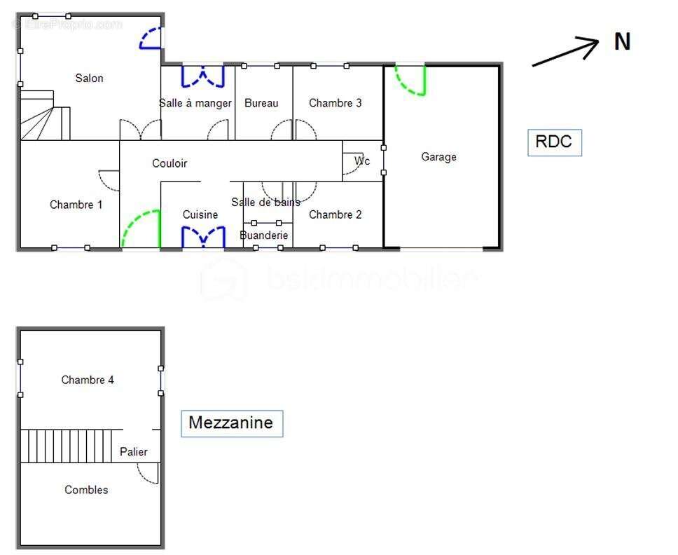
Au rez-de-chaussée :

Grand séjour lumineux avec cheminée et salle à manger donnant sur l'extérieur
Cuisine indépendante
3 chambres + bureau/cellier
Salle de bains, WC séparé et buanderie
Garage de 19 m²

À l'étage :

Grande chambre supplémentaire
Palier avec accès combles

Double terrasse
Proximité commerces, écoles et transports
Travaux à prévoir = beau potentiel pour personnaliser selon vos envies

Un bien idéal pour une famille recherchant espace, confort et proximité des commodités.

Contactez Nesrine Fontaine pour plus d'informations ou pour organiser une visite.

Cette annonce référence 301433 vous est présentée par votre agent commercial BSK Immobilier NESRINE FONTAINE (EI) immatriculé au RSAC de AUBENAS (07200) sous le numéro 88987251100015.

Prix du bien : 216 000,00 €
Prix du bien hors honoraires : 210 000,00 €
Honoraires TTC : 2,86 %
Les honoraires d'agence sont à la charge de l'acquéreur.

A propos des performances énergétiques :
Date de réalisation du diagnostic énergétique : 31/01/2025
Score DPE : 334 kWhEP/m²/an
Score GES : 10 kgepCO2/m²/an
Montant estimé des dépenses annuelles d'énergie pour un usage standard : entre 2830.00 € et 3890.00 € par an. Prix moyens des énergies indexés sur l'année 2021 (abonnements compris).

Les informations sur les risques auxquels ce bien est exposé sont disponibles sur le site Géorisques : www.georisques.gouv.fr
Voir plus

Référence: 301433_1
DPE
A
B
C
D
E
F
G
GES
A
B
C
D
E
F
G

Prêt immobilier

Vous souhaitez connaître votre capacité d’emprunt et trouver le meilleur crédit immobilier ?
Réaliser une simulation gratuite

Maison à LE TEIL
Maison à LE TEIL
Maison à LE TEIL
Maison à LE TEIL
Maison à LE TEIL
Maison à LE TEIL
Maison à LE TEIL
Maison à LE TEIL
Maison à LE TEIL
Maison à LE TEIL
Maison à LE TEIL
Maison à LE TEIL
Maison à LE TEIL
Ce site est protégé par reCAPTCHA la Politique de confidentialité et les Conditions d’utilisation de Google s’appliquent.
Obtenir un prêt immobilier au meilleur taux ?

En poursuivant votre navigation sans modifier vos paramètres, vous acceptez l'utilisation de cookies susceptibles de réaliser des statistiques de visite. Cliquez ici pour plus d'informations