Bénéficiez des services de nos partenaires locaux soigneusement sélectionnés
pour vous accompagner dans votre parcours d'achat immobilier

Appartement 58m² à paris 17e arrondissement

— Paris-17e 75017 —
470 000 €
58 m²
2 pièces
parking

Nos partenaires locaux
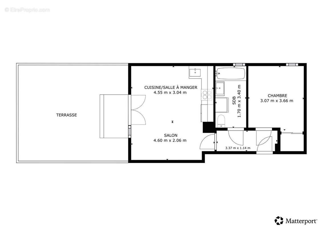
Découvrez un appartement de 2 pièces proposé par ERA Guy Moquet, vous offrant une terrasse dinatoire et parking.
Rue Pierre Rebière, métro Porte de clichy, ligne 14 et 13, bus, tramway. Proximité des commerces et des écoles.
Dans un immeuble de 2012, bien entretenu, digicode, interphone, en rez- de- jardin.Un 2 pièces de 43,61m2 carrez et 87,11m2 en surface totale.Il est composé d'une pièce principale avec une cuisine ouverte aménagée et équipée de 24m2 donnant en une terrasse dinatoire de 43,50, une chambre de 11,42m2 et une salle de bain avec WC.
Les fenêtres sont toutes en double vitrage avec volet électriques.
L'appartement bénéficie d'un plan fonctionnel avec de nombreux rangements et d'un environnement calme et verdoyant, tout en restant à proximité immédiate des transports et des commodités.
De plus avoir une place de parking, l'immeuble vous offre : local vélo- local poussette- espace commun en sous- sol pour les scooteurs.
Chauffage collectif. Performance énergétique C.
Charges 176€/ mois- Taxe foncière 1130€-
Aucun travaux à prévoir.
N'attendez pas, contactez-nous dès aujourd'hui pour organiser votre visite.ERA GUY MOQUET48, Rue Guy Môquet 75017 Paris [Coordonnées masquées] [Coordonnées masquées]
L'Etat des Risques et Pollution peut être consulté sur https://www.georisques.gouv.fr
Voir plus

Référence: 4099
DPE
A
B
C
D
E
F
G
GES
A
B
C
D
E
F
G

Prêt immobilier

Vous souhaitez connaître votre capacité d’emprunt et trouver le meilleur crédit immobilier ?
Réaliser une simulation gratuite

Appartement à PARIS-17E
Appartement à PARIS-17E
Appartement à PARIS-17E
Appartement à PARIS-17E
Appartement à PARIS-17E
Appartement à PARIS-17E
Appartement à PARIS-17E
Appartement à PARIS-17E
Appartement à PARIS-17E
Appartement à PARIS-17E
Appartement à PARIS-17E
Ce site est protégé par reCAPTCHA la Politique de confidentialité et les Conditions d’utilisation de Google s’appliquent.
Obtenir un prêt immobilier au meilleur taux ?

En poursuivant votre navigation sans modifier vos paramètres, vous acceptez l'utilisation de cookies susceptibles de réaliser des statistiques de visite. Cliquez ici pour plus d'informations