Bénéficiez des services de nos partenaires locaux soigneusement sélectionnés
pour vous accompagner dans votre parcours d'achat immobilier

maison contemporaine sous garantie décennale – 4 chambres

— Saint-Mariens 33620 —
279 500 €
109 m² / 875 m²
6 pièces
parkingbalcon/terrassejardin

Nos partenaires locaux
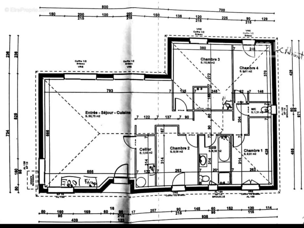
Située sur la commune de Saint-Mariens, cette maison contemporaine récente de 110m² offre de belles prestations et ne nécessite aucun travaux.

Elle se compose d’une vaste pièce de vie lumineuse de 50 m², idéale pour recevoir famille et amis, ainsi que de 4 chambres, dont une suite parentale avec salle d’eau privative.

Un cellier, une salle de bain équipée d’une vasque et d’une douche, ainsi qu’un toilette séparé viennent compléter ce bien.

Côté confort, la maison bénéficie d’un système de chauffage gainable, d’un poêle à pellets, et présente une excellente performance énergétique (A-A), garantissant un confort optimal tout au long de l’année.

Édifiée sur un terrain de 875 m², elle dispose également d’un double garage à terminer et d’une clôture à finaliser, offrant de multiples possibilités d’aménagement extérieur selon vos envies.

Les atouts
* Commune recherchée et cadre de vie agréable
* Maison sous garantie décennale
* Beaux volumes et prestations modernes
* Idéale pour une famille souhaitant s’installer dans un environnement calme et de qualité

N’hésitez pas à me contacter pour plus d’informations ou pour organiser une visite. Honoraires à la charge du vendeur - Montant moyen de la quote-part de charges courantes 1,800 €/an - Montant estimé des dépenses annuelles d'énergie pour un usage standard, établi à partir des prix de l'énergie de l'année 2021 : 610€ ~ 840€ - Laura PASCAL - Agent commercial - EI - RSAC LIBOURNE 911709582 - RCS 4[Coordonnées masquées]127 - Caisse de garantie QBE 500000 EUR
Voir plus

Référence: 86391663
Barème des honoraires
DPE
A
B
C
D
E
F
G
GES
A
B
C
D
E
F
G

Prêt immobilier

Vous souhaitez connaître votre capacité d’emprunt et trouver le meilleur crédit immobilier ?
Réaliser une simulation gratuite

Maison à SAINT-MARIENS
Maison à SAINT-MARIENS
Maison à SAINT-MARIENS
Maison à SAINT-MARIENS
Maison à SAINT-MARIENS
Maison à SAINT-MARIENS
Maison à SAINT-MARIENS
Maison à SAINT-MARIENS
Maison à SAINT-MARIENS
Maison à SAINT-MARIENS
Maison à SAINT-MARIENS
Ce site est protégé par reCAPTCHA la Politique de confidentialité et les Conditions d’utilisation de Google s’appliquent.
Obtenir un prêt immobilier au meilleur taux ?

En poursuivant votre navigation sans modifier vos paramètres, vous acceptez l'utilisation de cookies susceptibles de réaliser des statistiques de visite. Cliquez ici pour plus d'informations