Bénéficiez des services de nos partenaires locaux soigneusement sélectionnés
pour vous accompagner dans votre parcours d'achat immobilier

Appartement 54m² à nice

— Nice 06000 —
226 000 €
54 m²
3 pièces

Nos partenaires locaux
Votre agence immobilière à Nice vous présente à la vente:

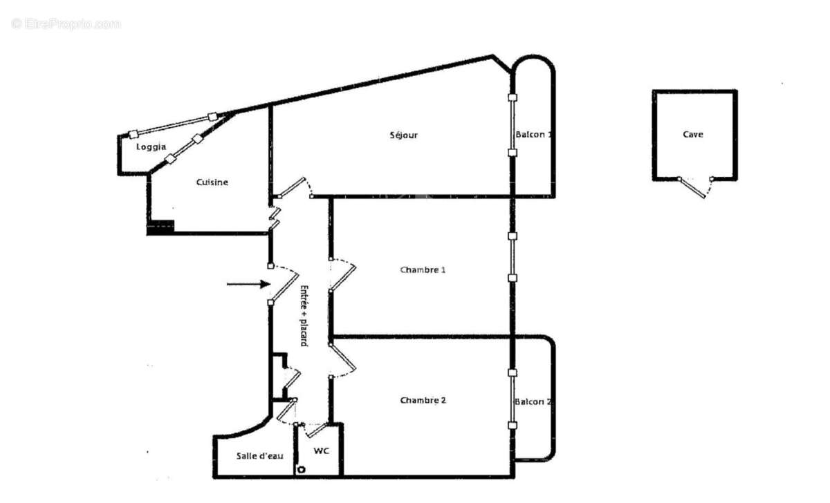
Un appartement traversant de type 3 pièces offre une superbe luminosité grâce à ses deux balcons exposés Est et une disposition parfaitement fonctionnelle.

Il se compose comme suit :
- Une entrée avec placard,
- Un séjour spacieux ouvrant sur un premier balcon ensoleillé,
- Deux chambres confortables, dont l'une avec accès direct au deuxième balcon,
- Une cuisine indépendante aménagée, donnant sur une loggia fermée,
- Une salle d'eau avec douche et bidet,
- Un WC séparé.

Une cave vient compléter ce bien.

Localisation idéale : à quelques minutes à pied de la gare SNCF, des commerces de proximité, des écoles et de la Promenade des Anglais. Emplacement parfait pour un pied-à-terre, une résidence principale ou un investissement locatif.

Accès rapide au tramway, aux lignes de bus et aux axes routiers majeurs.

Plus d'infos: [Coordonnées masquées] Kiryl
[Coordonnées masquées]
Voir plus

Référence: 11664KP

Prêt immobilier

Vous souhaitez connaître votre capacité d’emprunt et trouver le meilleur crédit immobilier ?
Réaliser une simulation gratuite

Appartement à NICE
Appartement à NICE
Appartement à NICE
Appartement à NICE
Appartement à NICE
Appartement à NICE
Appartement à NICE
Appartement à NICE
Appartement à NICE
Appartement à NICE
Appartement à NICE
Ce site est protégé par reCAPTCHA la Politique de confidentialité et les Conditions d’utilisation de Google s’appliquent.
Obtenir un prêt immobilier au meilleur taux ?

En poursuivant votre navigation sans modifier vos paramètres, vous acceptez l'utilisation de cookies susceptibles de réaliser des statistiques de visite. Cliquez ici pour plus d'informations