Bénéficiez des services de nos partenaires locaux soigneusement sélectionnés
pour vous accompagner dans votre parcours d'achat immobilier

Voir tous les partenaires locaux

Appartement 92m² à paris-16e

— Paris-16e 75016 —
876 000 €
93 m²
3 pièces
ascenseur

Nos partenaires locaux
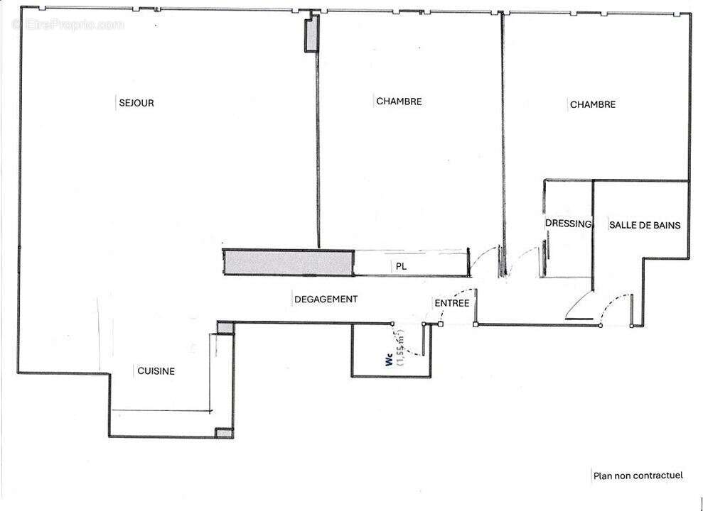
Avantages Balcons et Terrasses vous propose un superbe plateau de 92.76 m² situé au 3e étage d'un immeuble sécurisé avec ascenseur (Cabinet dentiste à transformer en appartement comme à son origine) . Il se compose de 5 pièces dont une salle d'attente un couloir central avec toilettes indépendants,
nombreux rangements et placards. Facilement transformable en appartement d'habitation de 3 pièces avec un grand séjour et cuisine américaine. Une cave complète ce bien. A SAISIR !

Référence: 27
Honoraires à la charge du vendeur.
Barème des honoraires
DPE
A
B
C
D
E
F
G
GES
A
B
C
D
E
F
G

Prêt immobilier

Vous souhaitez connaître votre capacité d’emprunt et trouver le meilleur crédit immobilier ?
Réaliser une simulation gratuite

Appartement à PARIS-16E
Appartement à PARIS-16E
Appartement à PARIS-16E
Appartement à PARIS-16E
Appartement à PARIS-16E
Appartement à PARIS-16E
Appartement à PARIS-16E
Ce site est protégé par reCAPTCHA la Politique de confidentialité et les Conditions d’utilisation de Google s’appliquent.
Obtenir un prêt immobilier au meilleur taux ?

En poursuivant votre navigation sans modifier vos paramètres, vous acceptez l'utilisation de cookies susceptibles de réaliser des statistiques de visite. Cliquez ici pour plus d'informations