Bénéficiez des services de nos partenaires locaux soigneusement sélectionnés
pour vous accompagner dans votre parcours d'achat immobilier

Appartement 62m² à poitiers

— Poitiers 86000 —
115 000 €
63 m²
3 pièces
parking

Nos partenaires locaux
Libre au plus tard le 14/07/2026 – Forom® Immobilier

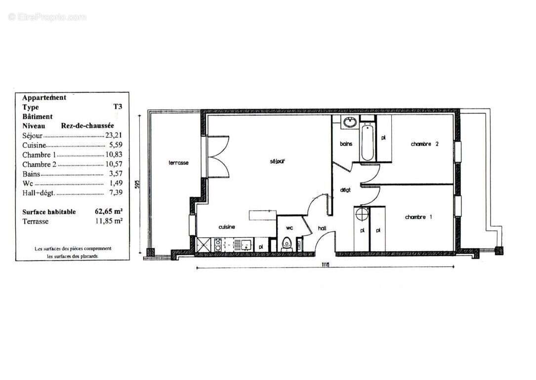
Forom Immobilier vous propose cet appartement T3 traversant d'une surface d'environ 62 m² au rez de chaussée situé dans une résidence sur la commune de Poitiers.

Le logement dispose d'un séjour, une cuisine ouverte équipée, deux chambres avec placards, une salle de bains, un WC séparé, une terrasse et deux places de parking.

• Charges de copropriété : 188€ / mois
• Taxe foncière 2025 : 1 146€ / an
• DPE : C
• Nombre de lots : 161
• Honoraires charge vendeur

Honoraires à la charge du vendeur. Dans une copropriété de 161 lots. Aucune procédure n'est en cours. Classe énergie C, Classe climat A Montant estimé des dépenses annuelles d'énergie pour un usage standard : entre 780.00 € et 1110.00 € sur les années 2021, 2022 et 2023 (abonnements compris). Les informations sur les risques auxquels ce bien est exposé sont disponibles sur le site Géorisques : georisques.gouv.fr.
Voir plus

Référence: 3840-FOROM
Bien en copropriété. Nombre de lots : 161.
Honoraires à la charge du vendeur.
Barème des honoraires
DPE
A
B
C
D
E
F
G
GES
A
B
C
D
E
F
G

Prêt immobilier

Vous souhaitez connaître votre capacité d’emprunt et trouver le meilleur crédit immobilier ?
Réaliser une simulation gratuite

Appartement à POITIERS
Appartement à POITIERS
Appartement à POITIERS
Appartement à POITIERS
Appartement à POITIERS
Appartement à POITIERS
Appartement à POITIERS
Ce site est protégé par reCAPTCHA la Politique de confidentialité et les Conditions d’utilisation de Google s’appliquent.
Obtenir un prêt immobilier au meilleur taux ?

En poursuivant votre navigation sans modifier vos paramètres, vous acceptez l'utilisation de cookies susceptibles de réaliser des statistiques de visite. Cliquez ici pour plus d'informations