Appartement 68m² à saint-fons

— Saint-Fons 69190 —
199 000 €
68 m²
3 pièces
parkingbalcon/terrasseascenseur

Exclusivité César et Brutus - Saint-Fons centre.
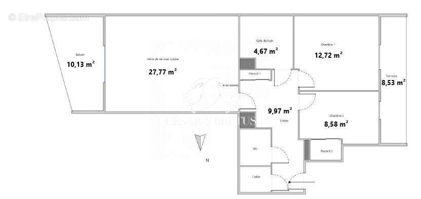
Je vous propose à la vente, cet appartement de 68 m² situé au rez-de-chaussée, sur cour dans une résidence de 2013 calme, arborée et sécurisée. Il se compose d'une entrée avec placard, d'une belle pièce de vie avec cuisine meublée et équipée et donnant accès à un balcon de 10 m², de deux chambres dont une avec dressing et donnant accès à une terrasse, d'une salle de bains ainsi qu'un WC séparé.

L'appartement est traversant et exposé Est/Ouest ce qui lui assure une belle luminosité !
Un garage box est disponible en supplément (+20000€).
L'appartement sera disponible au plus tard en Avril 2025.

Charges mensuelles : 121€ comprenant entretien des parties communes, eau froide, entretien chaudière et ascenseur
Copropriété de 96 lots, dont 45 d'habitation Pas de procédure en cours.
Taxe foncière : 1273 €
DPE : C / GES : C

REF : MG-7963

Plusieurs écoles (maternelle, élémentaire, primaire et lycée) se trouvent à moins de 10 minutes à pied. Niveau transports, il y a cinq lignes de bus ainsi que la gare Saint-Fons dans un rayon de 1 km.
Alors, vous êtes tenté de le visiter ? Contactez moi Margaux : [Coordonnées masquées] (819 206 160 R.S.A.C Lyon) [Coordonnées masquées]
Les informations sur les risques auxquels ce bien est exposé sont disponibles sur le site Géorisques : www.georisques.gouv.fr

Honoraires à la charge du vendeur. Dans une copropriété de 96 lots. Quote-part moyenne du budget prévisionnel 1 452 €/an. Aucune procédure n'est en cours. Classe énergie C, Classe climat C Montant moyen estimé des dépenses annuelles d'énergie pour un usage standard, établi à partir des prix de l'énergie de l'année 2021 : entre 650.00 et 920.00 €. Les informations sur les risques auxquels ce bien est exposé sont disponibles sur le site Géorisques : georisques.gouv.fr.
Voir plus

Référence: MG-7963-CESARETBRUTUS69
Bien en copropriété. Nombre de lots : 96. Charges de copropriété : 1452 €.
Honoraires à la charge du vendeur.
Barème des honoraires
DPE
A
B
C
D
E
F
G
GES
A
B
C
D
E
F
G

Prêt immobilier

Vous souhaitez connaître votre capacité d’emprunt et trouver le meilleur crédit immobilier ?
Réaliser une simulation gratuite

Appartement à SAINT-FONS
Appartement à SAINT-FONS
Appartement à SAINT-FONS
Appartement à SAINT-FONS
Appartement à SAINT-FONS
Appartement à SAINT-FONS
Appartement à SAINT-FONS
Appartement à SAINT-FONS
Ce site est protégé par reCAPTCHA la Politique de confidentialité et les Conditions d’utilisation de Google s’appliquent.
Obtenir un prêt immobilier au meilleur taux ?

En poursuivant votre navigation sans modifier vos paramètres, vous acceptez l'utilisation de cookies susceptibles de réaliser des statistiques de visite. Cliquez ici pour plus d'informations