Pas de terrain à Sainte-Magnance pour le moment. Découvrez dès maintenant les terrains dans le département Yonne.

5p de standing 108m2, calme, verdure, lumineux, terrasse, piscine, tennis!

— Jouy-En-Josas 78350 —
433 500 €
108 m²
5 pièces
balcon/terrassepiscine

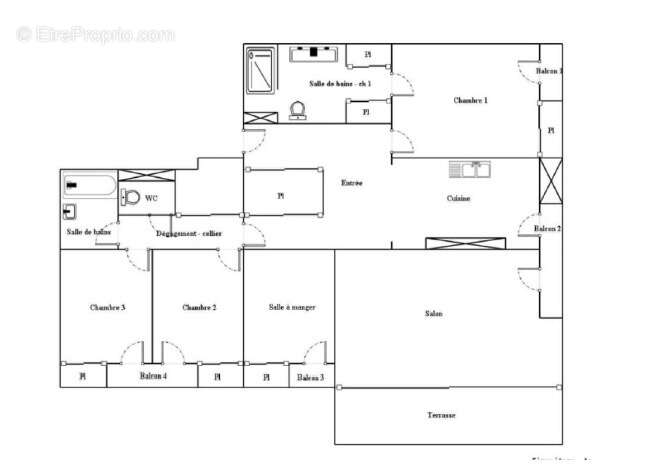
Rare, 5p de 108m2, lumineux, au calme et sans vis-à-vis ! Jouy-en-Josas, quartier du val d'Albian, à découvrir au sein de la résidence de standing du Parc de Diane, cadre idyllique entouré de verdure qui a tout d'un club de vacances ! Idéalement située entre le centre de Jouy et de Bièvres, également à quelques kilomètres de Versailles et à 15 minutes du centre de Vélizy. Sur place, nombreux BUS pour Versailles, Vélizy et son TRAM T6, pour la gare de Massy RER B et la gare de Vauboyen RER C au pied de la résidence. Bus aussi pour le lycée Franco-Allemand à Buc et pour les collèges de Vélizy. A 10 minutes, accès vers les axes autoroutiers A86, N118 ainsi que l'accès pour Nanterre. Un coin de paradis à l'écart du stress des centres villes, commerces, pharmacie, médecins, crèches, écoles, maternelle et primaire sur place au sein de la résidence ! Tout est prévu pour vous faciliter votre quotidien. Résidence sécurisée, caméras, gardien. Espaces verts, squares pour les petits, tennis, piscine, terrain de volley...Pool house avec différentes activités sportives et culturelles. Après la présentation des lieux, découvrons ce 5p de 108m2 situé au 5ème étage exposé EST. Il est composé d’une grande entrée avec placards, 1 cuisine ouverte équipée et aménagée, 1 suite parentale avec placards, dressing, salle de douches avec 1 WC. Actuellement un double séjour de 34m2 (la salle à manger peut devenir facilement la 4ème chambre, si nécessaire). 1 dégagement qui mène aux 2 chambres des enfants. Nombreux placards intégrées et aménagés, 1 débarras avec un espace buanderie. 1 WC, 1 SDB. 1 terrasse au calme sur les jardins de la résidence avec une vue dégagée. Le Chauffage est collectif au gaz compris dans les charges avec l’eau et toutes les prestations de la résidence. (Charges annuelles environ 4920€). Foncier 1899€. Si besoin, possibilité d’acheter en supplément du prix affiché, une place de parking à 17 000€ et/ou un box à 30 000€. Je vous invite à le visiter du mardi au samedi de 10h00 à 17h30. Agence Sophie Leconte Immobilier [Coordonnées masquées]. Honoraires à la charge des acquéreurs de 2% TTC inclus dans le prix affiché.
Voir plus

Référence: 468-25
Bien en copropriété. Nombre de lots : 1291. Charges de copropriété : 4920 €.
Honoraires d'agence de 2% à la charge de l'acquéreur
Barème des honoraires
DPE
A
B
C
D
E
F
G
GES
A
B
C
D
E
F
G

Prêt immobilier

Vous souhaitez connaître votre capacité d’emprunt et trouver le meilleur crédit immobilier ?
Réaliser une simulation gratuite

Appartement à JOUY-EN-JOSAS
Appartement à JOUY-EN-JOSAS
Appartement à JOUY-EN-JOSAS
Appartement à JOUY-EN-JOSAS
Appartement à JOUY-EN-JOSAS
Appartement à JOUY-EN-JOSAS
Appartement à JOUY-EN-JOSAS
Appartement à JOUY-EN-JOSAS
Appartement à JOUY-EN-JOSAS
Appartement à JOUY-EN-JOSAS
Appartement à JOUY-EN-JOSAS
Appartement à JOUY-EN-JOSAS
Appartement à JOUY-EN-JOSAS
Appartement à JOUY-EN-JOSAS
Appartement à JOUY-EN-JOSAS
Appartement à JOUY-EN-JOSAS
Appartement à JOUY-EN-JOSAS
Appartement à JOUY-EN-JOSAS
Appartement à JOUY-EN-JOSAS
Appartement à JOUY-EN-JOSAS
Appartement à JOUY-EN-JOSAS
Appartement à JOUY-EN-JOSAS
Ce site est protégé par reCAPTCHA la Politique de confidentialité et les Conditions d’utilisation de Google s’appliquent.
Obtenir un prêt immobilier au meilleur taux ?

En poursuivant votre navigation sans modifier vos paramètres, vous acceptez l'utilisation de cookies susceptibles de réaliser des statistiques de visite. Cliquez ici pour plus d'informations