Bénéficiez des services de nos partenaires locaux soigneusement sélectionnés
pour vous accompagner dans votre parcours d'achat immobilier

Appartement t2 avec balcon - coeur de bourg

— Saint-Ave 56890 —
167 000 €
42 m²
2 pièces
balcon/terrasseascenseur

Nos partenaires locaux
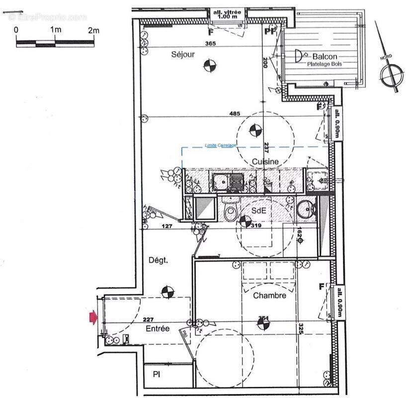
Saint-Avé – Appartement T2 lumineux avec balcon, au cœur du bourg
Nouveau prix : 167 000 € FAI
Surface : 42,41 m²

Situé au cœur du bourg de Saint-Avé, cet appartement T2 de 42,41 m² offre un cadre de vie à la fois pratique, serein et lumineux. Il conviendra aussi bien à un investisseur à la recherche d'un placement rentable, qu'à un premier acquéreur ou à une personne seule souhaitant vivre dans un environnement calme, tout en profitant de la proximité immédiate des commerces et services.

L'appartement se situe au deuxième étage d'une résidence récente avec ascenseur. Le séjour lumineux s'ouvre sur un balcon de 3,15 m² orienté Est, abrité du vent d'Ouest et bénéficiant d'une belle vue dégagée sur la verdure. La cuisine, à aménager selon vos envies, permet de concevoir un espace de vie à votre image. La chambre de 11,35 m², calme et confortable, offre un véritable bien-être au quotidien. La salle d'eau, équipée d'une douche à l'italienne, pourra être modernisée selon les goûts de chacun.

La résidence, récente et bien entretenue, dispose de volets électriques, d'un visiophone et d'un ascenseur. Les charges de copropriété restent faibles pour le secteur, et la performance énergétique (DPE : D) garantit une consommation maîtrisée.

Tous les commerces, services et le marché hebdomadaire sont accessibles à pied. La gare de Vannes et l'hôpital se trouvent à seulement quelques minutes, renforçant l'intérêt du secteur pour les actifs comme pour les investisseurs.

Un garage fermé en sous-sol est également proposé en supplément, une option rare et recherchée dans le centre de Saint-Avé.

Cet appartement combine confort, praticité et bon sens économique. Une belle opportunité d'achat pour habiter, investir ou vivre simplement au rythme du centre-bourg, à deux pas de Vannes. Honoraires à la charge du vendeur - Nombre de lots dans la copropriété: 44 - Montant moyen de la quote-part de charges courantes 740 €/an - Montant estimé des dépenses annuelles d'énergie pour un usage standard, établi à partir des prix de l'énergie de l'année 2023 : 540€ ~ 780€ - Les informations sur les risques auxquels ce bien est exposé sont disponibles sur le site Géorisques : www.georisques.gouv.fr - Rémy LAGADEC - Agent commercial - EI - RSAC BOURG-EN-BRESSE 511 856 221
Voir plus

Référence: 85677175
Bien en copropriété. Nombre de lots : 44. Charges de copropriété : 61 €.
Honoraires à la charge du vendeur.
DPE
A
B
C
D
E
F
G
GES
A
B
C
D
E
F
G

Prêt immobilier

Vous souhaitez connaître votre capacité d’emprunt et trouver le meilleur crédit immobilier ?
Réaliser une simulation gratuite

Appartement à SAINT-AVE
Appartement à SAINT-AVE
Appartement à SAINT-AVE
Appartement à SAINT-AVE
Appartement à SAINT-AVE
Appartement à SAINT-AVE
Appartement à SAINT-AVE
Appartement à SAINT-AVE
Ce site est protégé par reCAPTCHA la Politique de confidentialité et les Conditions d’utilisation de Google s’appliquent.
Obtenir un prêt immobilier au meilleur taux ?

En poursuivant votre navigation sans modifier vos paramètres, vous acceptez l'utilisation de cookies susceptibles de réaliser des statistiques de visite. Cliquez ici pour plus d'informations