Bénéficiez des services de nos partenaires locaux soigneusement sélectionnés
pour vous accompagner dans votre parcours d'achat immobilier

Maison de 101.52 m² plus une véranda de 14.50m² sur jardin clos de 552 m², 4 chambres. plages et commerces à pied

— Dinard 35800 —
447 200 €
102 m² / 552 m²
5 pièces
parking

Nos partenaires locaux
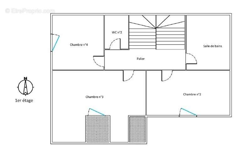
Maison de 101.52 m² plus une véranda de 14.50m² sur jardin clos de 552 m², 4 chambres dont une suite en rez de chaussée.
La véranda vous accueille et vous mène au séjour double de 44m2 avec sa cuisine récente ouverte et équipée .chambre en suite avec sa salle d'eau. WC séparé et buanderie.
1er étage : trois pièces à usage de chambres ou bureau. Salle de bain et douche, WC séparé.
Joli jardin clos exposé plein sud. Portail électrique à l'entrée.
Les commerces se font à pied dans le proche environnement.
La plage du Prieuré, les tennis et le centre équestre à proximité.
Dinard est une jolie station balnéaire de faible taille où tout se fait à vélo ou à pied.
Laissez vous séduire par son environnement privilégié, ses plages et sa douceur de vivre.
Dossier sur demande et visité à distance possible. Les honoraires d'agence sont à la charge de l'acquéreur, soit 4,00% TTC du prix hors honoraires.
Les informations sur les risques auxquels ce bien est exposé sont disponibles sur le site Géorisques : www. georisques. gouv. fr.

Contactez Marie-Claude HEMERY Entrepreneur Individuel, Agent commercial OptimHome (RSAC N°530 037 860 Greffe de SAINT MALO) [Coordonnées masquées] (réf. 595381 )
Voir plus

Référence: 830039899494
DPE
A
B
C
D
E
F
G
GES
A
B
C
D
E
F
G

Prêt immobilier

Vous souhaitez connaître votre capacité d’emprunt et trouver le meilleur crédit immobilier ?
Réaliser une simulation gratuite

Maison à DINARD
Maison à DINARD
Maison à DINARD
Maison à DINARD
Maison à DINARD
Maison à DINARD
Maison à DINARD
Maison à DINARD
Maison à DINARD
Maison à DINARD
Maison à DINARD
Maison à DINARD
Maison à DINARD
Ce site est protégé par reCAPTCHA la Politique de confidentialité et les Conditions d’utilisation de Google s’appliquent.
Obtenir un prêt immobilier au meilleur taux ?

En poursuivant votre navigation sans modifier vos paramètres, vous acceptez l'utilisation de cookies susceptibles de réaliser des statistiques de visite. Cliquez ici pour plus d'informations