Bénéficiez des services de nos partenaires locaux soigneusement sélectionnés
pour vous accompagner dans votre parcours d'achat immobilier

maison neuve 4 chambres – proche de safran – livraison début 2026 clés en main – vue pyrénées

— Bordes 64510 —
320 000 €
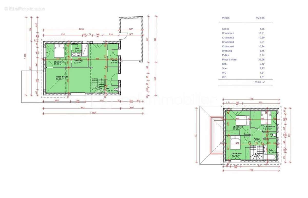
105 m² / 423 m²
5 pièces

Nos partenaires locaux
Découvrez cette maison individuelle neuve de 105 m², actuellement en cours de construction, située dans un environnement calme et résidentiel à Bordes, à deux pas de l'entreprise Safran.

Édifiée sur un terrain de plus de 400 m², en bout d'impasse, cette maison moderne et lumineuse répondra aux normes énergétiques RE2020, vous garantissant confort et économies d'énergie au quotidien.

Composition :

Rez-de-chaussée :
Spacieuse pièce de vie exposée plein sud avec grandes baies vitrées
Cuisine ouverte sur le séjour
Suite parentale avec chambre, dressing et salle d'eau privative
Garage attenant

Étage :
Trois chambres confortables
Salle de bains familiale avec baignoire.

Les atouts :
Construction neuve et contemporaine
Exposition idéale Sud
Quartier calme et recherché
Proximité immédiate de SAFRAN et des commodités
Vue Pyrénées

Livraison prévue : début 2026

Idéale pour une famille souhaitant s'installer dans un cadre paisible tout en restant proche de Pau et des bassins d'emploi environnants.

Contactez-moi dès maintenant pour obtenir le plan, le descriptif complet du projet et réserver votre future maison !

Cette annonce référence 308260 vous est présentée par votre agent commercial BSK Immobilier LAURENT SCHAFER (EI) immatriculé au RSAC de PAU (64000) sous le numéro 89365200800028.

Prix du bien : 320 000,00 €
Les honoraires d'agence sont à la charge du vendeur.

Non soumis au DPE.

Les informations sur les risques auxquels ce bien est exposé sont disponibles sur le site Géorisques : www.georisques.gouv.fr
Voir plus

Référence: 308260
Honoraires à la charge du vendeur.

Prêt immobilier

Vous souhaitez connaître votre capacité d’emprunt et trouver le meilleur crédit immobilier ?
Réaliser une simulation gratuite

Maison à BORDES
Maison à BORDES
Maison à BORDES
Maison à BORDES
Maison à BORDES
Maison à BORDES
Maison à BORDES
Maison à BORDES
Ce site est protégé par reCAPTCHA la Politique de confidentialité et les Conditions d’utilisation de Google s’appliquent.
Obtenir un prêt immobilier au meilleur taux ?

En poursuivant votre navigation sans modifier vos paramètres, vous acceptez l'utilisation de cookies susceptibles de réaliser des statistiques de visite. Cliquez ici pour plus d'informations