Bénéficiez des services de nos partenaires locaux soigneusement sélectionnés
pour vous accompagner dans votre parcours d'achat immobilier

Maison familiale avec piscine et entièrement connectée !!

— Pont-L'eveque 14130 —
444 000 €
150 m² / 1 000 m²
5 pièces
parkingbalcon/terrassepiscine

Nos partenaires locaux
Cette propriété de 150 m², située à seulement 2 minutes en voiture de Pont-l'Évêque, offre un cadre de vie agréable et confortable, idéale pour une résidence principale ou secondaire. Vous apprécierez la vue imprenable sur le Lac de Pont-l'Évêque et sa proximité avec Deauville.

Pensée pour offrir un confort optimal au quotidien, cette propriété se distingue par ses équipements de pointe. Grâce aux panneaux photovoltaïques, la maîtrise de votre consommation énergétique devient une réalité. Dans les chambres, la climatisation réversible assure une température idéale en toute saison, tandis que les radiateurs connectés vous permettent de piloter la chaleur à distance, selon votre rythme de vie.

L'hiver, l'insert à bois crée une atmosphère chaleureuse et conviviale. L'ensemble des menuiseries en double vitrage et les volets roulants électriques renforcent l'isolation et le confort thermique, tout en garantissant une parfaite tranquillité.

Pour votre sécurité, un portail motorisé, un système d'alarme et une vidéosurveillance ont été installés. L'aspiration centralisée simplifie l'entretien quotidien, et une borne de recharge pour véhicule électrique complète cet ensemble de prestations rares sur le marché.

Description de la maison (135 m² au sol) avec dépendance de 25 m² :

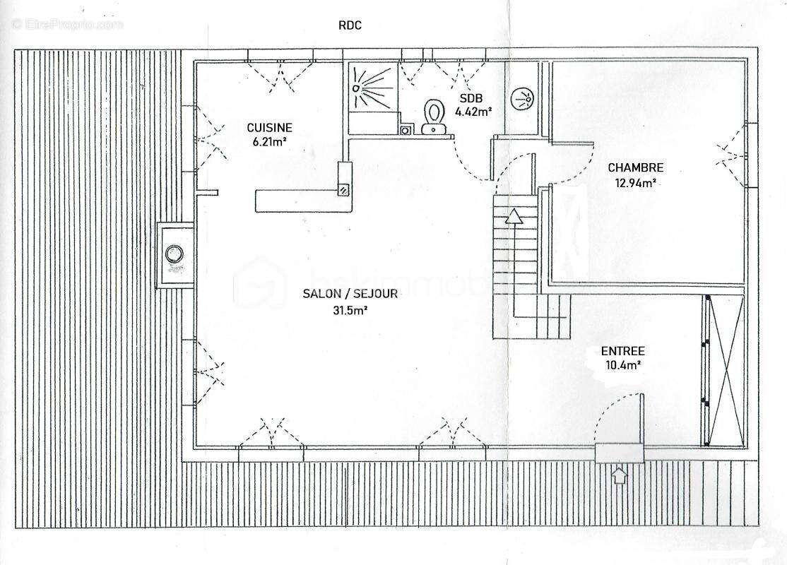
Rez-de-chaussée : Entrée avec placards, pièce de vie de 28 m² avec insert, cuisine aménagée et équipée, chambre avec dressing sur mesure, salle d'eau.
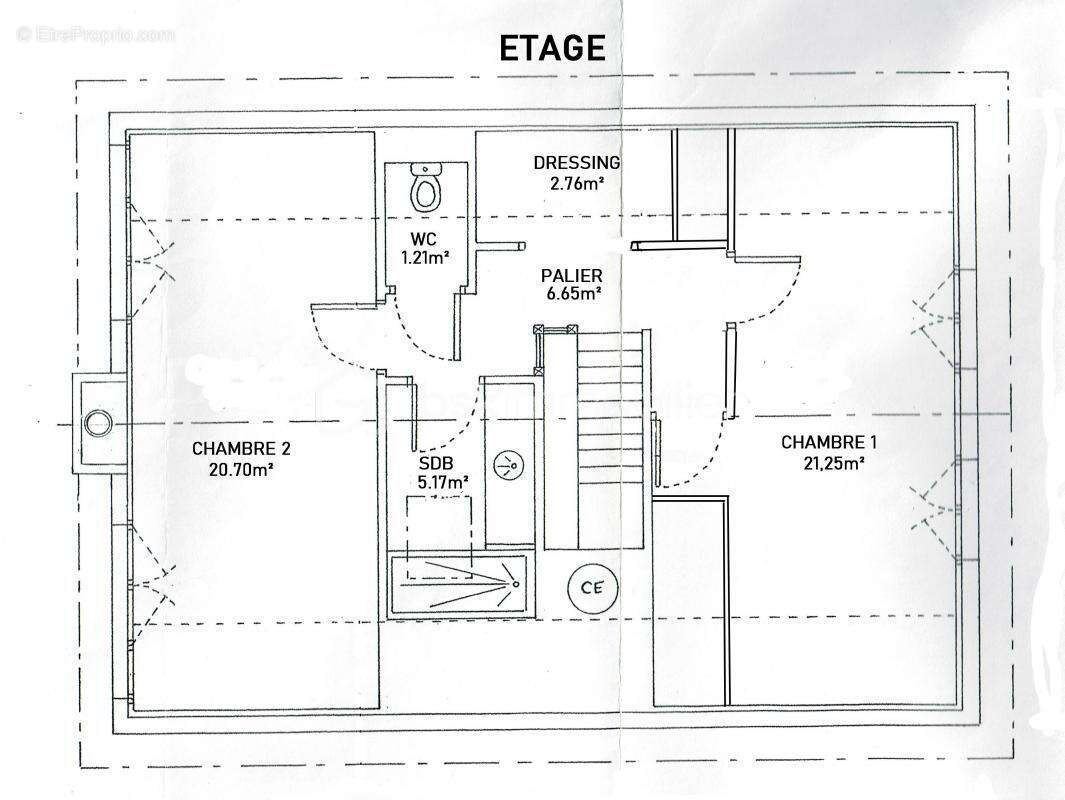
Étage : Palier avec rangements donnant sur deux grandes chambres (possibilité de créer une troisième), salle de bain et WC séparés.
Rez-de-jardin : Cave, bureau, lingerie et atelier.

La dépendance de 25 m², isolée et chauffée, dispose de l'eau et de l'électricité. Elle offre un potentiel exceptionnel : un studio indépendant pour accueillir vos invités ou une location saisonnière, ou pourquoi pas un bureau ou un atelier selon vos envies.

En extérieur, un jardin joliment arboré dans lequel de nombreux aménagements ont été effectués, vous y trouverez donc : car-port, terrasse en bois de 45 m², piscine chauffée de 12 m², pergola moderne, cuisine d'été, poulailler, places de stationnement, borne de recharge électrique et éclairages extérieurs.

Possibilité d'acquérir un terrain supplémentaire pour laisser libre cours à vos projets :

Une parcelle d'environ 11 000 m² est également disponible, offrant la possibilité d'exploiter l'espace selon vos besoins. Vous pourrez y construire un bâtiment à usage de stockage pour une activité artisanale ou agricole. Ce terrain pourrait également convenir pour un projet de production personnelle, comme un potager, des serres ou même un espace pour l'élevage.

Cette annonce référence 278765 vous est présentée par votre agent commercial BSK Immobilier JENNIFER RIFFAUD (EI) immatriculé au RSAC de CAEN (14000) sous le numéro 9[Coordonnées masquées]019.

Prix du bien : 444 000,00 €
Les honoraires d'agence sont à la charge du vendeur.

A propos des performances énergétiques :
Date de réalisation du diagnostic énergétique : 27/01/2024
Score DPE : 192 kWhEP/m²/an
Score GES : 6 kgepCO2/m²/an
Montant estimé des dépenses annuelles d'énergie pour un usage standard : entre 1100.00 € et 1570.00 € par an. Prix moyens des énergies indexés sur l'année 2021 (abonnements compris).

Les informations sur les risques auxquels ce bien est exposé sont disponibles sur le site Géorisques : www.georisques.gouv.fr
Voir plus

Référence: 278765_3
Honoraires à la charge du vendeur.
DPE
A
B
C
D
E
F
G
GES
A
B
C
D
E
F
G

Prêt immobilier

Vous souhaitez connaître votre capacité d’emprunt et trouver le meilleur crédit immobilier ?
Réaliser une simulation gratuite

Maison à PONT-L'EVEQUE
Maison à PONT-L'EVEQUE
Maison à PONT-L'EVEQUE
Maison à PONT-L'EVEQUE
Maison à PONT-L'EVEQUE
Maison à PONT-L'EVEQUE
Maison à PONT-L'EVEQUE
Maison à PONT-L'EVEQUE
Maison à PONT-L'EVEQUE
Maison à PONT-L'EVEQUE
Maison à PONT-L'EVEQUE
Maison à PONT-L'EVEQUE
Maison à PONT-L'EVEQUE
Maison à PONT-L'EVEQUE
Maison à PONT-L'EVEQUE
Maison à PONT-L'EVEQUE
Maison à PONT-L'EVEQUE
Maison à PONT-L'EVEQUE
Maison à PONT-L'EVEQUE
Maison à PONT-L'EVEQUE
Ce site est protégé par reCAPTCHA la Politique de confidentialité et les Conditions d’utilisation de Google s’appliquent.
Obtenir un prêt immobilier au meilleur taux ?

En poursuivant votre navigation sans modifier vos paramètres, vous acceptez l'utilisation de cookies susceptibles de réaliser des statistiques de visite. Cliquez ici pour plus d'informations