Bénéficiez des services de nos partenaires locaux soigneusement sélectionnés
pour vous accompagner dans votre parcours d'achat immobilier

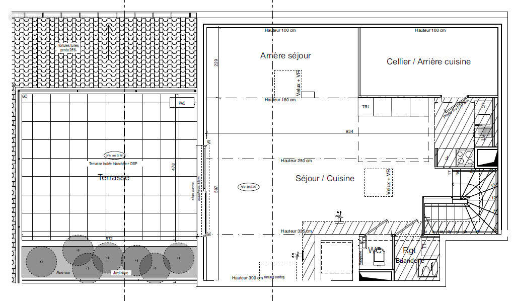
T3 en duplex domaine eden du cap

— Toulon 83000 —
584 000 €
77 m²
3 pièces
parkingbalcon/terrasse

Nos partenaires locaux
Un appartement T3 en duplex situé au premier étage du bâtiment C d'environ 77m2 comprenant ; un salon/séjour, 2 chambres, une salle de bains, dégagement, WC séparés, cellier, une terrasse.
Deux box en sous-sol ainsi qu'une cave complètent ce bien.
Livré en 2027.

Bien en copropriété.
Barème des honoraires

Prêt immobilier

Vous souhaitez connaître votre capacité d’emprunt et trouver le meilleur crédit immobilier ?
Réaliser une simulation gratuite

Appartement à TOULON
Appartement à TOULON
Appartement à TOULON
Appartement à TOULON
Appartement à TOULON
Appartement à TOULON
Ce site est protégé par reCAPTCHA la Politique de confidentialité et les Conditions d’utilisation de Google s’appliquent.
Obtenir un prêt immobilier au meilleur taux ?

En poursuivant votre navigation sans modifier vos paramètres, vous acceptez l'utilisation de cookies susceptibles de réaliser des statistiques de visite. Cliquez ici pour plus d'informations