Bénéficiez des services de nos partenaires locaux soigneusement sélectionnés
pour vous accompagner dans votre parcours d'achat immobilier

Maison 108m² à bordeaux

— Bordeaux 33100 —
299 000 €
108 m² / 100 m²
6 pièces
parkingjardin

Nos partenaires locaux
Au cœur de Bordeaux Bastide, à côté de la place Calixte Camelle, découvrez cette ravissante échoppe de 108 m² avec son jardin de ville.
Vous serez séduits par la qualité de conservation de certaines prestations ainsi que par la solidité de l’ensemble : toiture en bon état (remaniée en 2023).
Des travaux de rénovation sont à prévoir pour révéler tout le potentiel de cette jolie maison.
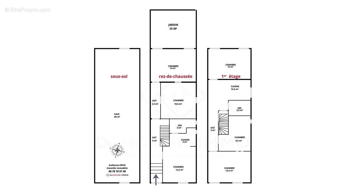
Actuellement composée de 6 pièces principales, elle comprend :
• Au rez-de-chaussée : un studio indépendant avec kitchenette, salle d’eau et WC. Côté jardin, un petit appartement T2 avec deux chambres.
• À l’étage : accessible par un escalier en pierre, une nouvelle cuisine équipée, trois chambres et une salle d’eau avec WC.
• En sous-sol : une vaste cave de 60 m², aujourd’hui non habitable, mais offrant de belles perspectives d’aménagement.
Il est possible d'ouvrir les pièces et de moduler les volumes à votre guise.
À proximité immédiate des écoles, commerces et praticiens, son emplacement vous permettra de profiter pleinement de la vie bastidienne.
N'hésitez pas à me contacter avant qu'il ne soit trop tard !

Visite virtuelle disponible en suivant ce lien : https://view.ricoh360.com/a54adf49-1211-48c8-b754-0adfe209da63 Ce bien vous est présenté par Guillaume Priou, votre conseiller indépendant Dr House Immo.
Voir plus

Référence: 106869DHI2736
Honoraires d'agence de 4.55% à la charge de l'acquéreur
Barème des honoraires
DPE
A
B
C
D
E
F
G
GES
A
B
C
D
E
F
G

Prêt immobilier

Vous souhaitez connaître votre capacité d’emprunt et trouver le meilleur crédit immobilier ?
Réaliser une simulation gratuite

Maison à BORDEAUX
Maison à BORDEAUX
Maison à BORDEAUX
Maison à BORDEAUX
Maison à BORDEAUX
Maison à BORDEAUX
Maison à BORDEAUX
Maison à BORDEAUX
Maison à BORDEAUX
Maison à BORDEAUX
Maison à BORDEAUX
Maison à BORDEAUX
Maison à BORDEAUX
Maison à BORDEAUX
Maison à BORDEAUX
Maison à BORDEAUX
Maison à BORDEAUX
Maison à BORDEAUX
Maison à BORDEAUX
Maison à BORDEAUX
Maison à BORDEAUX
Maison à BORDEAUX
Maison à BORDEAUX
Maison à BORDEAUX
Maison à BORDEAUX
Maison à BORDEAUX
Maison à BORDEAUX
Ce site est protégé par reCAPTCHA la Politique de confidentialité et les Conditions d’utilisation de Google s’appliquent.
Obtenir un prêt immobilier au meilleur taux ?

En poursuivant votre navigation sans modifier vos paramètres, vous acceptez l'utilisation de cookies susceptibles de réaliser des statistiques de visite. Cliquez ici pour plus d'informations