Paris 4ème - rue de sevigne - beau duplex rénové, calme et lumineux

— Paris-4e 75004 —
1 880 000 €
144 m²
5 pièces
balcon/terrasse

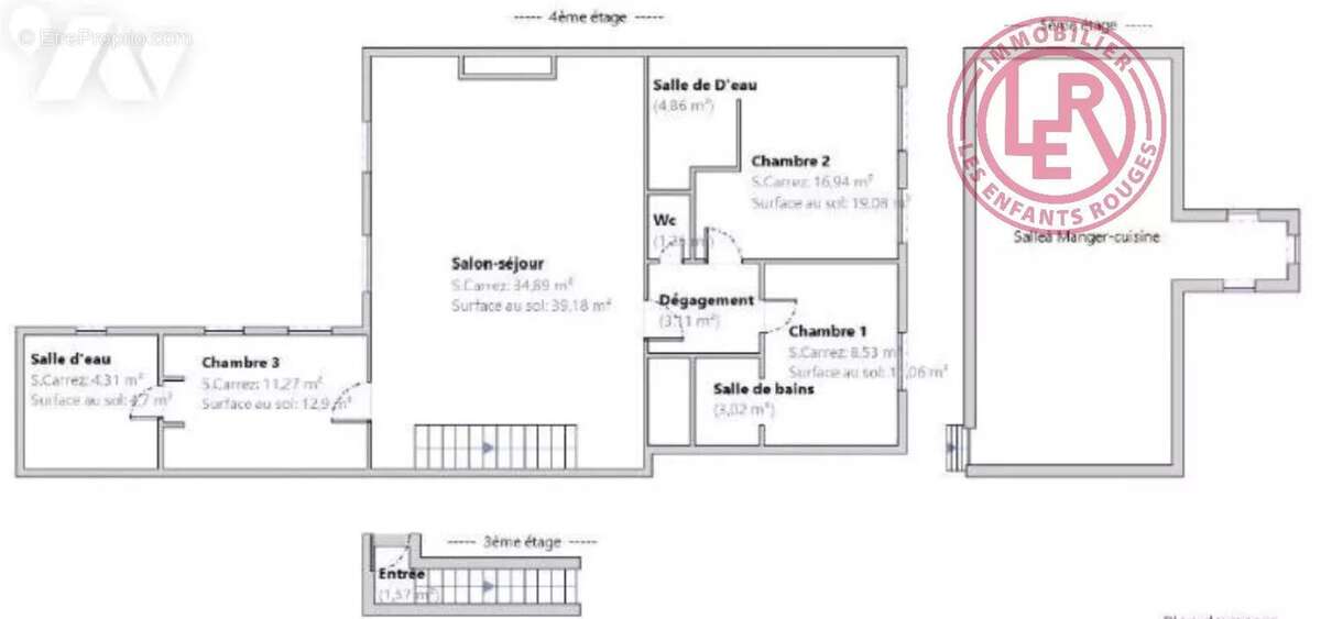
PARIS IV A quelques minutes de la Place de la Vosges, au sein d'un immeuble du 17ème siècle, très bien entretenu, au 3ème et dernier étage, duplex de 5 pièces, traversant (Est/Ouest) de 122 m2 Loi Carrez et 144 m2 au sol. Avec ces volumes impressionnants, plus de 5 mètres au faîtage, il se compose au 3ème étage d’une pièce de réception baignée de lumière, avec cheminée fonctionnelle et poutres apparentes, 3 chambres avec chacune leur pièce d’eau, donnant sur la rue de Sévigné, et à l’étage par escalier privatif au garde corps composé de pièces sculptées comme des oeuvres d’arts en fer forgé, une grande mezzanine avec cuisine dinatoire et une confortable salle à manger, avec accès à un balconnet dominant l’église Saint-Paul et le Musée du Carnavalet.
Sectorisation Charlemagne, idéal pour une famille.
Prestations : Appartement rénové, aux multiples aménagements, prêt à vivre, confortable, calme, 2 toilettes, balconnet et cave.

Les informations sur les risques auxquels ce bien est exposé sont disponibles sur le site Géorisques : www.georisques.gouv.fr.

Agent commercial immatriculée au Registre spécial des agents commerciaux du greffe du tribunal de commerce de PARIS, sous le numéro 483 083 077.
Voir plus

Référence: 86354974
DPE
A
B
C
D
E
F
G
GES
A
B
C
D
E
F
G

Prêt immobilier

Vous souhaitez connaître votre capacité d’emprunt et trouver le meilleur crédit immobilier ?
Réaliser une simulation gratuite

Appartement à PARIS-4E
Appartement à PARIS-4E
Appartement à PARIS-4E
Appartement à PARIS-4E
Appartement à PARIS-4E
Appartement à PARIS-4E
Appartement à PARIS-4E
Appartement à PARIS-4E
Appartement à PARIS-4E
Appartement à PARIS-4E
Ce site est protégé par reCAPTCHA la Politique de confidentialité et les Conditions d’utilisation de Google s’appliquent.
Obtenir un prêt immobilier au meilleur taux ?

En poursuivant votre navigation sans modifier vos paramètres, vous acceptez l'utilisation de cookies susceptibles de réaliser des statistiques de visite. Cliquez ici pour plus d'informations