Bénéficiez des services de nos partenaires locaux soigneusement sélectionnés
pour vous accompagner dans votre parcours d'achat immobilier

A vendre - paris 17e ternes - appartement 3 pièces rénové avec vue dégagée de 67,59 m²

— Paris-17e 75017 —
757 500 €
68 m²
3 pièces
ascenseur

Nos partenaires locaux
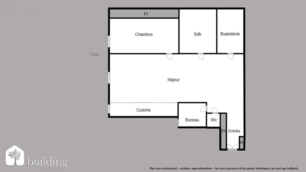
Situé dans le quartier prisé des Ternes, au 5e étage avec ascenseur d'un élégant immeuble Art déco de très bon standing, BUILDING PARTNERS vous propose à la vente cet appartement de 67,59 m² entièrement rénové avec des matériaux de qualité. Ce bien lumineux, exposé sud-est et offrant une vue dégagée, se compose d'une entrée, d'un séjour confortable avec cuisine américaine aménagée et équipée, d'une chambre spacieuse, d'un bureau (ou chambre d'appoint), d'une salle de bains avec douche, d'une buanderie pratique ainsi que de WC séparés. L'ensemble a été rénové avec soin et présente des finitions haut de gamme. L'appartement bénéficie d'un excellent agencement, d'une belle luminosité naturelle et d'un charme discret propre aux immeubles Art déco. Une cave en sous-sol complète ce bien. Idéalement situé à proximité immédiate des transports, des commerces, des écoles et du marché Poncelet, ce bien rare à la vente séduira les amateurs d'élégance et de confort en coeur de ville. N'hésitez pas à nous contacter pour plus d'informations ou organiser une visite. Depuis 1993, BUILDING PARTNERS accompagne les propriétaires dans la vente de biens immobiliers de standing sur l'ouest parisien. Notre force ? Une organisation unique avec deux rôles experts : >Les Brokers, spécialisés dans la prospection et la valorisation de votre bien. >Les Sellers, experts en négociation et en mise en relation avec notre portefeuille d'acheteurs qualifiés. Avec 5 agences implantées au coeur des quartiers les plus recherchés (Paris 16e, Paris 17e, Neuilly, Levallois, Courbevoie), nous vous offrons une visibilité maximale, un accompagnement personnalisé et un engagement total jusqu'à la signature. Confiez-nous votre bien pour une vente rapide, au meilleur prix. Estimation offerte, confidentielle et sans engagement. Copropriété de 86 lots - dont 79 lots habitation. (Pas de procédure en cours). Charges annuelles : 4000 euros.
Voir plus

Référence: 11744
Bien en copropriété. Nombre de lots : 86. Charges de copropriété : 4000 €.
Honoraires à la charge du vendeur.
Barème des honoraires
DPE
A
B
C
D
E
F
G
GES
A
B
C
D
E
F
G

Prêt immobilier

Vous souhaitez connaître votre capacité d’emprunt et trouver le meilleur crédit immobilier ?
Réaliser une simulation gratuite

Appartement à PARIS-17E
Appartement à PARIS-17E
Appartement à PARIS-17E
Appartement à PARIS-17E
Appartement à PARIS-17E
Appartement à PARIS-17E
Appartement à PARIS-17E
Appartement à PARIS-17E
Appartement à PARIS-17E
Appartement à PARIS-17E
Appartement à PARIS-17E
Appartement à PARIS-17E
Appartement à PARIS-17E
Appartement à PARIS-17E
Appartement à PARIS-17E
Appartement à PARIS-17E
Appartement à PARIS-17E
Ce site est protégé par reCAPTCHA la Politique de confidentialité et les Conditions d’utilisation de Google s’appliquent.
Obtenir un prêt immobilier au meilleur taux ?

En poursuivant votre navigation sans modifier vos paramètres, vous acceptez l'utilisation de cookies susceptibles de réaliser des statistiques de visite. Cliquez ici pour plus d'informations