Maison 167m² à marmoutier

— Marmoutier 67440 —
195 000 €
167 m² / 99 m²
5 pièces
balcon/terrassejardin

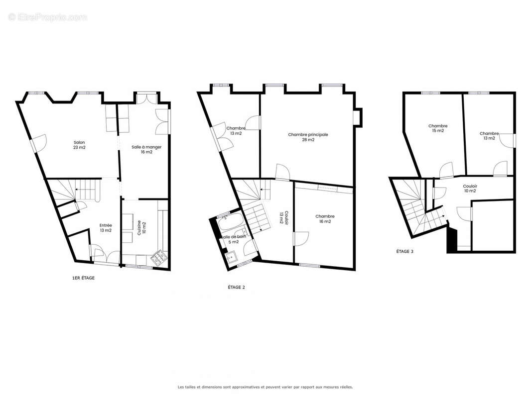
Iad France - Veronique Noureddine vous propose : Maison coup de cOEur du XVIIIe siècle pour les amoureux des vieilles pierres ! Une vaste entrée mène à un salon lumineux, une salle à manger conviviale et une cuisine indépendante avec verrière. À l'étage, deux belles chambres dont une très vaste avec pièce attenante (buanderie, dressing ou bureau) et une salle de bain avec WC. Le dernier niveau offre deux pièces à aménager et une petite pièce de rangement. Cave avec belle hauteur, terrasse agréable. Toiture isolée, chaudière neuve, électricité refaite. Pas de jardin ni garage. Remplacement des fenêtres à prévoir. Commerces, écoles et transports à pied. Demandez une visite !

Honoraires d'agence à la charge du vendeur.
Information d'affichage énergétique sur ce bien : classe ENERGIE D indice 188 et classe CLIMAT D indice 41. Les informations sur les risques auxquels ce bien est exposé, y compris l'obligation légale de débroussaillement, sont disponibles sur le site Géorisques : http://www.georisques.gouv.fr.
La présente annonce immobilière a été rédigée sous la responsabilité éditoriale de Mme Veronique Noureddine mandataire indépendant en immobilier (sans détention de fonds), agent commercial de la SAS I@D France immatriculé au RSAC de Saverne sous le numéro 883899007, titulaire de la carte de démarchage immobilier pour le compte de la société I@D France SAS.
Informations LOI ALUR :
Honoraires charge vendeur. (gedeon_6727_31764926)
Voir plus

Référence: 1822823
Honoraires à la charge du vendeur.
DPE
A
B
C
D
E
F
G
GES
A
B
C
D
E
F
G

Prêt immobilier

Vous souhaitez connaître votre capacité d’emprunt et trouver le meilleur crédit immobilier ?
Réaliser une simulation gratuite

Photo 1 - Maison à MARMOUTIER
Photo 1
Photo 2 - Maison à MARMOUTIER
Photo 2
Photo 3 - Maison à MARMOUTIER
Photo 3
Photo 4 - Maison à MARMOUTIER
Photo 4
Photo 5 - Maison à MARMOUTIER
Photo 5
Photo 6 - Maison à MARMOUTIER
Photo 6
Photo 7 - Maison à MARMOUTIER
Photo 7
Photo 8 - Maison à MARMOUTIER
Photo 8
Photo 9 - Maison à MARMOUTIER
Photo 9
Ce site est protégé par reCAPTCHA la Politique de confidentialité et les Conditions d’utilisation de Google s’appliquent.
Obtenir un prêt immobilier au meilleur taux ?

En poursuivant votre navigation sans modifier vos paramètres, vous acceptez l'utilisation de cookies susceptibles de réaliser des statistiques de visite. Cliquez ici pour plus d'informations