Appartement 73m² à saint-julien-en-genevois

— Saint-Julien-En-Genevois 74160 —
516 000 €
73 m²
3 pièces
parkingbalcon/terrasseascenseur

Iad France - Pierre Magerand ([Coordonnées masquées]) vous propose : Appartement T3 avec balcon à Saint-Julien-en-Genevois.

Au cOEur de la résidence contemporaine LUMEN, idéalement située avenue de Genève à Saint-Julien-en-Genevois, découvrez une adresse rare à la frontière suisse. Moderne et durable, la résidence s'inscrit dans une démarche environnementale innovante (façades bois biosourcées, espaces verts paysagers) et propose des prestations de qualité. Disponible 2027.

Un appartement raffiné :
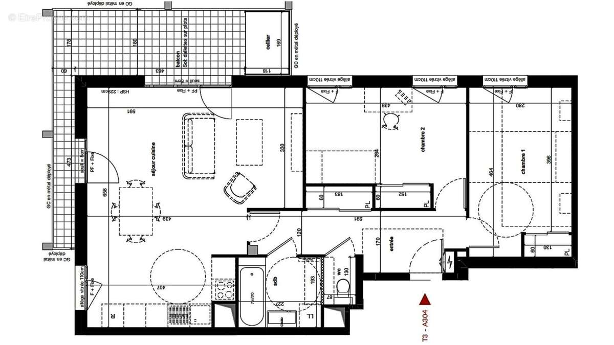
Situé au 3 ème étage, cet appartement T3 de 73 m² environ habitables s'ouvre sur un balcon de 12 m² environ.

- Séjour / cuisine de 33 m² environ.
- Deux belles chambres.
- Salle de bains moderne et wc séparés.
- Annexes incluses : 1 parking intérieur et cellier privatif.

De belles prestations :
- Grandes baies vitrées équipées de brise-soleil orientables bois.
- Chauffage collectif par chaufferie biomasse, isolation performante.
- Résidence sécurisée avec stationnements en sous-sol, local vélos et caméras dans les parties communes

L'art de vivre à Saint-Julien-en-Genevois :
- À seulement 230 m de la douane suisse de Perly.
- Futur tramway en pied d'immeuble (mise en service prévue en 2028).
- Nombreux établissements scolaires, équipements culturels et sportifs à proximité.
- Accès rapide à Genève (24 min en voiture) et Annecy (33 min).

N'hésitez pas à me contacter pour plus d'informations ou pour un accompagnement sur mesure.

Honoraires d'agence à la charge du vendeur. Bien non soumis au DPE. Les informations sur les risques auxquels ce bien est exposé sont disponibles sur le site Géorisques : www.georisques.gouv.fr. La présente annonce immobilière a été rédigée sous la responsabilité éditoriale de M. Pierre Magerand EI (ID 86098), mandataire indépendant en immobilier (sans détention de fonds), agent commercial de la SAS I@D France immatriculé au RSAC de Cusset sous le numéro 938729175, titulaire de la carte de démarchage immobilier pour le compte de la société I@D France SAS.
Retrouvez tous nos biens sur notre site internet. www.iadfrance.fr.
Informations LOI ALUR :
Honoraires charge vendeur. (gedeon_6727_31962651)
Voir plus

Référence: 1856828-8
Honoraires à la charge du vendeur.

Prêt immobilier

Vous souhaitez connaître votre capacité d’emprunt et trouver le meilleur crédit immobilier ?
Réaliser une simulation gratuite

Photo 1 - Appartement à SAINT-JULIEN-EN-GENEVOIS
Photo 1
Photo 2 - Appartement à SAINT-JULIEN-EN-GENEVOIS
Photo 2
Photo 3 - Appartement à SAINT-JULIEN-EN-GENEVOIS
Photo 3
Photo 4 - Appartement à SAINT-JULIEN-EN-GENEVOIS
Photo 4
Photo 5 - Appartement à SAINT-JULIEN-EN-GENEVOIS
Photo 5
Photo 6 - Appartement à SAINT-JULIEN-EN-GENEVOIS
Photo 6
Ce site est protégé par reCAPTCHA la Politique de confidentialité et les Conditions d’utilisation de Google s’appliquent.
Obtenir un prêt immobilier au meilleur taux ?

En poursuivant votre navigation sans modifier vos paramètres, vous acceptez l'utilisation de cookies susceptibles de réaliser des statistiques de visite. Cliquez ici pour plus d'informations