Bénéficiez des services de nos partenaires locaux soigneusement sélectionnés
pour vous accompagner dans votre parcours d'achat immobilier

Appartement 88m² à la ciotat

— La Ciotat 13600 —
700 000 €
88 m²
4 pièces
parkingbalcon/terrasseascenseur

Nos partenaires locaux
Iad France - Sarah Rozière ([Coordonnées masquées]) vous propose : Appartement T4 avec terrasse à La Ciotat.

Située avenue de la Marine à La Ciotat, la résidence La Carmele allie charme provençal et architecture contemporaine. Entre Méditerranée et collines du Parc national des Calanques, cette adresse offre un cadre de vie rare, calme et ensoleillé, à proximité du centre-ville et des plages. Disponible 2027.

Un appartement raffiné :
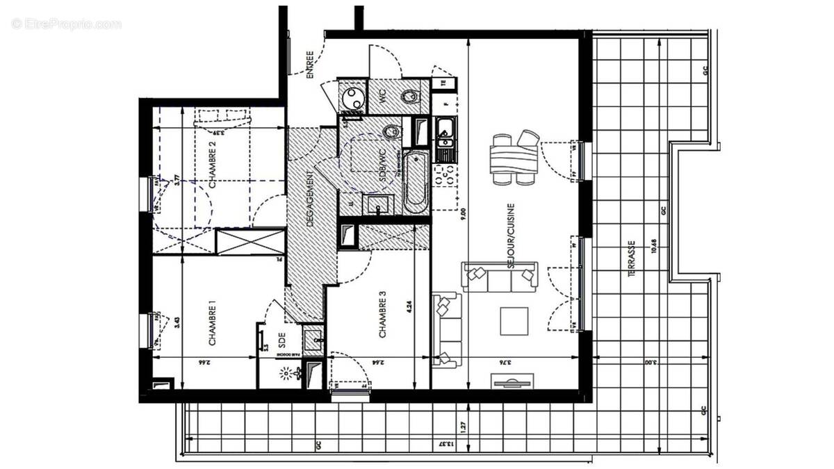
Situé au 3 ème étage, cet appartement T4 de 88 m² environ habitables se prolonge par une terrasse de 42 m² environ.

- Séjour / cuisine de 34 m² environ.
- Trois chambres confortables.
- Salle de bains moderne et WC séparé.
- Annexe incluse : deux parkings.

De belles prestations :
- Chauffage des séjours par pompe à chaleur monosplit.
- Chauffage électrique par panneaux rayonnants dans les chambres.
- Volets roulants motorisés et menuiseries PVC gris clair.
- Résidence sécurisée avec ascenseur et stationnements en sous-sol.

L'art de vivre à La Ciotat :
- À 5 minutes des plages et du vieux port.
- Commerces, écoles et services accessibles à pied.
- À proximité du Parc du Mugel et des Calanques de Figuerolles.
- Accès rapide à l'A50 vers Marseille et Toulon.
- Quartier résidentiel calme et verdoyant, idéal pour une résidence principale ou un pied-à-terre.

N'hésitez pas à me contacter pour plus d'informations ou pour un accompagnement sur mesure.

Honoraires d'agence à la charge du vendeur. Bien non soumis au DPE. Les informations sur les risques auxquels ce bien est exposé sont disponibles sur le site Géorisques : www.georisques.gouv.fr. La présente annonce immobilière a été rédigée sous la responsabilité éditoriale de Mlle Sarah Rozière EI (ID 83696), mandataire indépendant en immobilier (sans détention de fonds), agent commercial de la SAS I@D France immatriculé au RSAC de Clermont-Ferrand sous le numéro 978616993, titulaire de la carte de démarchage immobilier pour le compte de la société I@D France SAS.
Retrouvez tous nos biens sur notre site internet. www.iadfrance.fr.
Informations LOI ALUR :
Honoraires charge vendeur. (gedeon_6727_32005765)
Voir plus

Référence: 1822588-5
Honoraires à la charge du vendeur.

Prêt immobilier

Vous souhaitez connaître votre capacité d’emprunt et trouver le meilleur crédit immobilier ?
Réaliser une simulation gratuite

Photo 1 - Appartement à LA CIOTAT
Photo 1
Photo 2 - Appartement à LA CIOTAT
Photo 2
Photo 3 - Appartement à LA CIOTAT
Photo 3
Photo 4 - Appartement à LA CIOTAT
Photo 4
Photo 5 - Appartement à LA CIOTAT
Photo 5
Photo 6 - Appartement à LA CIOTAT
Photo 6
Ce site est protégé par reCAPTCHA la Politique de confidentialité et les Conditions d’utilisation de Google s’appliquent.
Obtenir un prêt immobilier au meilleur taux ?

En poursuivant votre navigation sans modifier vos paramètres, vous acceptez l'utilisation de cookies susceptibles de réaliser des statistiques de visite. Cliquez ici pour plus d'informations