Bénéficiez des services de nos partenaires locaux soigneusement sélectionnés
pour vous accompagner dans votre parcours d'achat immobilier

Appartement 123m² à saint-germain-en-laye

— Saint-Germain-En-Laye 78100 —
1 099 000 €
123 m²
5 pièces
parkingbalcon/terrasseascenseur

Nos partenaires locaux
Iad France - Pierre Magerand ([Coordonnées masquées]) vous propose : Appartement T5 en duplex avec terrasses à Saint-Germain-en-Laye.

Idéalement située rue de Boufflers, au cOEur d'un domaine privé boisé, la résidence Le Jardin des Carmes offre un cadre de vie mêlant nature, élégance et sérénité. À quelques minutes du centre historique de Saint-Germain-en-Laye et de sa célèbre terrasse du Château, cette résidence conjugue confort moderne, respect de l'environnement et authenticité architecturale. Disponible 2027.

Un appartement raffiné :
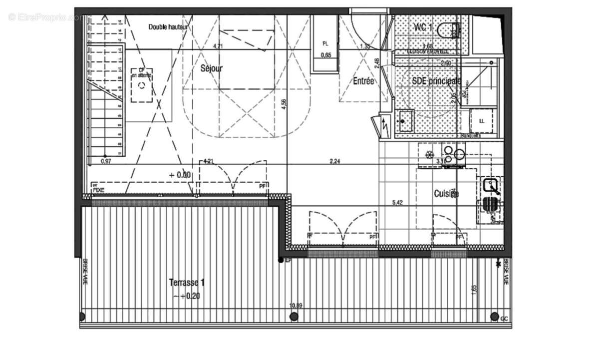
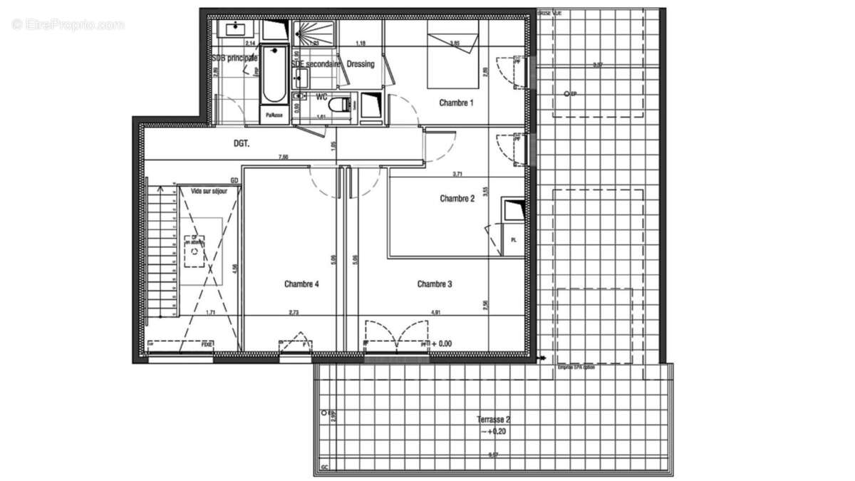
Situé au 3 ème étage, cet appartement en duplex de 123 m² environ habitables se prolonge par une première terrasse de 24 m² environ et une seconde de 61 m² environ.

- Grand séjour / cuisine de 38 m² environ.
- Quatre chambres confortables, dont une suite parentale avec salle d'eau et dressing.
- Une salle d'eau et une salle de bains modernes.
- Annexes incluses : une cave et deux parkings intérieurs.

De belles prestations :
- Chauffage urbain et eau chaude collective pour une gestion énergétique maîtrisée.
- Résidence sécurisée, avec visiophone couleur, local à vélos et espaces verts paysagers en cOEur d'îlot.
- Espace boisé classé, promenades, et faune protégée intégrés à l'environnement résidentiel.

L'art de vivre à Saint-Germain-en-Laye :
- À 9 min à vélo de la gare RER A et à 25 min de Paris - Porte de Neuilly.
- Écoles d'excellence, commerces et restaurants à proximité immédiate.
- Forêt domaniale, parc du Château et équipements culturels accessibles à pied.

N'hésitez pas à me contacter pour plus d'informations ou pour un accompagnement sur mesure.

Honoraires d'agence à la charge du vendeur. Bien non soumis au DPE. Les informations sur les risques auxquels ce bien est exposé sont disponibles sur le site Géorisques : www.georisques.gouv.fr. La présente annonce immobilière a été rédigée sous la responsabilité éditoriale de M. Pierre Magerand EI (ID 86098), mandataire indépendant en immobilier (sans détention de fonds), agent commercial de la SAS I@D France immatriculé au RSAC de Cusset sous le numéro 938729175, titulaire de la carte de démarchage immobilier pour le compte de la société I@D France SAS.
Retrouvez tous nos biens sur notre site internet. www.iadfrance.fr.
Informations LOI ALUR :
Honoraires charge vendeur. (gedeon_6727_32038477)
Voir plus

Référence: 1867431-1
Honoraires à la charge du vendeur.

Prêt immobilier

Vous souhaitez connaître votre capacité d’emprunt et trouver le meilleur crédit immobilier ?
Réaliser une simulation gratuite

Photo 1 - Appartement à SAINT-GERMAIN-EN-LAYE
Photo 1
Photo 2 - Appartement à SAINT-GERMAIN-EN-LAYE
Photo 2
Photo 3 - Appartement à SAINT-GERMAIN-EN-LAYE
Photo 3
Photo 4 - Appartement à SAINT-GERMAIN-EN-LAYE
Photo 4
Photo 5 - Appartement à SAINT-GERMAIN-EN-LAYE
Photo 5
Photo 6 - Appartement à SAINT-GERMAIN-EN-LAYE
Photo 6
Photo 7 - Appartement à SAINT-GERMAIN-EN-LAYE
Photo 7
Photo 8 - Appartement à SAINT-GERMAIN-EN-LAYE
Photo 8
Photo 9 - Appartement à SAINT-GERMAIN-EN-LAYE
Photo 9
Ce site est protégé par reCAPTCHA la Politique de confidentialité et les Conditions d’utilisation de Google s’appliquent.
Obtenir un prêt immobilier au meilleur taux ?

En poursuivant votre navigation sans modifier vos paramètres, vous acceptez l'utilisation de cookies susceptibles de réaliser des statistiques de visite. Cliquez ici pour plus d'informations