Bénéficiez des services de nos partenaires locaux soigneusement sélectionnés
pour vous accompagner dans votre parcours d'achat immobilier

Appartement 157m² à levallois-perret

— Levallois-Perret 92300 —
1 750 000 €
157 m²
4 pièces
balcon/terrasseascenseur

Nos partenaires locaux
Iad France - Pierre Magerand ([Coordonnées masquées]) vous propose : Appartement T4 avec toit-terrasse à Levallois-Perret.

Située rue Trézel à Levallois-Perret, à seulement quelques minutes de Paris, la résidence contemporaine Trézel conjugue élégance architecturale et qualité de vie préservée. Entre dynamisme urbain et sérénité, cette adresse offre un environnement calme et recherché, à proximité immédiate des commerces, des écoles et des transports. Disponible 2027.

Un appartement raffiné :
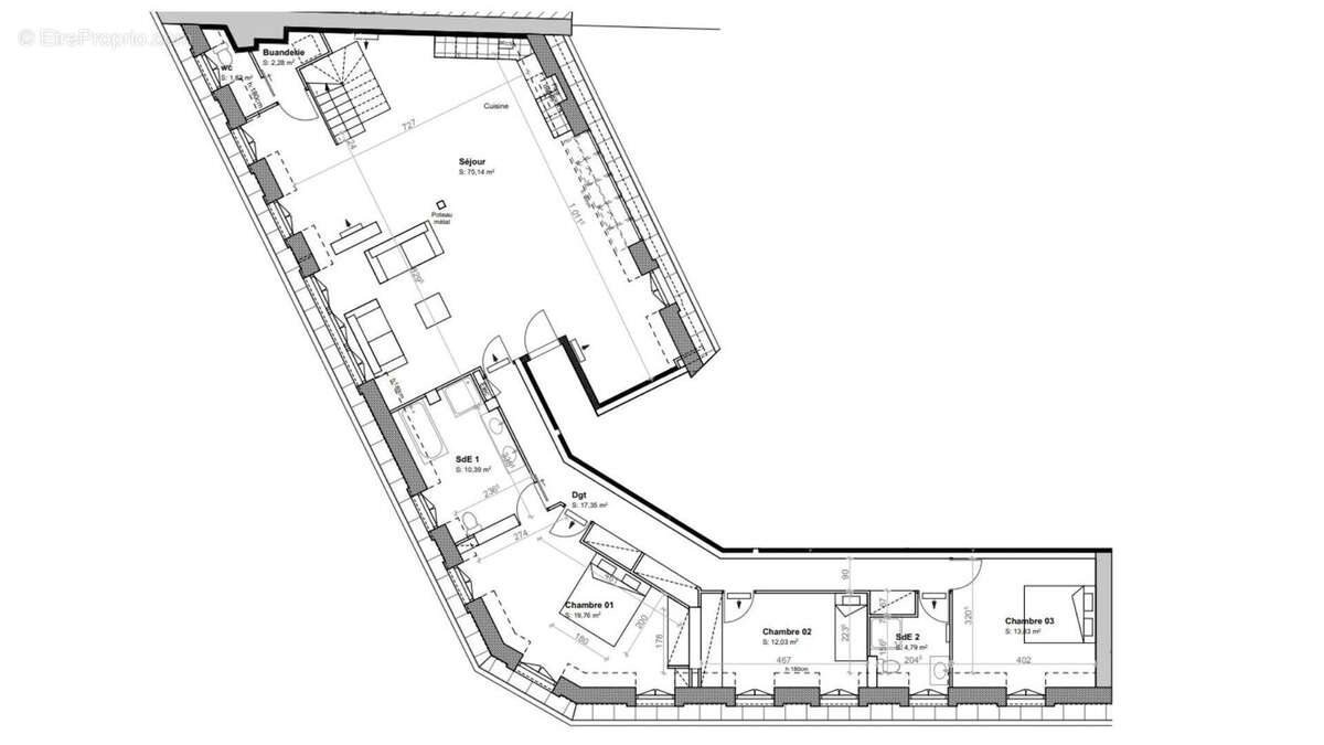
Situé au 5 ème étage, cet appartement T4 de 157 m² environ habitables se prolonge par un toit-terrasse privatif de 74 m² environ, idéal pour profiter d'un extérieur exceptionnel en cOEur de ville.

- Séjour / cuisine de 75 m² environ.
- Trois chambres confortables, dont une suite parentale.
- Salle d'eau et salle de bains modernes.

De belles prestations :
- Pompe à chaleur air / air pour le chauffage, ballon thermodynamique pour la production d'eau chaude.
- Volets roulants motorisés et menuiseries PVC double vitrage isolant.
- Terrasse aménagée en dalles grès cérames sur plots avec espaces végétalisés et zone potager.
- Résidence sécurisée avec ascenseur, visiophone et badge Vigik.

L'art de vivre à Levallois-Perret :
- À 5 min du métro Louise Michel (ligne 3) et du centre commercial So Ouest.
- Commerces, écoles, restaurants et espaces verts à proximité immédiate.
- Accès rapide à Paris (10 min) et à La Défense (15 min).

N'hésitez pas à me contacter pour plus d'informations ou pour un accompagnement sur mesure.

Honoraires d'agence à la charge du vendeur. Bien non soumis au DPE. Les informations sur les risques auxquels ce bien est exposé sont disponibles sur le site Géorisques : www.georisques.gouv.fr. La présente annonce immobilière a été rédigée sous la responsabilité éditoriale de M. Pierre Magerand EI (ID 86098), mandataire indépendant en immobilier (sans détention de fonds), agent commercial de la SAS I@D France immatriculé au RSAC de Cusset sous le numéro 938729175, titulaire de la carte de démarchage immobilier pour le compte de la société I@D France SAS.
Retrouvez tous nos biens sur notre site internet. www.iadfrance.fr.
Informations LOI ALUR :
Honoraires charge vendeur. (gedeon_6727_32044120)
Voir plus

Référence: 1867331-9
Honoraires à la charge du vendeur.

Prêt immobilier

Vous souhaitez connaître votre capacité d’emprunt et trouver le meilleur crédit immobilier ?
Réaliser une simulation gratuite

Photo 1 - Appartement à LEVALLOIS-PERRET
Photo 1
Photo 2 - Appartement à LEVALLOIS-PERRET
Photo 2
Photo 3 - Appartement à LEVALLOIS-PERRET
Photo 3
Photo 4 - Appartement à LEVALLOIS-PERRET
Photo 4
Photo 5 - Appartement à LEVALLOIS-PERRET
Photo 5
Photo 6 - Appartement à LEVALLOIS-PERRET
Photo 6
Photo 7 - Appartement à LEVALLOIS-PERRET
Photo 7
Photo 8 - Appartement à LEVALLOIS-PERRET
Photo 8
Ce site est protégé par reCAPTCHA la Politique de confidentialité et les Conditions d’utilisation de Google s’appliquent.
Obtenir un prêt immobilier au meilleur taux ?

En poursuivant votre navigation sans modifier vos paramètres, vous acceptez l'utilisation de cookies susceptibles de réaliser des statistiques de visite. Cliquez ici pour plus d'informations