Bénéficiez des services de nos partenaires locaux soigneusement sélectionnés
pour vous accompagner dans votre parcours d'achat immobilier

Appartement 66m² à paris-18e

— Paris-18e 75018 —
864 000 €
66 m²
3 pièces
balcon/terrasseascenseur

Nos partenaires locaux
Iad France - Sarah Rozière ([Coordonnées masquées]) vous propose : Appartement T3 avec terrasse, Paris 18e.

Située rue Feutrier à Paris 18e, au cOEur du quartier emblématique de Montmartre, la résidence contemporaine Esprit Montmartre conjugue élégance architecturale et authenticité parisienne. Entre charme bohème et modernité, cette adresse offre un cadre de vie paisible et lumineux à proximité immédiate des commerces, des écoles et des transports. Disponible 2027.

Un appartement raffiné :
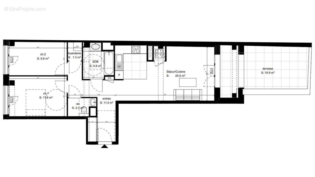
Situé au 2 ème étage, cet appartement T4 de 66 m² environ habitables se prolonge par une terrasse de 20 m² environ.

- Séjour / cuisine de 25 m² environ
- Trois chambres confortables.
- Salle de bains moderne.

De belles prestations :
- Chauffage et rafraîchissement par pompe à chaleur individuelle (PAC).
- Volets roulants motorisés et stores électriques centralisés.
- Porte palière anti-effraction 5 points A2P * .
- Résidence sécurisée avec ascenseur, digicode, visiophone et badge Vigik.
- Locaux à vélos et espaces verts paysagers en cOEur d'îlot.

L'art de vivre à Montmartre - Paris 18e :
- À 5 min à pied des métros Anvers (ligne 2) et Barbès-Rochechouart (ligne 4).
- À proximité immédiate du Sacré-COEur, de la place du Tertre et des commerces de quartier.
- Crèches, écoles, restaurants et marchés accessibles à pied.

N'hésitez pas à me contacter pour plus d'informations ou pour un accompagnement sur mesure.

Honoraires d'agence à la charge du vendeur. Bien non soumis au DPE. Les informations sur les risques auxquels ce bien est exposé sont disponibles sur le site Géorisques : www.georisques.gouv.fr. La présente annonce immobilière a été rédigée sous la responsabilité éditoriale de Mlle Sarah Rozière EI (ID 83696), mandataire indépendant en immobilier (sans détention de fonds), agent commercial de la SAS I@D France immatriculé au RSAC de Clermont-Ferrand sous le numéro 978616993, titulaire de la carte de démarchage immobilier pour le compte de la société I@D France SAS.
Retrouvez tous nos biens sur notre site internet. www.iadfrance.fr.
Informations LOI ALUR :
Honoraires charge vendeur. (gedeon_6727_32044214)
Voir plus

Référence: 1868568-2
Honoraires à la charge du vendeur.

Prêt immobilier

Vous souhaitez connaître votre capacité d’emprunt et trouver le meilleur crédit immobilier ?
Réaliser une simulation gratuite

Photo 1 - Appartement à PARIS-18E
Photo 1
Photo 2 - Appartement à PARIS-18E
Photo 2
Photo 3 - Appartement à PARIS-18E
Photo 3
Photo 4 - Appartement à PARIS-18E
Photo 4
Photo 5 - Appartement à PARIS-18E
Photo 5
Photo 6 - Appartement à PARIS-18E
Photo 6
Ce site est protégé par reCAPTCHA la Politique de confidentialité et les Conditions d’utilisation de Google s’appliquent.
Obtenir un prêt immobilier au meilleur taux ?

En poursuivant votre navigation sans modifier vos paramètres, vous acceptez l'utilisation de cookies susceptibles de réaliser des statistiques de visite. Cliquez ici pour plus d'informations