Bénéficiez des services de nos partenaires locaux soigneusement sélectionnés
pour vous accompagner dans votre parcours d'achat immobilier

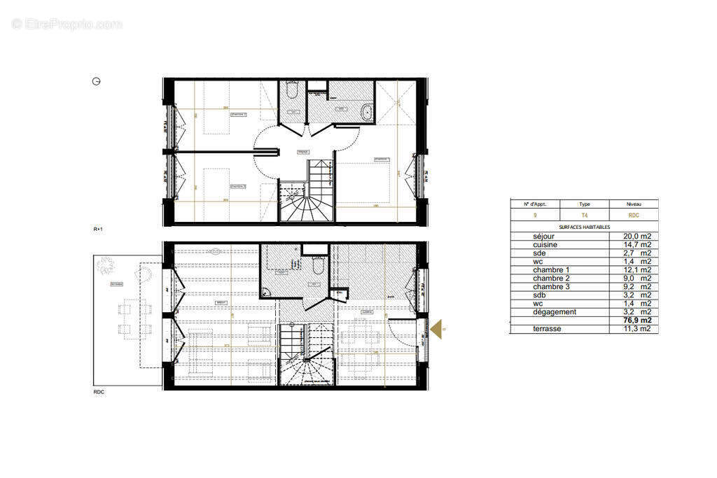
Appartement 4 pièces de 76.9m²

— Nantes 44200 —
224 000 €
76 m²
4 pièces
balcon/terrasse

Nos partenaires locaux
Nouveau à Nantes !
// Iles de Nantes // Terrasse // Proche toutes commodités//

*QUARTIER : À proximité des commerces, des écoles, de l'arrêt de bus « République » et du Jardin des Fonderies. À seulement 6 minutes en voiture de la gare SNCF.

*LOGEMENT : Venez découvrir cet agréable appartement 4 pièces de 76,9 m² en duplex comprenant une entrée avec dégagement, un séjour de 20 m², une cuisine de 14,7 m², trois chambres, une salle d'eau, une salle de bains et deux WC. Une terrasse de 11 m² vient compléter ce bien.

Contactez-nous dès maintenant !
Voir plus

Référence: 44-23-003745

Prêt immobilier

Vous souhaitez connaître votre capacité d’emprunt et trouver le meilleur crédit immobilier ?
Réaliser une simulation gratuite

Appartement à NANTES
Appartement à NANTES
Ce site est protégé par reCAPTCHA la Politique de confidentialité et les Conditions d’utilisation de Google s’appliquent.
Obtenir un prêt immobilier au meilleur taux ?

En poursuivant votre navigation sans modifier vos paramètres, vous acceptez l'utilisation de cookies susceptibles de réaliser des statistiques de visite. Cliquez ici pour plus d'informations