Bénéficiez des services de nos partenaires locaux soigneusement sélectionnés
pour vous accompagner dans votre parcours d'achat immobilier

Maison individuelle 162m2 - ifs - 7 pièces

— Ifs 14123 —
446 250 €
162 m² / 694 m²
7 pièces
parkingbalcon/terrasse

Nos partenaires locaux
Découvrez en exclusivité une charmante maison individuelle de 162 m2 sur une parcelle de 694 m2 située à IFS, secteur calme (impasse) et recherché, à proximité de toutes commodités.
Ses atouts : Pièce de vie traversante - Exposition Sud ouest - Jardin clos et sans vis-à-vis - Garage et places de parking - Vie de plain-pied - Studio
La maison se compose ainsi, au rez-de-chaussée : Une entrée donnant sur un séjour traversant avec poêle à bois (salon/salle à manger), cuisine ouverte et accès terrasse extérieure - une chambre - une salle d'eau et un WC
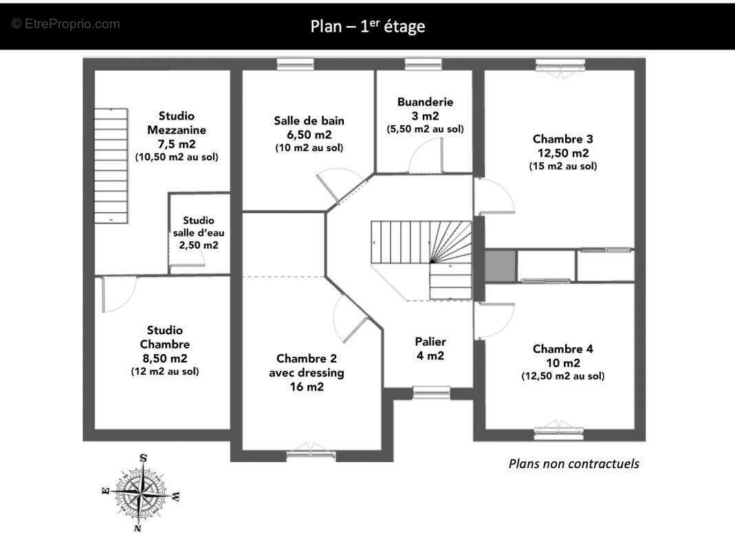
A l'étage : un grand palier desservant trois chambres avec placards dont une avec dressing - une salle de bain avec WC - une buanderie.
Vous retrouverez également un studio indépendant attenant au garage (possibilité de louer) avec une pièce de vie au rez-de-chaussée et à l'étage : un palier/mezzanine donnant sur une salle d'eau avec WC et une chambre.
Chauffage individuel électrique et poêle à bois - Menuiseries PVC double vitrage avec volets roulants électriques - Installation électrique sans anomalie.
Honoraires charges vendeur.. Les informations sur les risques auxquels ce bien est exposé sont disponibles sur le site www.georisques.gouv.fr.
Voir plus

Référence: VMA50002308
DPE
A
B
C
D
E
F
G
GES
A
B
C
D
E
F
G

Prêt immobilier

Vous souhaitez connaître votre capacité d’emprunt et trouver le meilleur crédit immobilier ?
Réaliser une simulation gratuite

Maison à IFS
Maison à IFS
Maison à IFS
Maison à IFS
Maison à IFS
Maison à IFS
Maison à IFS
Maison à IFS
Maison à IFS
Maison à IFS
Maison à IFS
Maison à IFS
Maison à IFS
Maison à IFS
Ce site est protégé par reCAPTCHA la Politique de confidentialité et les Conditions d’utilisation de Google s’appliquent.
Obtenir un prêt immobilier au meilleur taux ?

En poursuivant votre navigation sans modifier vos paramètres, vous acceptez l'utilisation de cookies susceptibles de réaliser des statistiques de visite. Cliquez ici pour plus d'informations