Bénéficiez des services de nos partenaires locaux soigneusement sélectionnés
pour vous accompagner dans votre parcours d'achat immobilier

CREIL – Maison individuelle 6 pièces – 102 m² habitables / 160 m² au sol – Grand jardin devant et derrière – Exposition plein su

— Creil 60100 —
250 000 €
101 m² / 611 m²
6 pièces
parkingbalcon/terrasse

Nos partenaires locaux
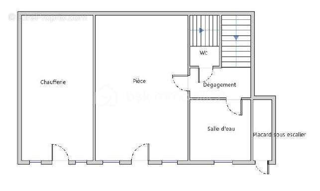
Située rue du Plessis-Pommeraye, l'une des voies anciennes du centre historique de Creil, cette maison individuelle offre un bel équilibre entre charme, calme et luminosité.

Elle développe 101,79 m² habitables pour 160,11 m² au sol. Bon atout car, la différence correspond à des surfaces actuellement non habitables (sous-sol / espaces techniques (chaufferie) / annexes).
Cela peut permettre, selon la configuration et sous réserve des règles d'urbanisme et de conformité (hauteur sous plafond, ouvertures, ventilation), d'envisager l'aménagement de pièces supplémentaires au rez-de-chaussée ou en sous-sol.

Points forts
• Toiture neuve (charpente + tuiles) refaite en juillet 2024
• Pompe à chaleur air/eau et chauffe-eau thermodynamique installés en décembre 2012
• Électricité conforme (diagnostic 2025 – zéro anomalie)
• Maison en surplomb, offrant une vue dégagée et une vraie intimité
• Deux grandes terrasses : une à l'avant, une à l'arrière
• Terrain arrière en pente aménagé en trois niveaux plats, avec un quatrième niveau en broussailles offrant un fort potentiel d'aménagement
• Cabane à vélos dans l'allée d'entrée, avec portail
• Possibilité de stationner un véhicule devant ou derrière le portail.

Équipements et confort
• Chauffage par pompe à chaleur air/eau (2012)
• Eau chaude via chauffe-eau thermodynamique 270 L (2012)
• Excellente luminosité, exposition plein sud

Cette annonce référence 308901 vous est présentée par votre agent commercial BSK Immobilier JERÔME MELCHIOR (EI) immatriculé au RSAC de PARIS-4E-ARRONDISSEMENT (75004) sous le numéro 75147786000025.

Prix du bien : 250 000,00 €
Les honoraires d'agence sont à la charge du vendeur.

A propos des performances énergétiques :
Date de réalisation du diagnostic énergétique : 19/10/2025
Score DPE : 220 kWhEP/m²/an
Score GES : 7 kgepCO2/m²/an
Montant estimé des dépenses annuelles d'énergie pour un usage standard : entre 1540.00 € et 2130.00 € par an. Prix moyens des énergies indexés sur l'année 2021 (abonnements compris).

Les informations sur les risques auxquels ce bien est exposé sont disponibles sur le site Géorisques : www.georisques.gouv.fr
Voir plus

Référence: 308901
Honoraires à la charge du vendeur.
DPE
A
B
C
D
E
F
G
GES
A
B
C
D
E
F
G
Maison à CREIL
Maison à CREIL
Maison à CREIL
Maison à CREIL
Maison à CREIL
Maison à CREIL
Maison à CREIL
Maison à CREIL
Maison à CREIL
Maison à CREIL
Maison à CREIL
Maison à CREIL
Maison à CREIL
Maison à CREIL
Maison à CREIL
Maison à CREIL
Maison à CREIL
Maison à CREIL
Maison à CREIL
Maison à CREIL
Maison à CREIL
Maison à CREIL
Maison à CREIL
Maison à CREIL
Maison à CREIL
Maison à CREIL
Maison à CREIL
Géorisques

Les informations sur les risques auxquels ce bien est exposé sont disponibles sur le site Géorisques : www.georisques.gouv.fr

Ce site est protégé par hCaptcha Politique de confidentialité et Conditions d’utilisation s’appliquent.

En poursuivant votre navigation sans modifier vos paramètres, vous acceptez l'utilisation de cookies susceptibles de réaliser des statistiques de visite. Cliquez ici pour plus d'informations