Bénéficiez des services de nos partenaires locaux soigneusement sélectionnés
pour vous accompagner dans votre parcours d'achat immobilier

Saint yzan de soudiac maison de ville 112m2 avec garage

— Saint-Yzan-De-Soudiac 33920 —
185 000 €
112 m² / 362 m²
5 pièces
parkingjardin

Nos partenaires locaux
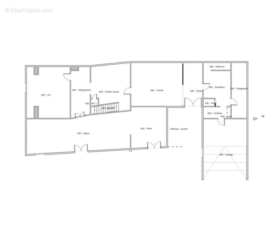
Contactez Thomas BEN ALI au O6.34.64.64.38. Située dans le centre de Saint Yzan dans une ruelle calme et à sens unique, le TUC immobilier vous propose cette maison familiale. Au rez-de-chaussée, vous trouverez une cuisine refaite en 2023 avec puits de jour et baie vitrée oscillo battante, l'ancienne cuisine équipée (frigo et lave-vaisselle), des wc avec lavabo à terminer, une chambre, un grand salon avec mezzanine, ainsi qu’une pièce supplémentaire à aménager selon vos besoins (chambre, salle d’eau ou bureau).
À l’étage, un palier dessert une chambre avec placard, une salle de bains et un wc séparé.
En annexe, la maison dispose d’un garage en longueur pouvant acceuillir deux voitures, d’un vestiaire, d’une buanderie, de wc, de deux pièces de stockage et d’un bûcher.
Le tout sur une parcelle clôturée de 362 m2. La maison est raccordée au tout à l'égout, et à la fibre.
Contactez-moi dès maintenant pour organiser une visite ! Thomas Ben Ali (EI) Agent commercial en immobilier O6 34 64 64 38 / RSAC : 928 019 496 Libourne Les informations sur les risques auxquels ce bien est exposé sont disponibles sur le site Géorisques : www.georisques.gouv.fr Honoraires TTC charge acquéreur.
Cette annonce vous est proposée par BEN ALI Thomas - - NoRSAC: , Enregistré à de
Voir plus

Référence: 3044
Honoraires d'agence de 6.38% à la charge de l'acquéreur
Barème des honoraires
DPE
A
B
C
D
E
F
G
GES
A
B
C
D
E
F
G

Prêt immobilier

Vous souhaitez connaître votre capacité d’emprunt et trouver le meilleur crédit immobilier ?
Réaliser une simulation gratuite

Maison à SAINT-YZAN-DE-SOUDIAC
Maison à SAINT-YZAN-DE-SOUDIAC
Maison à SAINT-YZAN-DE-SOUDIAC
Maison à SAINT-YZAN-DE-SOUDIAC
Maison à SAINT-YZAN-DE-SOUDIAC
Maison à SAINT-YZAN-DE-SOUDIAC
Maison à SAINT-YZAN-DE-SOUDIAC
Maison à SAINT-YZAN-DE-SOUDIAC
Maison à SAINT-YZAN-DE-SOUDIAC
Maison à SAINT-YZAN-DE-SOUDIAC
Maison à SAINT-YZAN-DE-SOUDIAC
Ce site est protégé par reCAPTCHA la Politique de confidentialité et les Conditions d’utilisation de Google s’appliquent.
Obtenir un prêt immobilier au meilleur taux ?

En poursuivant votre navigation sans modifier vos paramètres, vous acceptez l'utilisation de cookies susceptibles de réaliser des statistiques de visite. Cliquez ici pour plus d'informations