Pas de parking à Le Temple-Sur-Lot pour le moment. Découvrez dès maintenant les parkings dans le département Lot-et-Garonne.
Bénéficiez des services de nos partenaires locaux soigneusement sélectionnés
pour vous accompagner dans votre parcours d'achat immobilier

Terrain 400m² à marseille-8e

— Marseille-8e 13008 —
650 000 €
400 m²

Nos partenaires locaux
Docteur House by EMIMO vous présente une opportunité immobilière rare et exceptionnelle dans le très recherché quartier de Sainte-Anne à Marseille.
Situé au cœur d’une résidence fermée, calme et sécurisée, ce terrain constructible de 400 m² offre un cadre de vie idéal, alliant tranquillité résidentielle et proximité des commodités. À deux pas du SMUC, des écoles, des commerces et des axes de transport, il bénéficie d’un emplacement privilégié dans un environnement verdoyant et paisible.

Entièrement viabilisé et accessible par un portail sécurisé, ce terrain n’est pas soumis au régime de la copropriété, garantissant une liberté totale dans la réalisation de votre projet immobilier.
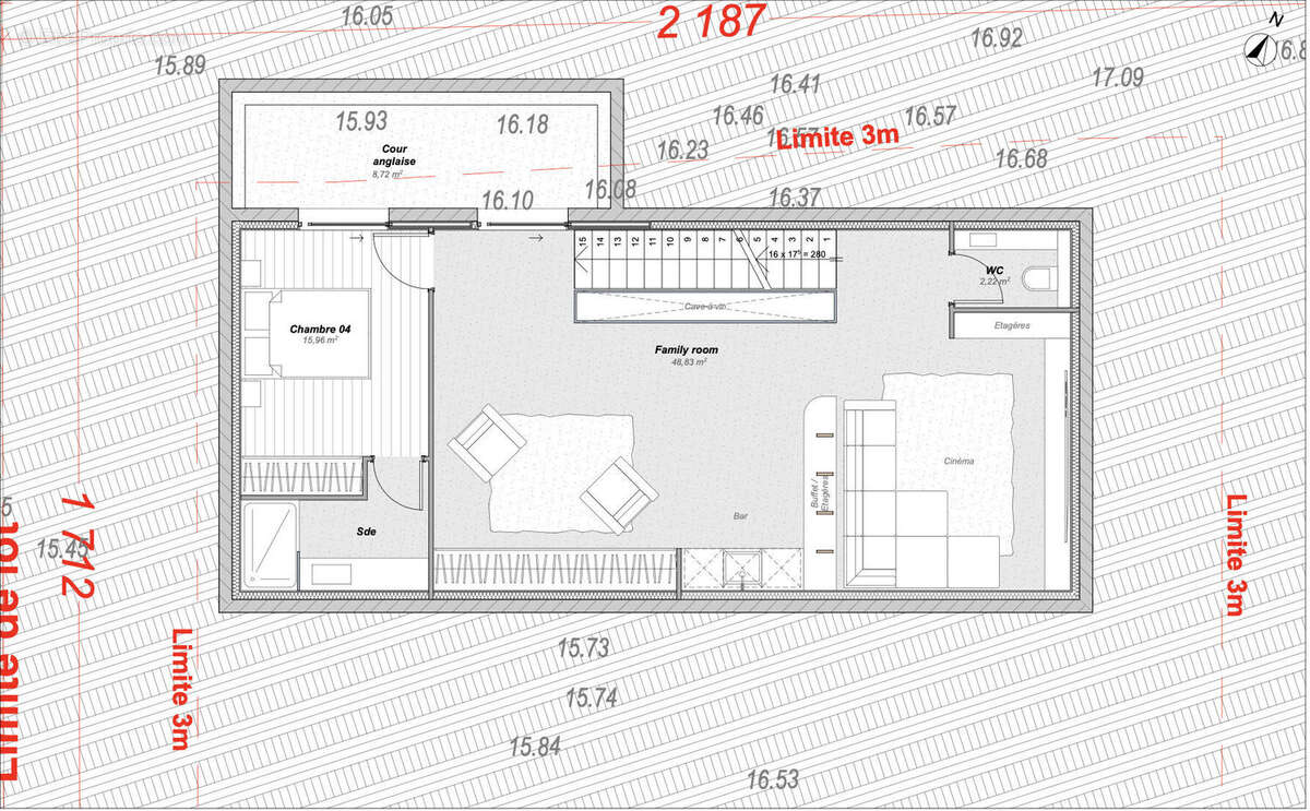
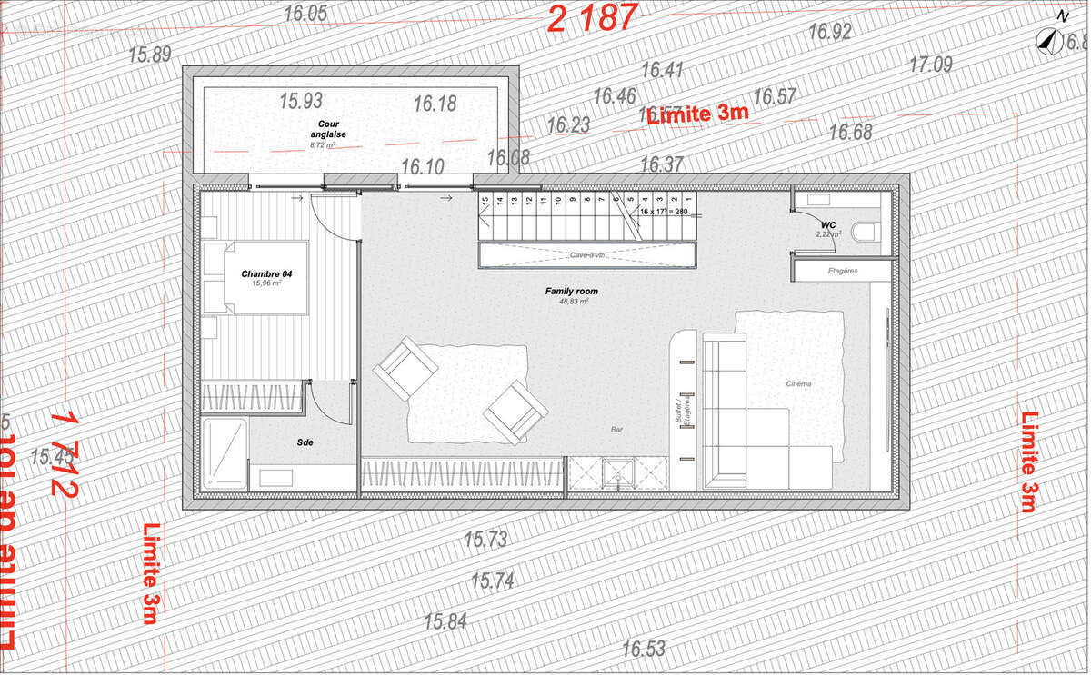
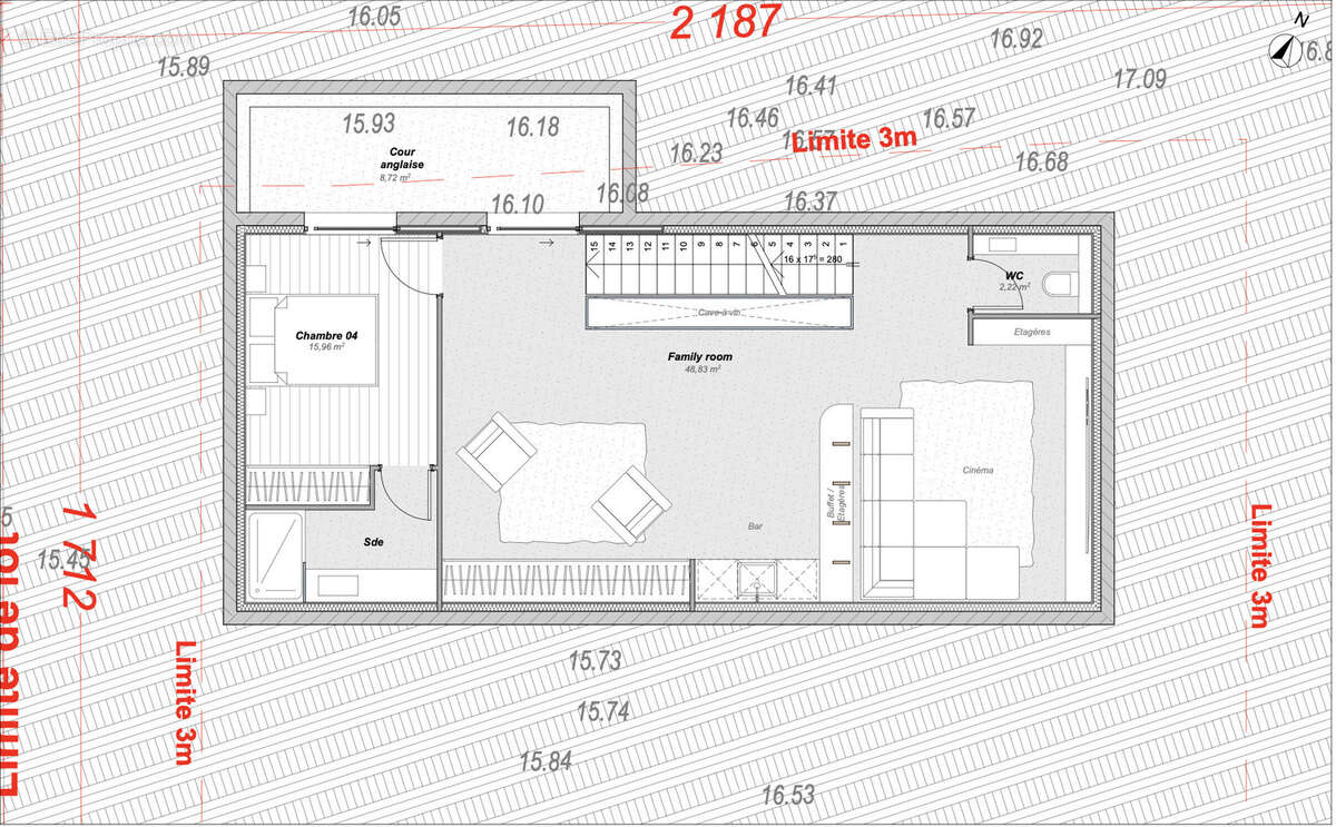
Le permis de construire a été accordé et il est purgé de tout recours, vous assurant ainsi une pleine sécurité juridique avant le lancement des travaux. Le projet validé prévoit la construction d’une superbe maison contemporaine d’environ 200 m² , avec une emprise au sol de 21 %, se composant d'un R+1 et un R-1 ainsi qu’une piscine privée, permettant de profiter d’un espace extérieur généreux tout en conservant un jardin agréable et paysagé.

Ce terrain représente une opportunité unique de créer votre résidence principale ou secondaire sur mesure, dans un quartier résidentiel hautement convoité de Marseille. Que vous soyez une famille à la recherche d’un cadre de vie serein ou un investisseur souhaitant valoriser un bien de prestige, ce projet réunit emplacement, qualité de vie et potentiel patrimonial.

Ne manquez pas cette occasion exceptionnelle de bâtir votre havre de paix au cœur de Sainte-Anne, un secteur rare où l’offre foncière est très limitée.

Contactez dès aujourd’hui Docteur House by EMIMO pour plus d’informations, plans détaillés du projet et organisation d’une visite sur site. Ce bien vous est présenté par Eithan Abitbol, votre conseiller indépendant Dr House Immo.
Voir plus

Référence: TERRAINDHI3021
Honoraires à la charge du vendeur.
Barème des honoraires

Prêt immobilier

Vous souhaitez connaître votre capacité d’emprunt et trouver le meilleur crédit immobilier ?
Réaliser une simulation gratuite

Terrain à MARSEILLE-8E
Terrain à MARSEILLE-8E
Terrain à MARSEILLE-8E
Terrain à MARSEILLE-8E
Terrain à MARSEILLE-8E
Terrain à MARSEILLE-8E
Terrain à MARSEILLE-8E
Terrain à MARSEILLE-8E
Terrain à MARSEILLE-8E
Terrain à MARSEILLE-8E
Terrain à MARSEILLE-8E
Terrain à MARSEILLE-8E
Terrain à MARSEILLE-8E
Terrain à MARSEILLE-8E
Terrain à MARSEILLE-8E
Terrain à MARSEILLE-8E
Terrain à MARSEILLE-8E
Terrain à MARSEILLE-8E
Terrain à MARSEILLE-8E
Terrain à MARSEILLE-8E
Terrain à MARSEILLE-8E
Terrain à MARSEILLE-8E
Terrain à MARSEILLE-8E
Terrain à MARSEILLE-8E
Terrain à MARSEILLE-8E
Terrain à MARSEILLE-8E
Terrain à MARSEILLE-8E
Ce site est protégé par reCAPTCHA la Politique de confidentialité et les Conditions d’utilisation de Google s’appliquent.
Obtenir un prêt immobilier au meilleur taux ?

En poursuivant votre navigation sans modifier vos paramètres, vous acceptez l'utilisation de cookies susceptibles de réaliser des statistiques de visite. Cliquez ici pour plus d'informations