Bénéficiez des services de nos partenaires locaux soigneusement sélectionnés
pour vous accompagner dans votre parcours d'achat immobilier

Exclusivité brest saint-michel appartement t2 58 m² dernier étage vue dégagée

— Brest 29200 —
149 450 €
58 m²
2 pièces

Nos partenaires locaux
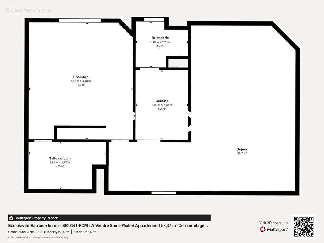
EXCLUSIVITÉ - BREST - SAINT-MICHEL. Réf : SI00441-PDM1 Situé dans le secteur de Saint-Michel à BREST, venez découvrir cet appartement T2 de 58,37 m² habitables situé au 4ème et dernier étage d'un immeuble bien tenu des années 1930. Bénéficiant d'une belle hauteur sous plafonds, de beaux parquets massifs et d'une vue dégagée, l'appartement se compose d'une pièce de vie de 24,5 m² agrémenté d'une belle cheminée décorative en marbre, cuisine semi-ouverte de 5,2 m² se prolongeant sur une loggia avec fenêtre. Chambre de 16 m² avec coin dressing et salle d'eau attenante de 4,7 m² avec vélux. Rangements dans le dégagement et WC indépendants avec fenêtre. Cet appartement de caractère est en très bon état général, il a été rénové récemment (chaudière gaz de ville à condensation, électricité, cuisine, fenêtres PVC double vitrage..) Classé C (DPE réalisé le 08/09/2023) - consommation : 104 kWh/m²/an ; émissions : 21 kg CO?/m²/an), ce logement offre un excellent niveau de performance énergétique pour un bien de cette époque. Vous bénéficierez ainsi d'un confort thermique appréciable, d'une isolation efficace et de charges énergétiques contenues. Cette performance témoigne de la qualité de la rénovation et du bon entretien de l'appartement. Idéalement situé, cet appartement se trouve à seulement 5 minutes à pied de l'arrêt de tramway 'Octroi', à moins d'1 km des commerces, et à 3 km de la mer. Les écoles sont accessibles en 3 minutes et plusieurs parcs à proximité offrent des espaces verts pour se détendre. En plus de ses atouts intérieurs, ce bien dispose d'une cave pour un espace de rangement supplémentaire. Ce bien est une exclusivité de l'agence Barraine IMMO Brest - Siam. Ne manquez pas cette opportunité de devenir propriétaire dans un quartier agréable et dynamique. (6.75 % honoraires TTC à la charge de l'acquéreur.) Copropriété de 15 lots - dont 15 lots habitation. (Pas de procédure en cours). Charges annuelles : 913.28 euros.
Voir plus

Référence: SI00441-PDM
Bien en copropriété. Nombre de lots : 15. Charges de copropriété : 913 €.
Honoraires d'agence de 6.75% à la charge de l'acquéreur
Barème des honoraires
DPE
A
B
C
D
E
F
G
GES
A
B
C
D
E
F
G

Prêt immobilier

Vous souhaitez connaître votre capacité d’emprunt et trouver le meilleur crédit immobilier ?
Réaliser une simulation gratuite

Appartement à BREST
Appartement à BREST
Appartement à BREST
Appartement à BREST
Appartement à BREST
Appartement à BREST
Appartement à BREST
Appartement à BREST
Appartement à BREST
Appartement à BREST
Appartement à BREST
Appartement à BREST
Appartement à BREST
Appartement à BREST
Appartement à BREST
Appartement à BREST
Appartement à BREST
Appartement à BREST
Ce site est protégé par reCAPTCHA la Politique de confidentialité et les Conditions d’utilisation de Google s’appliquent.
Obtenir un prêt immobilier au meilleur taux ?

En poursuivant votre navigation sans modifier vos paramètres, vous acceptez l'utilisation de cookies susceptibles de réaliser des statistiques de visite. Cliquez ici pour plus d'informations