Bénéficiez des services de nos partenaires locaux soigneusement sélectionnés
pour vous accompagner dans votre parcours d'achat immobilier

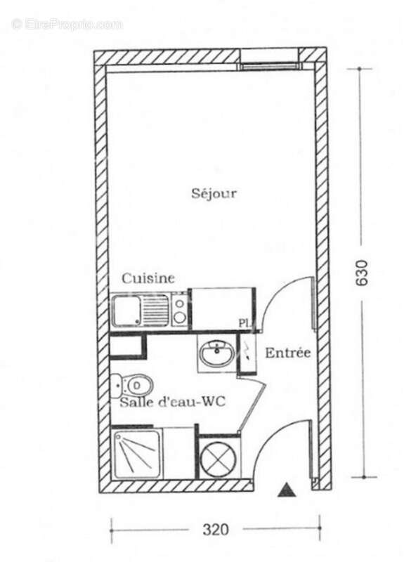
Studio quartier saint-pasquier felix-faure

— Nantes 44000 —
99 900 €
19 m²
1 pièce
parkingascenseur

Nos partenaires locaux
STUDIO QUARTIER SAINT-PASQUIER FELIX-FAURE Appartement en bon état général au 4° étage dans la résidence le cours des Hauts-Pavés constuite en 2010 et parfaitement entretenue. En annexe un parking au sous-sol de la copropriété, station de tramway Félix-Faure en face. Le bien est vendu avec une locataire en place, bail en cours. DPE D, photos cuisine et bureau amélioré par IA. Les informations sur les risques auxquels ce bien est exposé sont disponibles sur le site www.georisques.gouv.fr Pour organiser une visite de ce bien, merci de contacter Stéphane JARRY au [Coordonnées masquées] ou [Coordonnées masquées]. AGENCE DIRECTE A FRAIS REDUITS NANTES spécialiste des quartiers du centre-ville, Hauts-Pavés-Saint-félix, Saint-Pasquier, Talensac-Bretagne, Madeleine-Champ-de-Mars, Ile de Nantes, Canclaux-Mellinet, Monselet-Procé, Chantenay-Sainte-Anne, Zola ... (6.28 % honoraires TTC à la charge de l'acquéreur.) Copropriété de 54 lots - dont 34 lots habitation. (Pas de procédure en cours). Charges annuelles : 328 euros.
Voir plus

Référence: 4834
Bien en copropriété. Nombre de lots : 54. Charges de copropriété : 328 €.
Honoraires d'agence de 6.28% à la charge de l'acquéreur
Barème des honoraires
DPE
A
B
C
D
E
F
G
GES
A
B
C
D
E
F
G

Prêt immobilier

Vous souhaitez connaître votre capacité d’emprunt et trouver le meilleur crédit immobilier ?
Réaliser une simulation gratuite

Appartement à NANTES
Appartement à NANTES
Appartement à NANTES
Appartement à NANTES
Appartement à NANTES
Appartement à NANTES
Appartement à NANTES
Ce site est protégé par reCAPTCHA la Politique de confidentialité et les Conditions d’utilisation de Google s’appliquent.
Obtenir un prêt immobilier au meilleur taux ?

En poursuivant votre navigation sans modifier vos paramètres, vous acceptez l'utilisation de cookies susceptibles de réaliser des statistiques de visite. Cliquez ici pour plus d'informations